查看完整案例

收藏

下载

翻译
Architects:Nguyen Khai Architects & Associates
Area:320m²
Year:2023
Photographs:Hiroyuki Oki
Manufacturers:Schneider Electric,American Standard,Panasonic
Lead Architects:Nguyen Quang Khai
Interior Design:Tran Yen Chau
Program / Use / Building Function:Residential
City:Huế
Country:Vietnam
Text description provided by the architects. Located not very far from the historical citadel, which is quite a peaceful and green area of Hue city, Nala is the home of a small family, the studio of a painter, and the gallery for anyone who loves art.
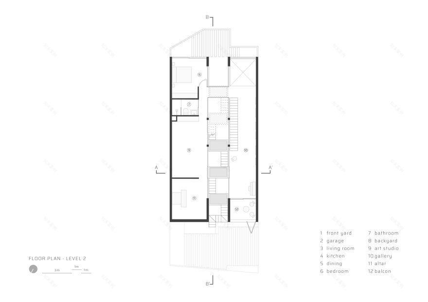
Starting from the basic shape of a traditional shophouse, we create a void that cuts through the block to divide and connect spaces and incorporate the greenery. After ‘the cut’, here comes the below garden, the above stairway, and five flying planters. This new mixture now becomes the heart of the residence since every space in the house will face toward it. From the residents’ side, they could enjoy the garden view from the living room, kitchen, dining room, and bedroom. As for the public guests, they could experience both art and nature at the same time.
The two-story blocks are connected by the bridges, which pass across the middle garden. This middle space not only gives the house a lot of natural sunlight but also balances the air. The house is only made of basic materials such as concrete and glass to give space for art and nature to be fully exposed.
Since the owner is the painter who wants to incorporate his studio and gallery at home, the functional zones of the house should be considered thoroughly to ensure comfortable private and public spaces for everyone. There are two stairs and two circulation streams for residents and guests respectively. The studio and gallery space can be accessed from the middle stairway.
Nature shows its presence in everyone’s every daily moment in the house. ‘The cut’ makes an urban house under more natural light and fresh air. That’s why the house is called Nala. It means a ravine, a stream that runs through the house, physically and mentally heals those who are living in it.
Project gallery
客服
消息
收藏
下载
最近

































