查看完整案例

收藏

下载

翻译
Architects:Atelier Vens Vanbelle
Year:2023
City:Ghent
Country:Belgium
Text description provided by the architects. The children had left home for a number of years, and retirement was just around the corner, so Paul and Monique thought: “Let's build a new house, tailored to our new way of life so that we can face the future without any worries (and renovation or patchwork)...”
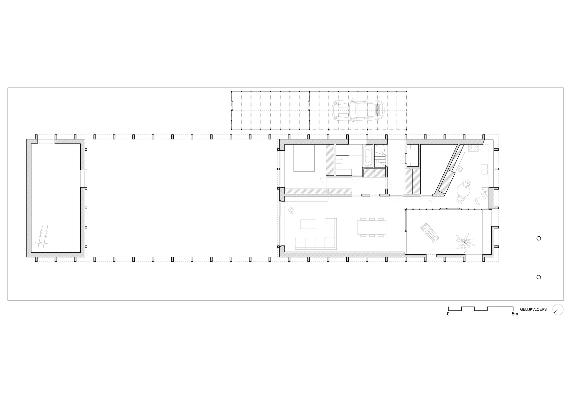
The design was fully geared to the quality of aging, the environment, the habits and activities of the residents, etc. All functions are located on the ground floor in a compact and logical plan, upstairs are two guest rooms with bathrooms for the children and grandchildren. At first sight, this house may seem strange in this context, but it actually integrates perfectly here, and - despite the banality of an allotment - a lot of new quality and experience is added. Paul has always been an independent contractor. He wanted to make one last effort before retiring by building his own house, and then enjoy it to the fullest.
The individuality of the residents and the context were mixed into a unique end result and Paul's skills were used to commemorate lifelong living in an allotment.
Instead of designing a house with a front garden, side gardens, and back garden (with an obligatory garden house, hedges, or fences), it was decided to build the house and Paul's workstead/garden house in stone. These two buildings were connected by a concrete structure. This creates an intimate garden between the two buildings, and the concrete structure provides a lot of peace and privacy with respect to the neighbors. The view is limited, and from the house, the 'junk' that belongs to a garden is placed outside this structure so that it is not visible from the central garden. Elements such as a carport, conservatory, beehives, vegetable garden, etc. are given their place outside the structure so that living is focused on the peaceful atmosphere of the garden. This offers a lot of peace and quiet, and emotionally you are no longer in an allotment but in a world in itself.
In addition to the living room, there is a comfortable bathroom and the master bedroom also overlooks the garden. At the entrance, there is a staircase to the guest rooms. The house has several 'spots' where you can go as a resident because sitting with two persons in one room all day long is rarely a good idea :)
The brick and concrete structures are visible everywhere. The floor is a natural stone flagstone that continues to the outside. Inside and outside are linked in different ways. The warm wooden joinery and the wooden ceiling in the living room offer balance to the harder stone materials.
The sunlight is subtly drawn in in various ways throughout the day. The house is very ready and the patio provides a lot of daylight. The pleasant interaction with the client led to a tailor-made suit that uniquely fits into the environment, within walking distance of the village centre.
Project gallery
客服
消息
收藏
下载
最近

































