查看完整案例

收藏

下载

翻译
Architects:Carlos Castanheira
Area:286m²
Year:2022
Photographs:Fernando Guerra | FG + SG
Project Coordination:Diana Vasconcelos
Collaborators:Erika Musci, Fernanda Sá, Inês Brito
3 D And Renderings:Germano Vieira, Sara Noronha
Civil Engineering:Paulo Fidalgo - HDP - Construction and Engineering Projects, Lda
Hydraulic Consultant:Pedro Nunes - Diâmetro & Cálculo – Construction and Engineering Projects, Lda
Climate Consultant:Pedro Coelho Lima - Coelho Lima - Engineering, Lda.
Joinery:Valentim – Henriques & Rodrigues, Lda.
Construction :Victor Gonçalves Guilhade, Engineering and construction, Lda.
City:Porto
Country:Portugal
Text description provided by the architects. I know the city of Porto well. I thought I did. I went to Fontinha, right in the center of Porto, and entered a demesne with a bucolic air as if it were in the middle of the countryside, but protected by high walls. There was already a house there, the parents' house. With a tower that allowed you to leave the demesne and see all the urbanity of Porto, even to Foz, through the Atlantic.
In the agricultural part, nothing was missing. The animals, the vegetables, the fruits, and even a very small production - registered - of green wine. The only one in Porto. I got to know a little more about Porto. Something unique. So unique that someone even thought about classifying the cabbages, the peach tree, and the turnips. Mediocre digressions.
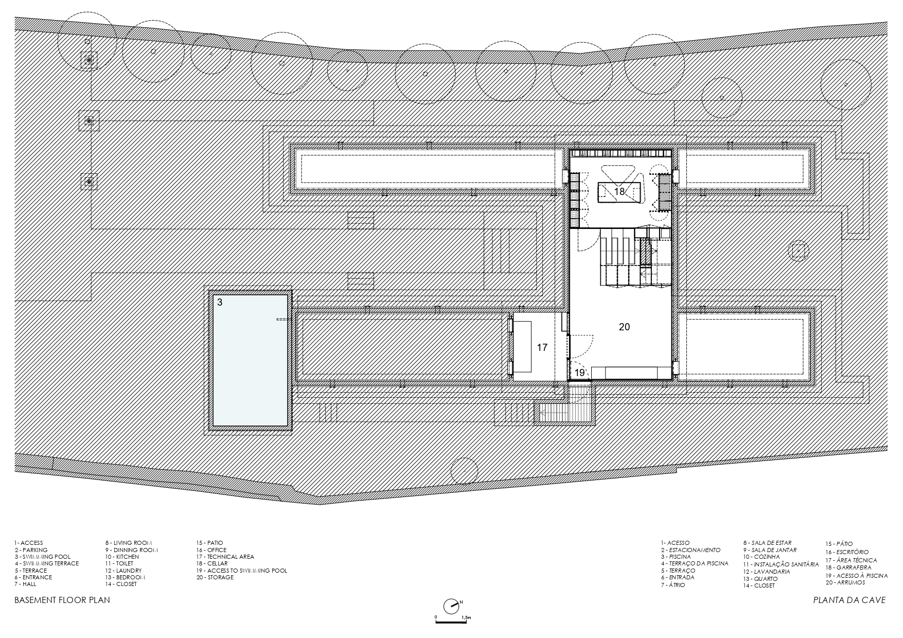
At the end of the backyard, they wanted a small wooden house. During the visit, I was warned that under a meter of topsoil would be granite. Hard and characteristic of the city.
Respecting the setbacks, the house rises from the ground in order not to disturb - too much - the subsoil. On a concrete base, a wooden structure formed by two Us was placed, which together form the shape of an H for the house. The front U - to the south - contains the social areas - kitchen, dining room, and living room. The back U - to the north - contains the three bedrooms.
In the center, there is the entrance hall and - on the mezzanine - a small office. In a small basement, the wine cellar - essential - and technical spaces complete the program. Each space is characterized by its wooden ceiling, creating a play of volumes of roofs that, although similar, are different in shape and size.
In front, two covered areas allow you to be outside, even though you are inside. Inside, the wooden structure is also the finish and lining. On the outside, everything is covered in copper, leaving some wooden structure, frames, and the glass that separates and connects the interior and exterior visible.
The cabbages, the peach tree, and the turnips are still there, but there is also a garden because everything transforms, out of a need to live. To live better and in harmony. We enter Casa da Fontinha, we are already leaving Porto.Only possible with the help of some and the indifference of many.
July 9, 2023 Carlos Castanheira
Project gallery
客服
消息
收藏
下载
最近



















































