查看完整案例

收藏

下载

翻译
Architects:Ricardo Yslas Gámez Arquitectos
Area:1200m²
Year:2023
Photographs:Jaime Navarro
Construction:Procesos controlados
Furniture:Dikat
Communication:Área Colectiva
Design Team:Rodrigo Espínola Fernandez, Marcos Morales Facundo, Jordan Daniel de la Paz Hernandez
City:Ciudad de México
Country:Mexico
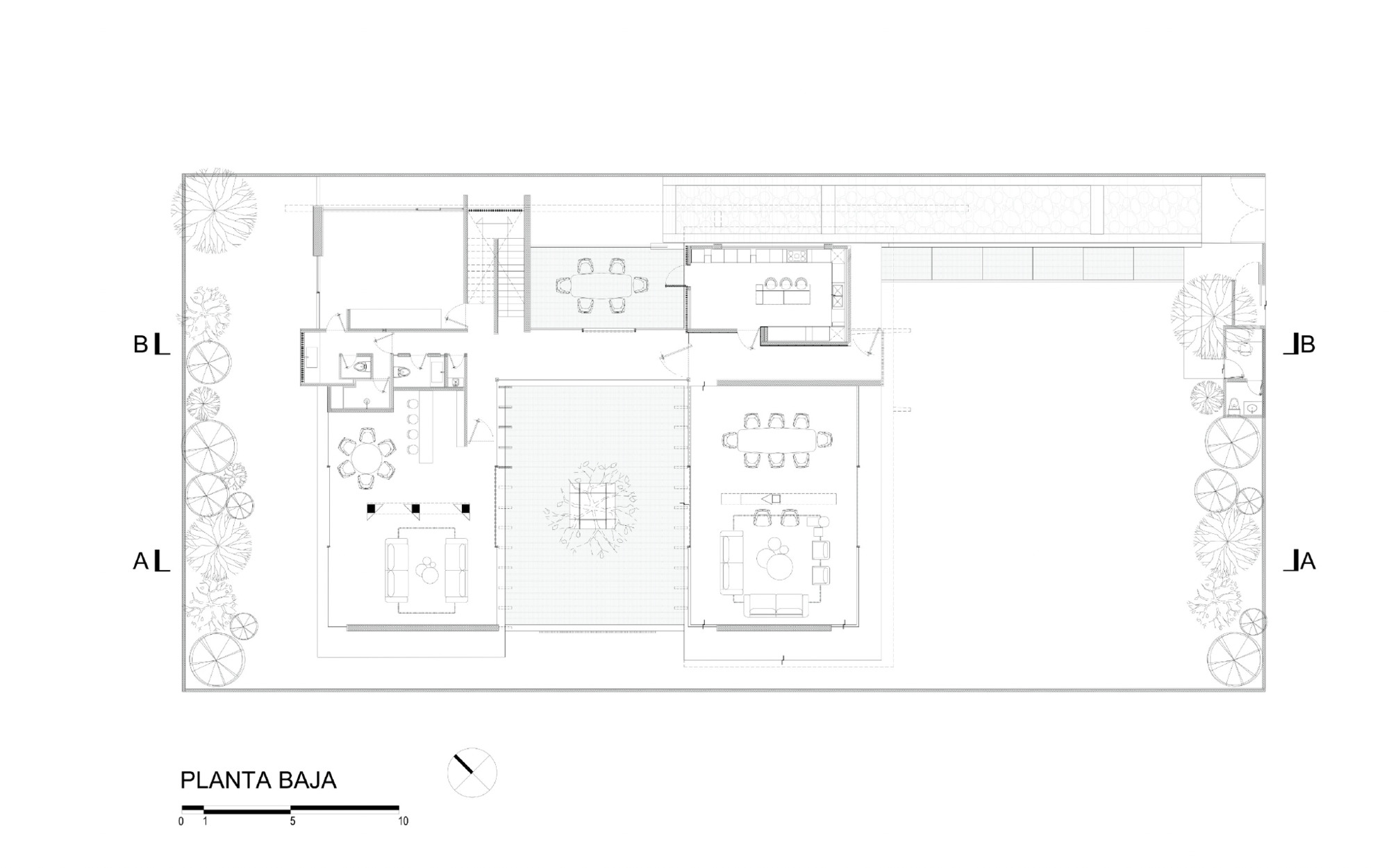
Text description provided by the architects. The main objective in designing this house was to preserve the 70-year-old guava tree that was moved from Morelia to Mexico City and became the central axis of the project. Thanks to its central location, the immediate context of the project has interesting and particular characteristics that favored the integration of the interior and exterior.
Another intention of the project was for its design and layout to provide views of the entire property through its transparency on the ground floor, thus allowing the contemplation of the site's breadth. Considering the architectural program, the decision was made to design the house in two volumes that are connected by a bridge, which crosses two strategically designed courtyards that allow for temperature regulation inside through cross ventilation, taking advantage of the climatic conditions of the area throughout the year.
The main courtyard is larger and functions as the core of the house and the main visual focal point, housing the recovered guava tree transplanted in a pot with a utility bench. This space opens up to the living room, dining room, and game room, having a direct relationship with the complementary gardens, integrating these common areas to be enjoyed together.
The secondary courtyard was conceived as an outdoor dining area with direct communication to the kitchen and a view of the main courtyard, which is surrounded by the two volumes that house the rest of the program, as well as a large floating wall that embraces the house. The private areas were integrated on the second level of both volumes, where the configuration of the master bedroom stands out, formed by large slabs and floating concrete elements.
Project gallery
客服
消息
收藏
下载
最近

























