查看完整案例

收藏

下载
Le Coq花园店选址在上海静安区URBN精品酒店的一层,此处餐厅位置花园环绕,占满了整个酒店建筑外墙的爬山虎加强着整个花园的绿意。餐厅的设计,试图将场地的这一特性渗透到酒店的使用功能中,找到都市生活方式与自然环境之间的平衡。
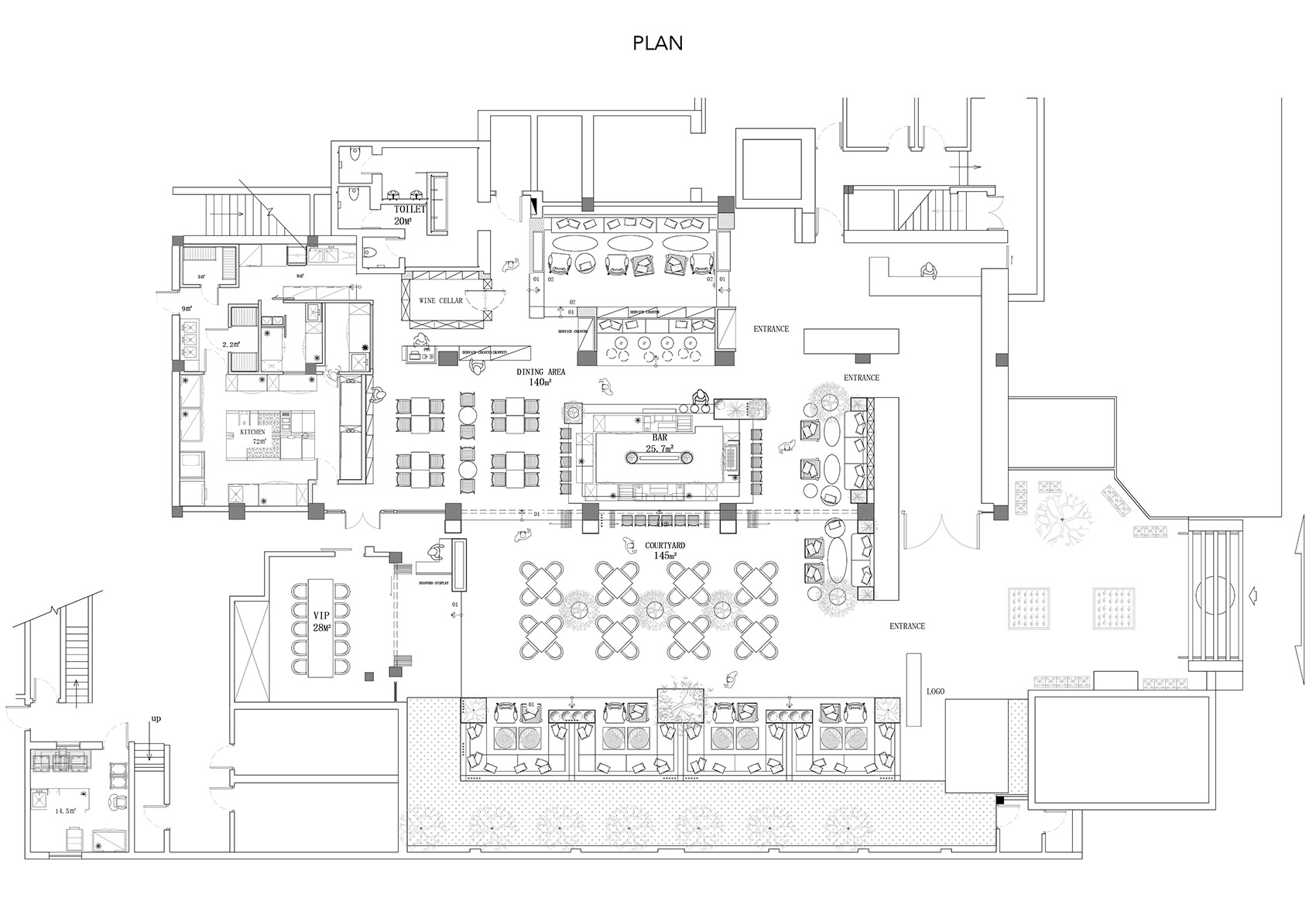
为了应对复杂的功能使用要求,我们在空间布局的设计上,采用三段阶梯式的空间布局方式;
将可转换功能的发光吧台操作区放置在了室外花园与室内用餐区的中间,借助可全部打开的外立面设计,将室内和内外的边界线最大化的模糊掉,无缝的衔接起来。
环形吧台的不同的功能的操作面,随着自然光线与室内光线的不同配合和变换,给整体餐厅提供了从早餐自助到深夜酒会的功能性转变,应对不同使用场景的出品和服务;
开放式的厨房区域和吧台区域进行了分离放置,此处设置了整体的酒杯,器皿的展示层架,将厨房隐藏在了后方,弱化厨房的边界同时,也削弱了其在无就餐时段的空置状态;
整体空间以吧台为中轴线,向室外和室内两个方向成阶梯性逐渐升高,在空间视线上呈现最佳的内外互通效果,也同时希望在全天各时段最具观赏性和气氛提升的吧台变成其空间的视觉核心。
在对于设计语言的思考和引入上,为了尊重UNBN酒店的运营理念以及lecoq餐饮品牌的风格特质。“借”是我们希望在项目里面尝试的设计手法。借现有被绿植覆盖的被保护建筑的表皮作为全开敞餐厅入口的背景。
借原有竹架的材质以及功能,通过精致化,打散,重构的手法结合与其同型的金属条,使其自然搭接延伸至餐区的每一个重要的角落,形成了餐区内部的核心主视觉区域。
通过不同灰度以及颜色的镜面、玻璃以及手敲镜面不锈钢的材质特性,借绿意,借造型,借“自由”散落在空间中大小不同的圆形可变氛围灯,自然的改变着餐厅的用餐环境,使客人在不同时段不同空间位置,都可以捕捉到不同的视觉的体验。
客服
消息
收藏
下载
最近


















