查看完整案例

收藏

下载
湄洲岛紧靠福建省“黃金海岸”湄洲湾,是莆田市第二大岛,包括大小岛、屿、礁30 多个。全岛南北长9.6 千米,东西宽1.3 千米,中部为平原,海岸线长30.4 千米。南北纵向狭长,因形如娥眉而得名,被誉为“南国蓬莱”。更有2亿妈祖信众,每年朝圣旅游盛况空前,被誉为“东方麦加”。
湄屿·南巷就在这海岸际上。
Meizhou Island is close to MeizhouBay, “Gold Coast” of Fujian Province. It is the second largest island in Putian City, including more than 30 small and large islands, small islands and reefs. The island is 9.6 km long from north to south, 1.3 km wide from east to west, with plain in the middle and 30.4 km long coastline. It is long and narrow in length from north to south. It is named “Penglai in the South” for its shape like an eyebrow. There are 200 million Mazu believers, and annual pilgrimage tourism is unprecedented, known as “Oriental Mecca”.
Meiyu Nanxiang is on the coast.
▼
项目位置
莆田
环岛南路
湄屿南巷
地域以有形无形的方式
介入构建融入环境
这是一个关于旧房改造的项目
原建筑是一栋占地110~120㎡ 常规外观的私人住宅,自带一个加分院落,临近沙滩海边。投资者想改造成一个在当地比较有代表性的集休闲,改善型的民宿空间。
The original building is a house with an area of 110-120 square meters, Private residence with conventional appearancee. It has a bonus courtyard and is near the beach. Investors want to transform it into a typical leisure and improved B&B space.
SOUTHLANE, 南巷
通体白色的建筑
显得十分纯粹与独立
拱形白墙与海天际唯美融合
为了将周边环境利用到极致,设计师苏清华使用大面积的落地玻璃让窗外的自然景观与空间融为一体,整幢建筑犹如一个向大海开放的空间,满足了人对自然与纯粹的向往,在这样一个自由的空间中,感受时间的静止,享受唯美的意境。
In order to make the best use of the surrounding environment, the designer Su Qinghua uses a large area of ground glass to integrate the natural landscape and space outside the window. The whole building is like a space open to the sea, which satisfies people's yearning for nature and purity. In such a free space, we can feel the stillness of time and enjoy the aesthetic artistic conception.
设计不为别的
就是为了引领一种生活态度和方式
让时光和自然碰撞
生活与理想融合
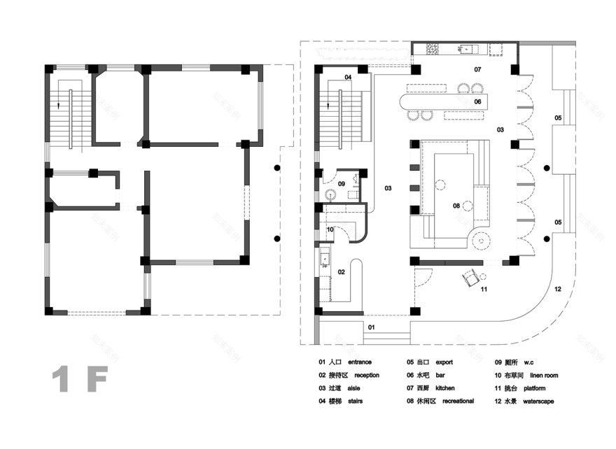
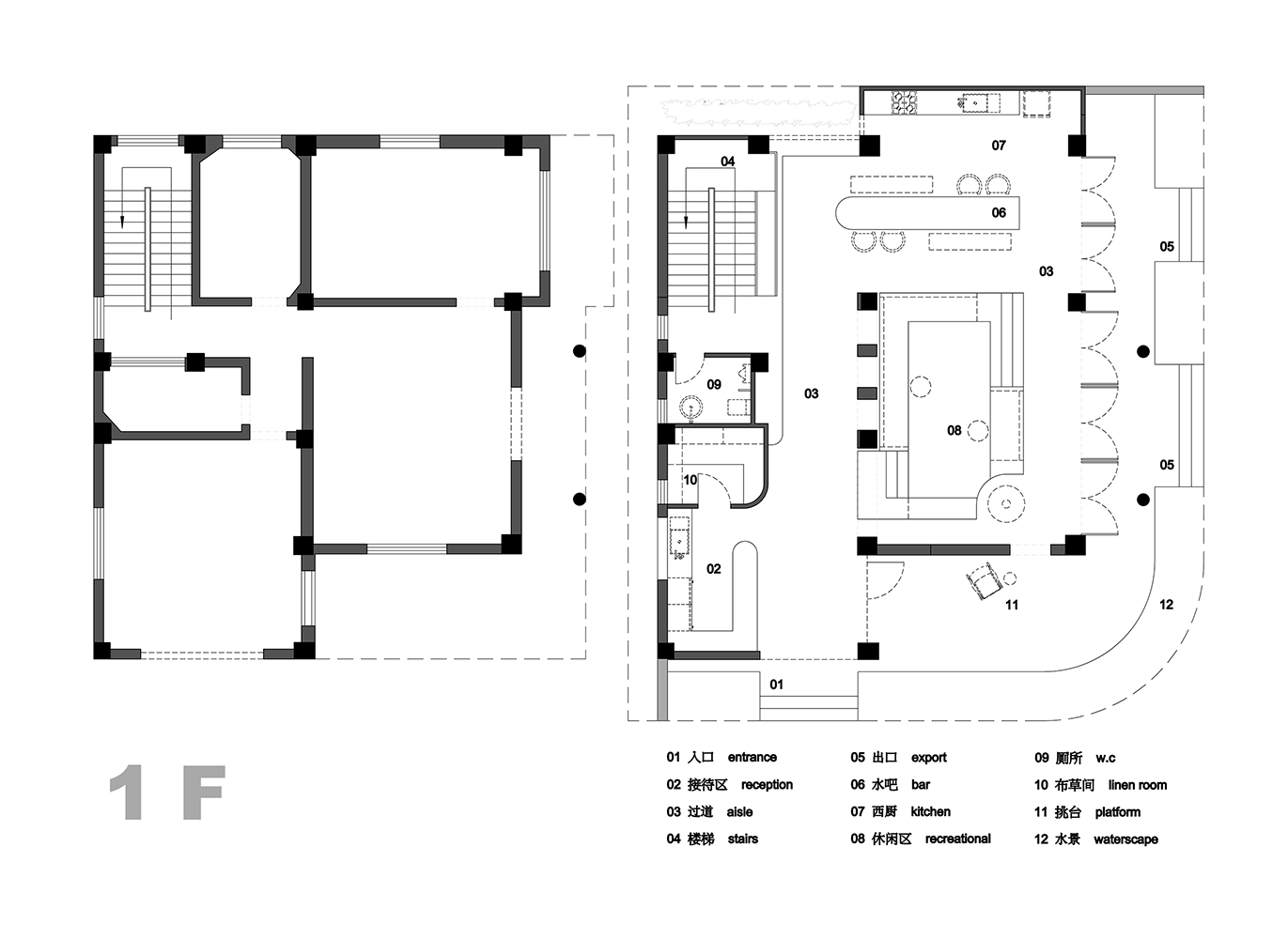
1F
-
空间
在SOUTHLANE,一种现代的生活方式渗入每一个细节中。设计师打开原来封闭的围墙和外墙,空间内尽可能将海景尽收眼底。空性,精确,节制。用设计的方式,解决建筑本身与功能布局上的核心问题。休闲区拱券隔而不断,有效落化了结构柱,划分空间同时形成纵深对比,更有层次感,黄昏时,光影很柔美。多处设计地台,起到分区的作用,低成本投入,空间有趣不会过于单调。
In southlane, a modern lifestyle permeates every detail. The designer opens the original closed wall and exterior wall to get a panoramic view of the sea as much as possible.
Emptiness, precision, moderation. With the way of design, to solve the core problems of building itself and functional layout. The arched partition wall in the leisure area is separated continuously, which effectively reduces the structural column, divides the space and forms the depth contrast at the same time. Multiple design platform, play the role of zoning, low cost investment, space interesting, not too monotonous.
1F功能区域的划分为下沉式休闲区,吧台餐厨,接待控区,娱乐区。模糊边界的分割方式,满足了不同的需求,空间最大化又不凌乱。微风拂动,蓝色海面在阳光下波光粼粼,静谧,灵动。
1F functional area is divided into sunken leisure area, bar and kitchen, reception control area and entertainment area. The method of fuzzy boundary segmentation can meet different needs and maximize the space without clutter. The breeze blows, the blue sea in the sun, sparkling, quiet, smart.
预制水泥质吧台
Precast concrete bar
楼梯一侧取消了扶手,设计了滑梯。
The handrail is cancelled on one side of the stairs and the slide is designed.
把时光还给时光
把生活还给生活
只要用心探索
就能发现生活真谛
SOUTHLANE 共有八房一厅,以”唐九牧林的诗和远方”命名/今湄洲岛的九州客房:端州、容州、简州、韶州、通州、偱州、司州、唐州、邵州。
2F
-
空间
为了注入“每个房间都是一个独立空间”的概念,设计师在相同的空间内,优化了不同的方案布局,视野变得更加开阔,同时也能够保证房间拥有互不打扰的隐私性。
In order to inject the concept of "each room is an independent space", the designer optimizes the layout of different schemes in the same space, which makes the vision more open, and also ensures the privacy of the rooms without disturbing each other.
每间房都能全方位地感受到周围的自然景观,犹如睡在大自然中,享受自然中的慢活。
Each room can feel the surrounding natural landscape in an all-round way, just like sleeping in the nature and enjoying the slow life in the nature.
基于房子本身梁柱
结合框景窗
拟出动态静态区间
3F
-
空间
3F房子另一侧,原结构两扇独立开窗,形体没有整体统一,设计师通过置入盒子的概念,引入凸窗,不仅增设了休闲飘窗台,外观形体上更加立体有说服力。
On the other side of the 2F and 3F houses, the original structure has two independent windows, and the shape is not unified as a whole. The designer introduced the bay window through the concept of placing the box, which not only added the leisure floating window sill, but also made the appearance more three-dimensional and convincing.
卫浴的设计也比较前卫,干湿分离,设置了淋浴间和马桶间,更有仪式感,体验感俱佳。
Bathroom design is also more avant-garde, dry and wet separation, set up shower and toilet room, more ritual sense, experience is good.
穿越城市的重重藩篱
我们试图通过设计
与天空、大海、自然重新建立连接
这种稀缺性的场地也成为设计的关键所在
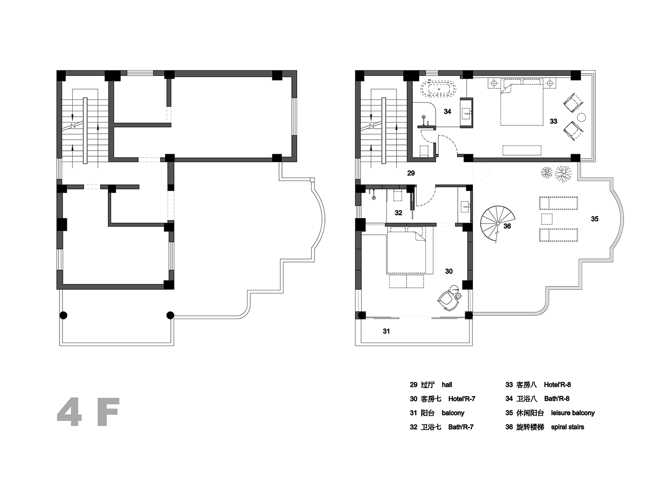
是美好的第一重昭示
4F
-
空间
基于对这种生活场景的想象,我们在空间中,创造了不同的体验点和主题功能模块,让美好场景与生活方式融合。
Based on the imagination of this kind of life scene, we create different experience points and theme function modules in the space, so as to integrate the beautiful scene and lifestyle.
在流动的空间中,不同生活模块互相穿透与交融,形成一种生活的漫游。这也是场所体验对于生活方式的引领所在。
In the flowing space, different life modules penetrate and blend with each other, forming a kind of roaming life. This is where the place experience leads the way of life.
艺术与自然都有治愈和启发的力量
空间承载着生活的想象力
而美的沉淀
源于生活营造的延续性
5F
-
露台
顶楼露台望向1F围合院落。
The terrace on the top floor looks to the enclosed courtyard of 1F.
自然休闲
以之为续
于无形中成为设计的贯穿元素
构建内在的风景
即行走于空间内部时
得以观望而形成的景别
-
项目信息
Project Name | 项目名称
SOUTHLANE, 湄屿南巷民宿
Location | 项目地址
福建 莆田 湄洲岛
Area | 项目面积
480㎡+
Master Design | 主创设计
苏清华
Design Company | 设计单位
大小空间设计研究室
Construction Unit | 施工单位
李建工作室
Completion Time | 完工时间
2020.09
Photography | 项目摄影
杨耿亮
客服
消息
收藏
下载
最近






























































