查看完整案例

收藏

下载

翻译
Architects:Bauclub
Year:2021
Photographs:Nicolas da Silva Lucas
Manufacturers:Louis Poulsen
Illustrations:Stephane De Groef & Bauclub
City:Bruselas
Country:Belgium
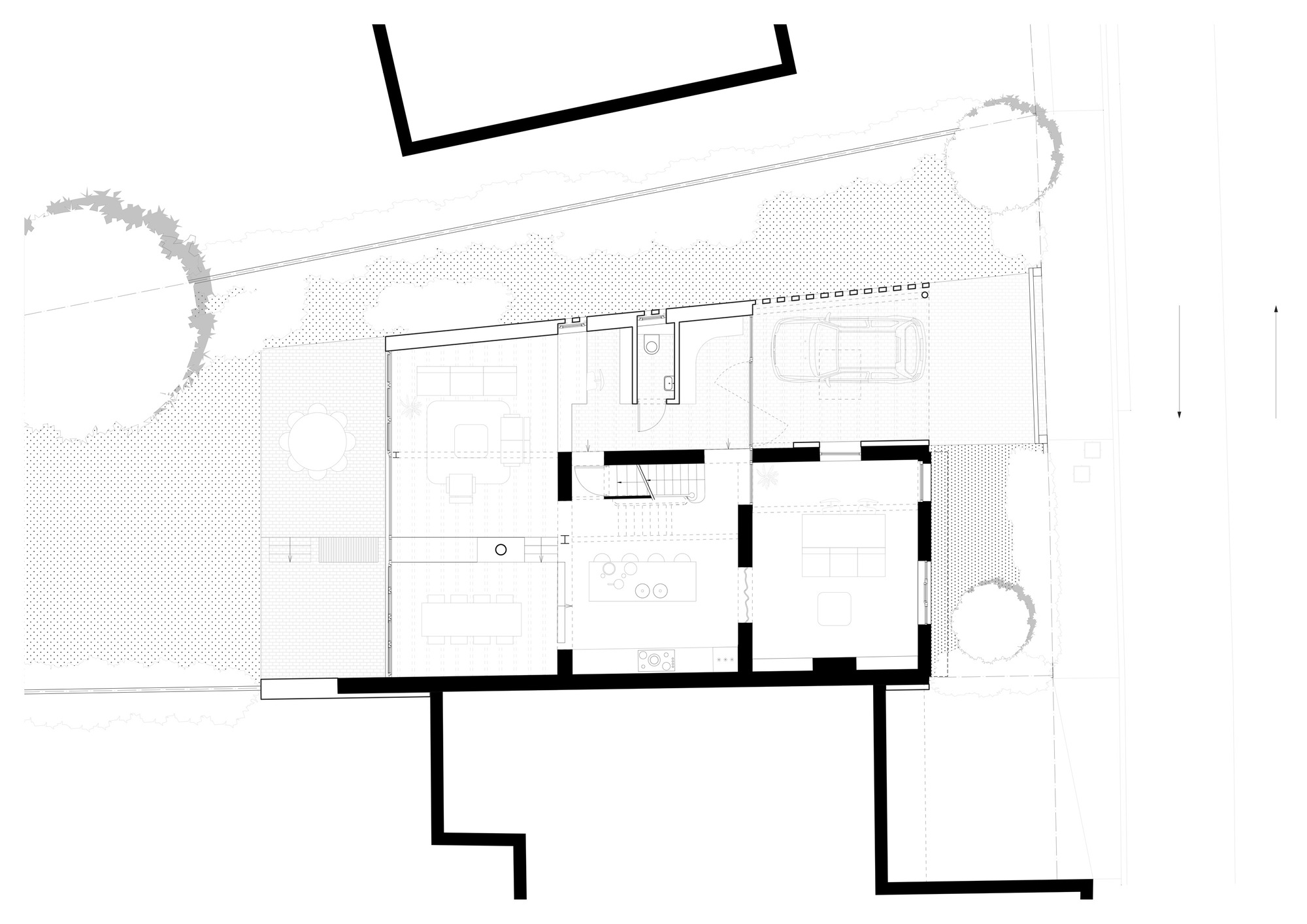
Text description provided by the architects. Intended to accommodate a family, the project is designed as a series of sequences that stage the way from the street to the garden, creating a spatial fluid sequencing through the house. This gradation crosses the house from the more common areas to the most intimate ones. All the new spaces revolve around the existing house, which is the point of reference when wandering between the different functions.
The request from the clients consisted of enlarging the spaces and improving the connection to the garden, which was non-existent. The transformation is intended to be global and makes it possible to give meaning to the reorganization of the spaces that the project suggests.
The entrance is moved, identifiable, and takes advantage of the situations offered by a house with three facades. Access is thus gained laterally via a covered awning set back from the road.
Streetside, the multipurpose space (games-library) takes place in the former living room and serves as a buffer between the public and private areas. Central, the kitchen comes to play the role of articulation and meeting between all the different spaces. On the first floor, the bedrooms and bathrooms of the existing part have simply been renovated, while the extension offers an additional bedroom on the side. The 2nd floor is allocated to parents who benefit from a completely unobstructed attic volume while the rear skylight offers them an open view of the preserved natural park of Kauwberg. A glazed cabin accommodates the bathroom.
The desire to receive and host generously while allowing differentiated spaces results in the work of half levels from the street to the garden. The kitchen serves as a hub for various functions. Like the Raumplan, each different space and function has simple geometries with varying heights that set them apart from each other.
A set of single-sloped roofs allow the spaces to be bathed in natural light while qualifying them thanks to their orientations.
The challenge is to preserve the identity of the existing house by adapting it to the functional and energy requirements of a contemporary house, the original building becomes the pivot between all functions and is readable from all spaces (new and old). Pre-existent elements and their materiality are revealed and take part in a desire for authenticity, contrast, and enhancement of traditional techniques.
Project gallery
客服
消息
收藏
下载
最近












































