查看完整案例

收藏

下载

翻译
Architects:Axial Studio
Area:120m²
Year:2021
Photographs:Mario Wibowo
Lead Architects:Ferdy Tan
Program:House
City:Tangerang
Country:Indonesia
Text description provided by the architects. F15 is the location for the axial studio. This building stands on an area of 187 m2 which is at the end of a row of a residential cluster. This building has a modern tropical concept with materials such as wood, brick, and natural stone. The garden-sloping design that looks focally on the facade of this building functions to create privacy which is also a barrier that limits the outside and inside spaces of this building.
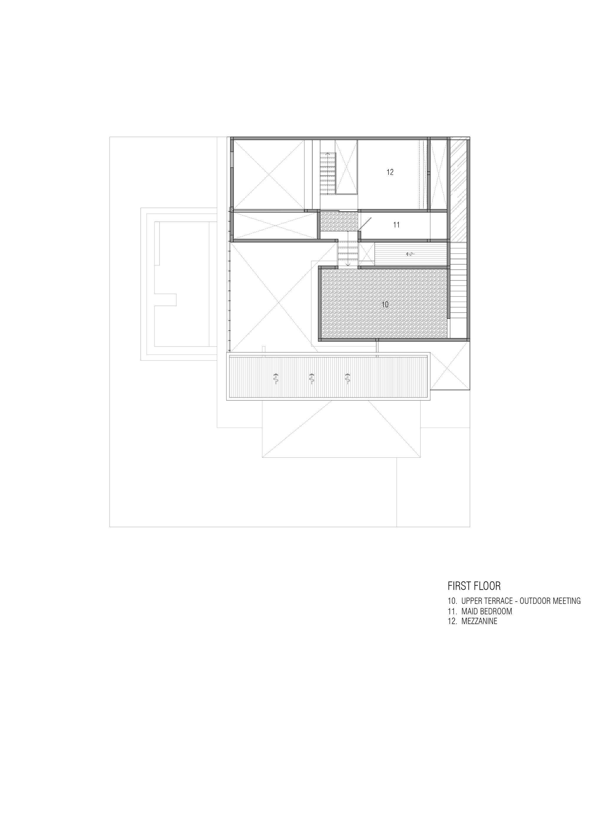
Starting from the function of the building, the main design strategy used when designing is to create a central open space that can be used for the surrounding functions. The function of the building is divided into 3 main parts, namely the guest area positioned as the 1st building mass which has closer access to the main door, the work area which is positioned as the 2nd building mass at the rear of the building, and the service area which utilizes the space between the two functions.
Placing the two main masses of the building creates an inner courtyard which is the focus of this building. The inner courtyard is used by users to rest just to see the surrounding trees or koi ponds, until lunch. Over time, the courtyard was widened to the side of the building, taking advantage of the vacant land that was obtained because of the position of the building's land at the corner of the cluster.
Project gallery
客服
消息
收藏
下载
最近

























