查看完整案例

收藏

下载

翻译
Architects:Limdim House Studio
Area:80m²
Year:2023
Photographs:Do Sy
Manufacturers:AutoDesk,Schneider Electric,Adobe,Ausdoor,SAT,Trimble Navigation
Lead Architect:Tran Ngo Chi Mai
Design Team:Tran Ngo Chi Mai, Ho Nguyen Dang Khoa, Hoang Dao Khanh Linh, Doan Minh Huan
Engineering:Doan Minh Huan
Country:Vietnam
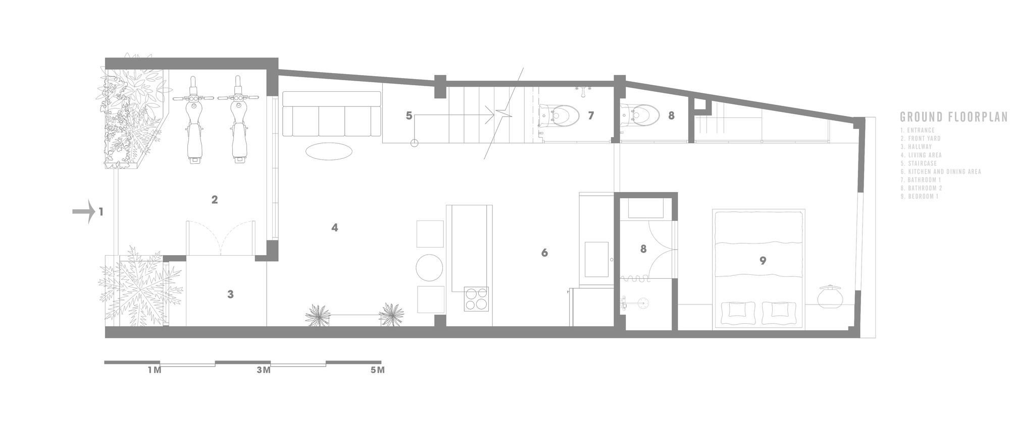
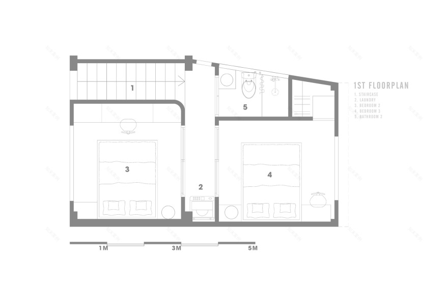
Text description provided by the architects. Ngâu is the name of a type of tree with small leaves, vigorous vitality, and exquisite beauty, which is the direct inspiration for this project's design. This house is in a small alley, part of a collective residential area designated for university professors. Therefore, when conceptualizing the design for this house, the architects aimed to present something novel yet harmonious with the surrounding residences.
By utilizing some old doors and incorporating them thoughtfully into the space along with modern details, we seek to preserve the nostalgic charm of this new house, ensuring it complements the communal atmosphere that has developed over many decades. The communities who have lived here and moved on have contributed to an ambiance that is not overly contemporary but neither outdated for this neighborhood. That is what we aim to maintain in this project. Due to the challenges posed by the narrow alley location, we meticulously planned the design from the outset, allowing for the most convenient construction process while minimizing disruption to the long-established character of this neighborhood.
The predominant color scheme of the house consists of brown, earthy orange, and the red hues of fired clay tiles, along with the warm tones of wood. Additionally, we have employed small, meticulously arranged mosaic tiles in various areas to create focal points within the structure. Furthermore, we have combined different types of linen and bamboo mesh curtains to introduce a raw, natural touch to the house. Though we understand that using such curtains may entail some complexity, we prioritize them to enable the residents to experience the traditional lifestyle through their daily activities.
For the exterior, the project features glazed ceramic tiles in shades of green, adorned with ethnic patterns, complemented by a raw, earthen front yard made of clay bricks, resulting in the essential contrast that accentuates the rustic appearance of the fence, adding a unique touch to the house. In conclusion, the Ngâu house, with its combination of modernity and antiquity, uniqueness, and harmony, will create an enchanting living space for its occupants while preserving its distinctive identity within this collective residential area.
Project gallery
客服
消息
收藏
下载
最近




















