查看完整案例

收藏

下载

翻译
Architects:Volca Interiores
Area:145m²
Year:2022
Photographs:Alejandro Gómez Vives
Manufacturers:Espacio Volca,MORTEX,Magama,Maora Ceramica,Todobarro,WC
Interior Design:Alejandra Centelles
City:Valencia
Country:Spain
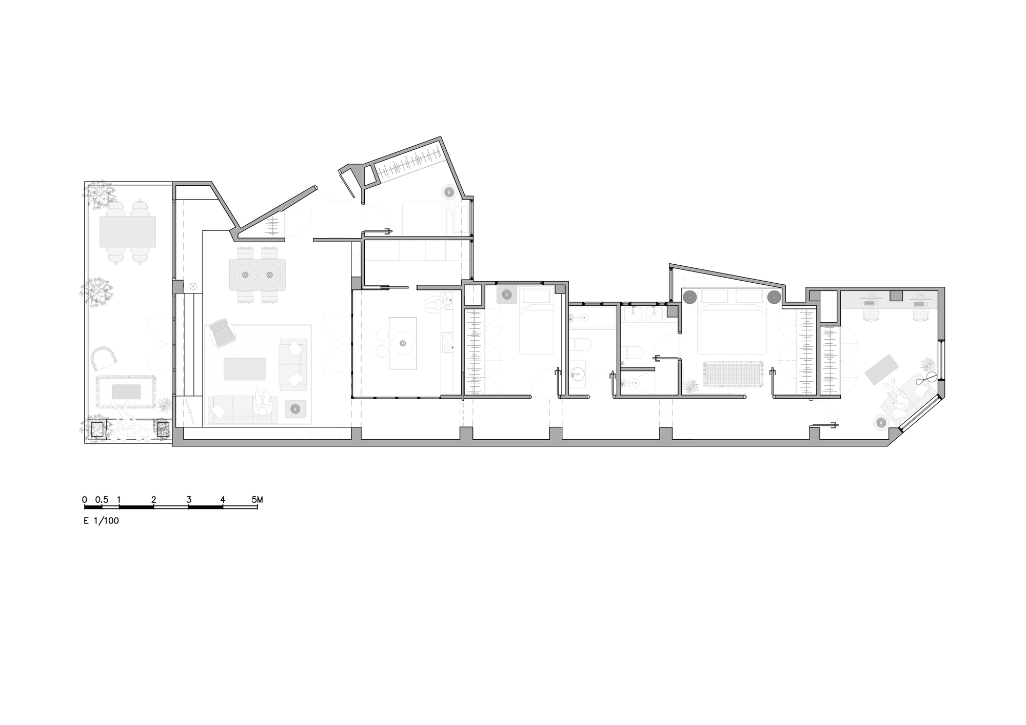
Text description provided by the architects. The integral reform of this house is based on the use of traditional materials such as handmade clay or noble materials such as stone or wood. All this combined with continuous flooring made with micro cement brings a clean touch to the space. In this way, the floor also gives protagonism to the ceilings that are kept with their original moldings, with the exception of the living-dining room, in which we opted for wood effect beams to bring even more warmth to the space. All this creates an environment where the neutral tones and textures of the materials, in combination, create a harmonious effect in each room.
To achieve a distribution where natural light and open spaces are predominant, we decided to invert the original distribution of the house, focusing it towards the terrace, making it take protagonism because it is a very open and sunny terrace. Upon entering the home, we find more activity spaces such as the living-dining room or the kitchen pantry. As we advance along the corridor and, protect these rooms from possible noise, we find the bedrooms and toilets until we finally reach the studio. Through a recessed sliding door hidden between the walls, we divide these two areas into two environments, one more intimate and private and the other designed for transit during the day.
The lighting has been a critical factor in the design: We found a total predominance of indirect and warm light where the light washes the walls of lime paint and manual clay with their respective irregularities, thus emphasizing the texture in the different rooms. It highlights the fixed furniture as shelves, headboards, or furniture/stairs, reminding us of the most traditional Mediterranean architecture. All this creates a warm and cozy atmosphere by combining these fixed elements with wood details.
Project gallery
客服
消息
收藏
下载
最近
































