查看完整案例

收藏

下载

翻译
Architects:Tectône
Area:669m²
Year:2022
Photographs:Cyrille Lallement
Manufacturers:Velux
Estructural engineering:IN4
Planning:B3P
Construction:Lucas Hadjimichalis
Design:Laurence Asmar
Environmental & Sustainability Consultants:Element ingénieurie
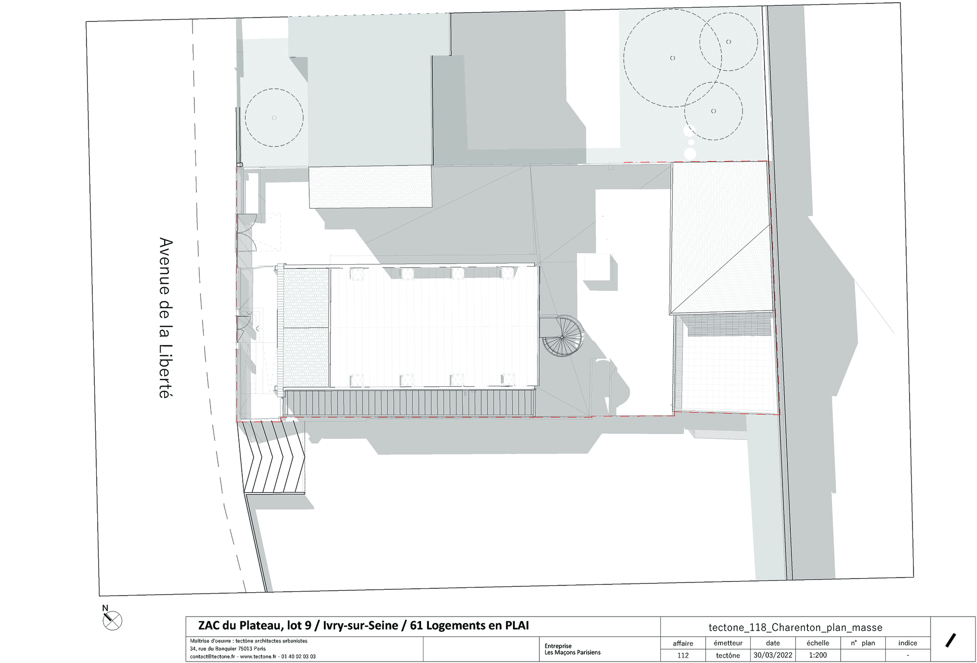
City:Charenton-le-Pont
Country:France
Text description provided by the architects. The chapel of the ≪Avenue de la Liberte≫ in Charenton is the living and working space of one of the first ≪Emmaus≫ communities in France since the 70s. Emmaus is a solidarity movement founded in Paris in 1949 by Abbe Pierre to combat poverty and homelessness. Emmaus is a secular organization, but communities around the world have kept the biblical name because of its symbolism. The charity provides formerly homeless people with a home and work, usually collecting, sorting, and reselling donated furniture and household goods in thrift shops. People welcomed by Emmaus are called ≪companions≫ In 2018, Emmaus Liberte appointed tectōne for a full renovation and refurbishment of their historical site. Our mission was to provide a clean, clear, and adapted to our contemporary world place of work and life for the community.
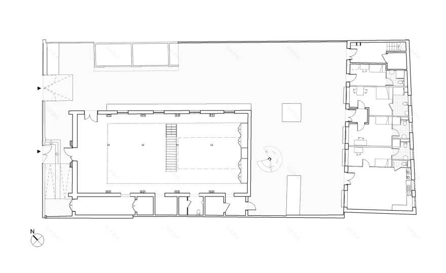
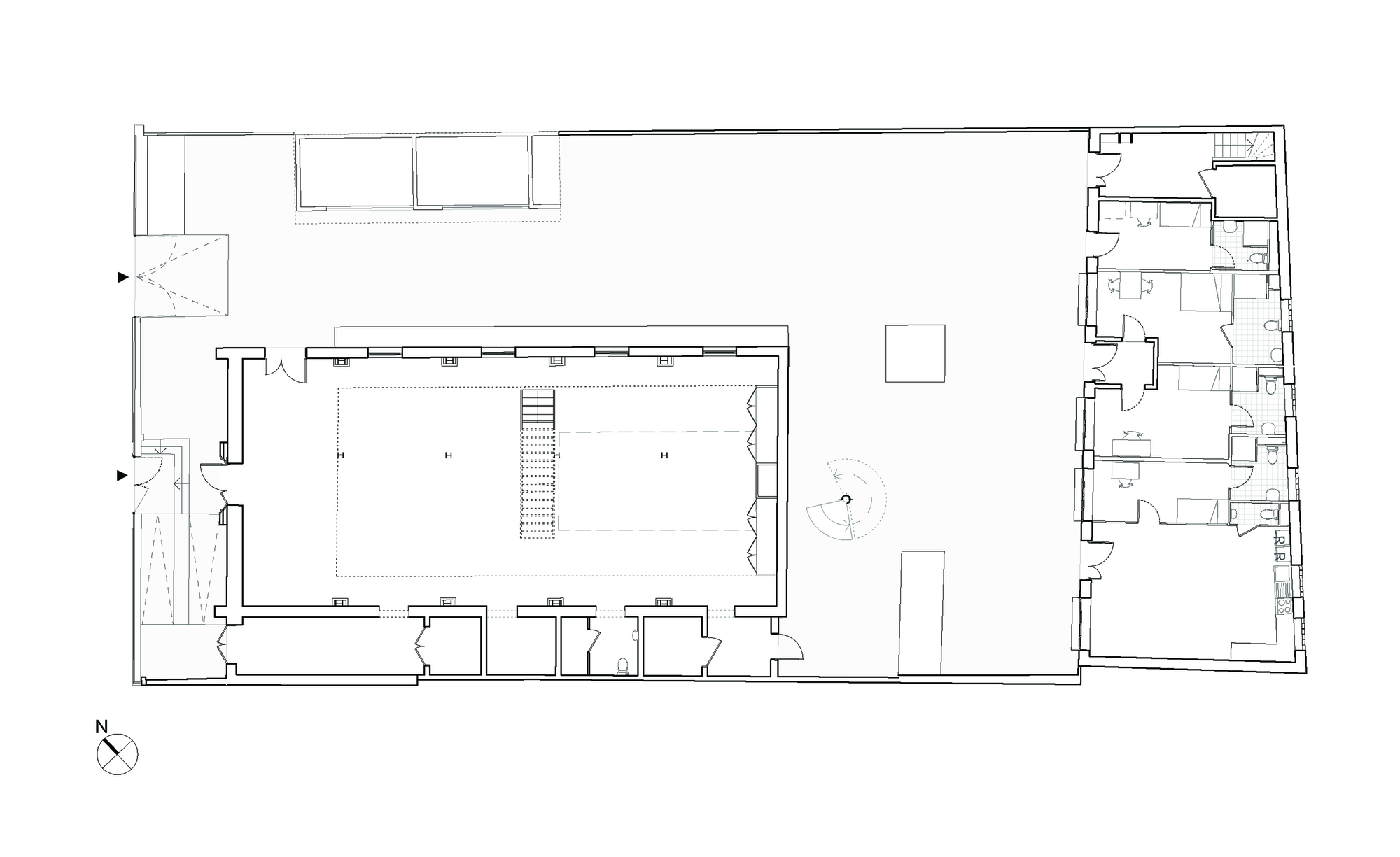
Sainte Madeleine Sophie Barat's chapel was erected in 1942 for the Diocese of Paris following the architect Charles Venner’s plans. In 1972 Emmaus Liberte acquires the chapel deconsecrated and steles the building, modifying and extending it to accommodate housing and a thrift shop. An extension is built behind the chapel. This extension was built with cheap and not conventional materials, and after more than 30 years of life, it is very badly damaged. Inside the church, a metallic structure was added accommodating two independent floors.
These additions created 6 rooms. A multitude of small buildings was built over the years around the chapel, to the point that in 2018 the quasi-entirety of the plot was built. Those additions were often unlawfully and unconventionally built and also were in a bad state for some of the contained asbestos. In consequence, our first step in the project was to clarify and clean the plot, only keeping only the essential parts.
After a long diagnosis and analysis of the existing buildings, we concluded that the best way was to destroy the additions made over the years to lower the density and magnify the pre-existing chapel. The chapel and the ≪pavilion≫ in the back of the plot were kept, restored, and extended. The main operation is the addition of the floor on top of the chapel, rising it to 2.10 m, that way we are able to increase the number of companions that are hosted in the building.
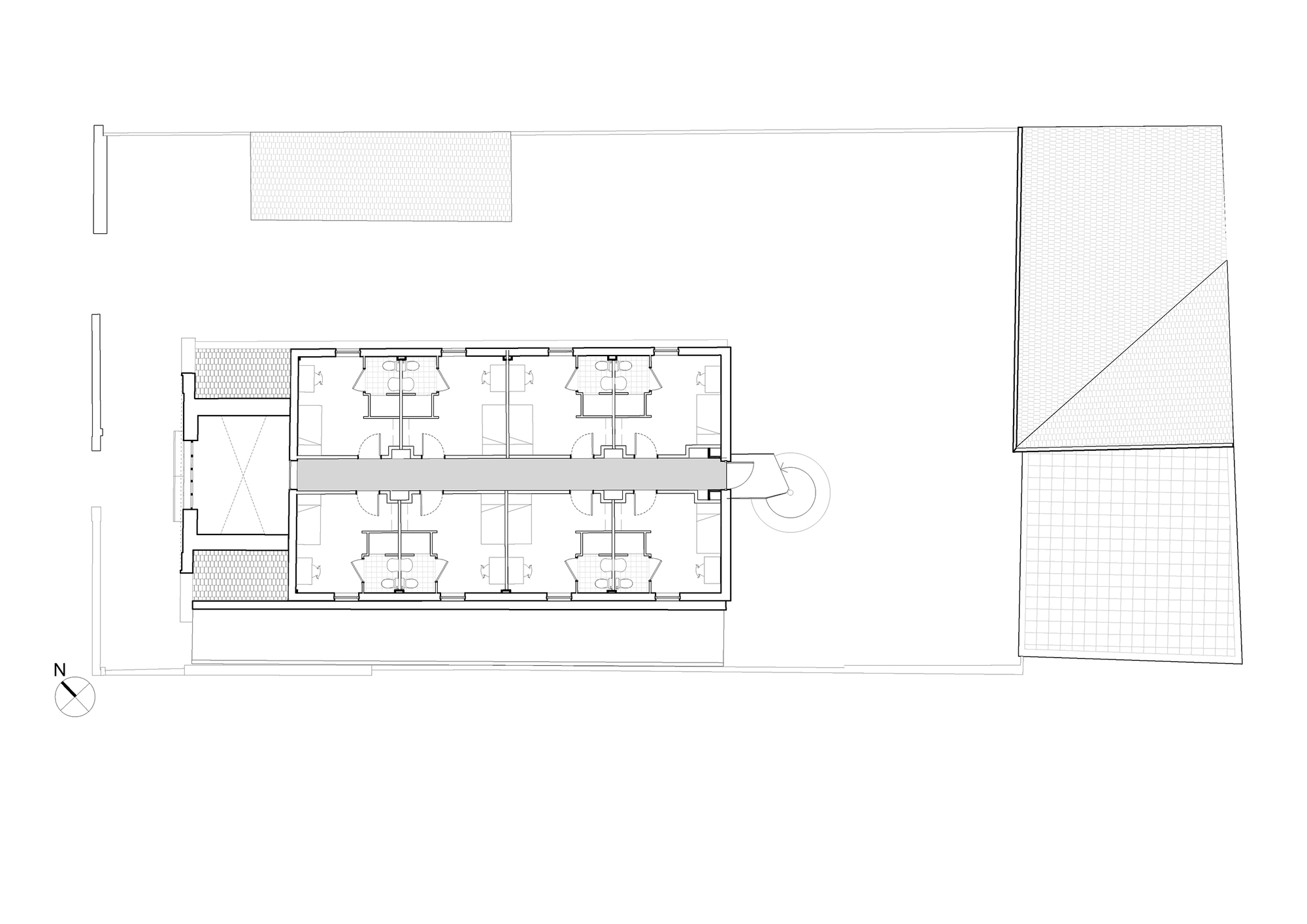
The extension is a wood and steel structure covered in Zinc that has an offset with the brick facade of the chapel, demonstrating clearly which part is new and which part is restored. On the ground floor the community thrift shop is installed, providing work to the companions and good to the city. On the upper floors are designed 10 apartments for the companions, each room having a personal bathroom. On the first floor, we can find a shared laundry.
Project gallery
客服
消息
收藏
下载
最近






























