查看完整案例

收藏

下载

翻译
Architects:Arkana Architects
Area:450m²
Year:2020
Photographs:Indra Wiras
Lead Architect:Gathi Subekti
Project Architect:Indra Wira Sasmita
Drafter:Ilham Firdaus
Design Team:Daniel Deo Gratia
City:Ubud
Country:Indonesia
Text description provided by the architects. Located in Ubud, Bali, Oberoi Villa is a private residence with a 470 sqm building area. which stands on a land of 1,005 sqm. Two main activities are accommodated here. Those are a place to gather and have fun, as well as a place to live. The front site serves as a recreational area with a badminton court and ping pong table. It is a more public area and the facilities can be used by guests. Then, the second part consists of a guest house and the main house, each of which has a different building mass. They are separated by fences like Bali houses.
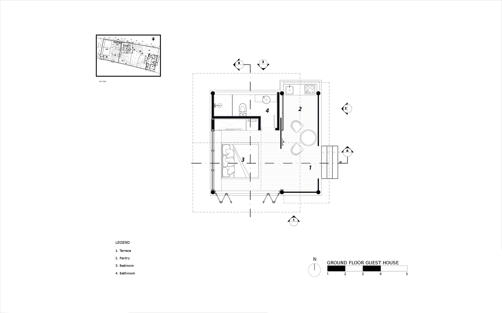
The guest house area is only one floor with one bedroom. It is also equipped with a swimming pool. Due to the contoured shape of the site, the other masses are positioned on the lower ground with two floors. In addition to the contours of the land, the placement of the building also considers the vista from each mass. We wanted each function to have its own and not overlap or interfere with each other. That is why the two buildings are not on the same axis. The guest bungalow is located on the left side of the site, while the main house is on the right side. At the same time, this position also allows for privacy for the owner.
To maintain this privacy as well, we chose a gable roof. The asymmetrical shape makes the mass of the building look different from the design of villas and dwellings in general. The part next to the neighbor has a longer roof than the other side. This is to protect the privacy of our clients from neighbors. They cannot see the activities that occur in the house. Moreover, we designed Oberoi Villa as a very open mass building.
This openness is designed based on the building concept that we propose to clients, namely living in nature. Our design also comes with a minimum of massive walls and maximizing openings. All rooms are designed to be fully opened, except for the children's bedroom. Therefore, clients will feel as if they are living and sleeping in nature. In addition, this villa also does not use air conditioning. They are completely dependent on natural ventilation.
Interestingly, the concept of "living in nature" is also present in the material that we use. We choose to use natural building materials, such as bricks and wood. We deliberately left it as a raw material so that the natural impression of the Oberoi Villa is getting stronger.
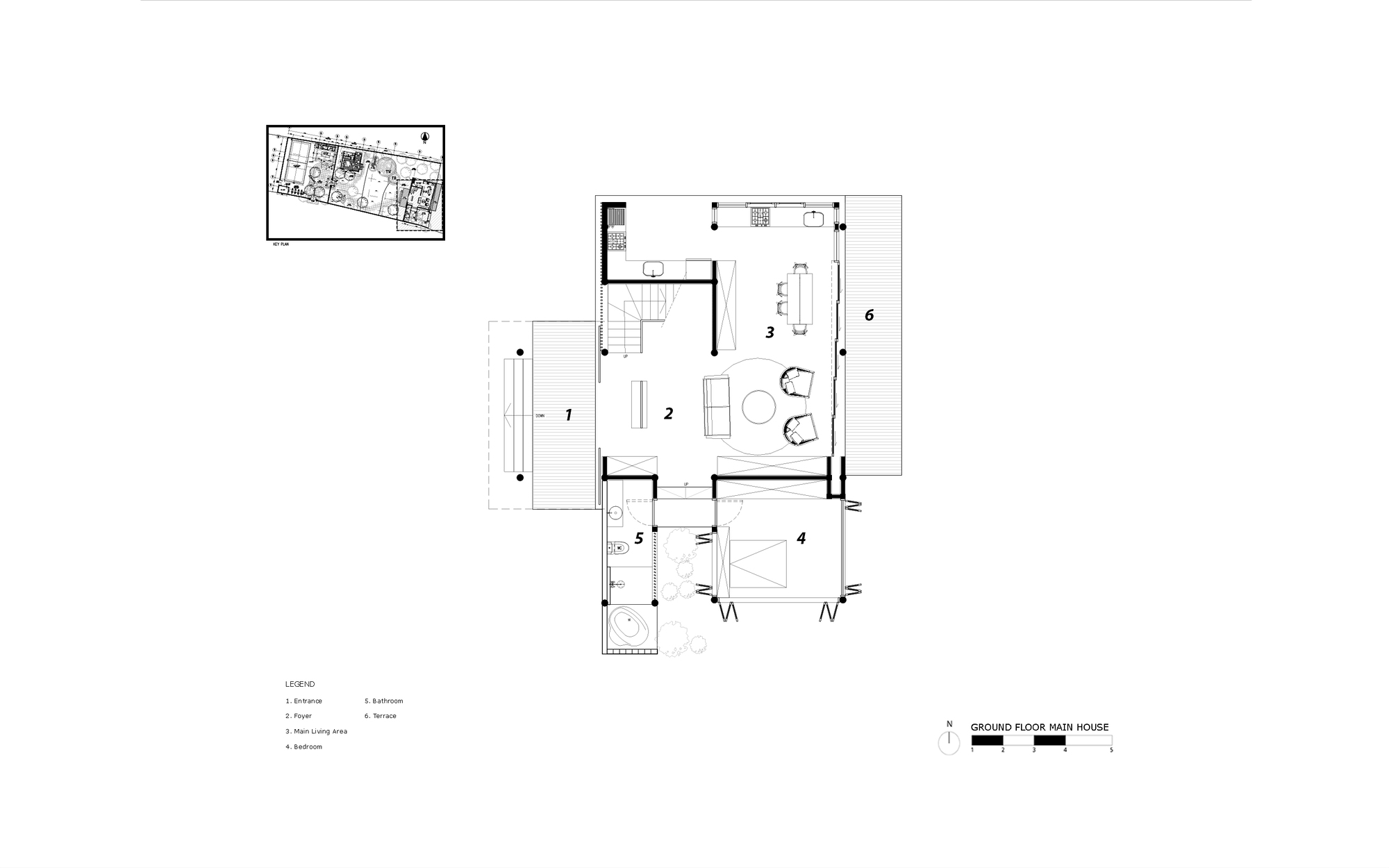
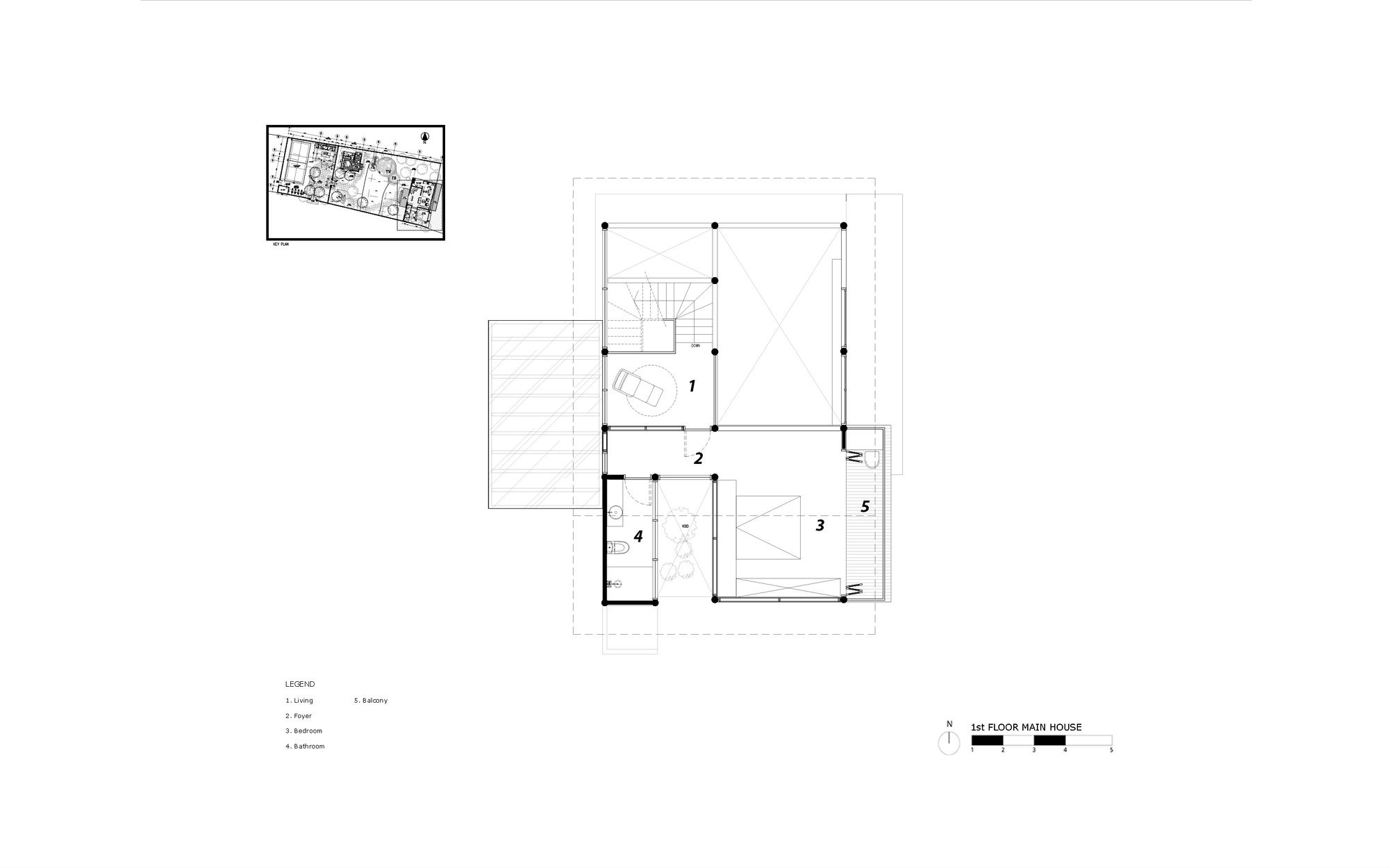
In addition to the seamless connection between the indoor and outdoor areas, this villa also has a seamless connection between the spaces inside. Especially for the main house area. This building consists of two floors. On the ground floor, we put an open kitchen and bedroom. Then, the master bedroom is located on the mezzanine floor. The two floors are designed without partitions, so all people in the house can freely communicate with each other. In addition, the room looks more spacious. This idea also keeps the air circulation in the house running well, up to the mezzanine floor.
Project gallery
客服
消息
收藏
下载
最近







































