查看完整案例

收藏

下载
“传统街区宜人的社交尺度和友好的邻里关系,激发了社区活力,其包容性和多样性正是现代化新城所缺失的。”
——简-雅各布斯《美国大城市的生与死》
小年轻 & 老街区
传统街区作为城市底色,在大拆大建的都市化进程中,
被涂抹覆盖,被边缘化...
有趣的是,老街区却开始受到年轻一代的关注,
越来越多的人气潮铺,文艺小店出现在传统街区,
小年轻陆续回归老街区 ,成为街区更新和代际更替的驱动力,
相比大刀阔斧的新城市建设,
街区微更新如同城市的自然生长代谢,
虽小,却美好;
虽慢,却温暖;
我们是见证者,也是亲历者。
牛排 & 酒吧
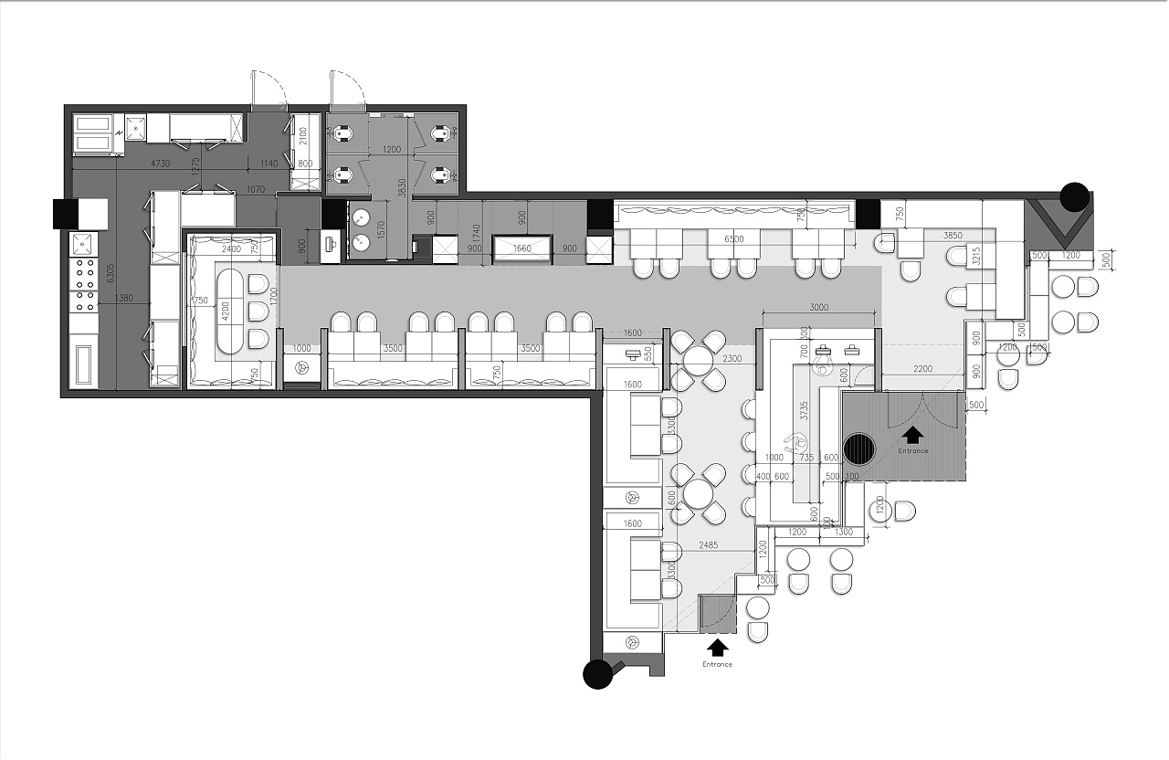
店铺面积不足200㎡,镰刀状格局(扇形带尖角),棱角分明,有一定利用难度。设计的任务是:在满足双业态经营需求(日间牛排餐厅,晚间音乐酒吧)的前提下,打造与品牌个性高度契合的空间气质。
三位年轻的委托人首次创业,希望与BDD携手,打造与众不同的品牌——Dissback Steak alliances(反击牛排联盟)
The Phantom of Cowhide
牛皮魅影
Domino tunnel
多米诺 隧道
借助镜面,将22米的狭长走道”拉伸“至40余米,“隧道”感倍增,植入”多米诺骨牌“概念,顺势打造出独一无二的空间IP——“多米诺隧道餐厅”。增强空间识别力的同时,赋予品牌更饱满的精神内涵。
注:多米诺骨牌源于中国古代的“牌九”,19世纪流传到了意大利,成为了欧洲人的一项高雅运动。忍耐\\专注\\执着\\拼搏 是多米诺的精神象征,与品牌精神高度契合。
Transformation
情景切换
日暮,灯光伴随音乐,情景转换, 微醺小酌 的氛围在空间中弥漫开来。
Wine cube
酒立方
酒立方缓冲了卫生间和客座区之间的硬连接,起到良好的心理调节和空间过渡,优化了客户体验。
Brand Vision
品牌视觉
LOGO萃取于毕加索的格尔尼卡,品牌设计师希望将艺术魔力注入到品牌的反叛精神中,呈现年轻所特有的锋芒和力量。
2019 岁末
三位年轻合伙人,初次创业,
以反击为名,以牛排为品,
踌躇满志,蓄势待发!
2020 年初
无数“原打算”,变成“没想到”
疫从天降,唏嘘世事无常!
愿
反击牛排以其笃定无畏
力克万难,烟火兴盛
Project information
项目档案
门前酣睡的旺财,慵懒自得,恰是老街的日常模样。
项目名称:DISS BACK · 反击牛排联盟
项目业主:高新区反击西餐厅
项目地址:紫竹北街85号大世界商业广场1层1栋191号
设计机构:BDD布道设计
服务内容:硬装设计 / 软装设计 / 照明设计
设计总监:刘万彬
艺术总监:谢晓影(博士)
特邀顾问:吴敏(湖北美院导师)/ 刘畅(传媒学院导师)
硬装设计:蒋吉 / 何关平(硬装四组)
工程顾问:王瑜
品牌设计:邓凌峰 / 成都方糖品牌营销策划有限公司
项目摄影:刘伟(聿空间摄影)
效果图设计:沃克数字图像设计
施工单位:四川泽锅建设工程有限公司
品牌支持:石客照明/四川庭燎照明/上海皓量家具/心轻逸科技/ 晟艺佳装饰/ 精方圆不锈钢
设计面积:250㎡
设计时间:2019年8月
设计周期:50天
施工时间:70天
客服
消息
收藏
下载
最近





























