查看完整案例

收藏

下载

翻译
Architects:Yuko Nagayama & Associates,shohei yoshida + associates
Area:62m²
Year:2022
Photographs:Satoshi Takae
Manufacturers:Stelapop,TSP
Structural Engineering:HSC
Landscape Designer:Toshiya Ogino Landscape design
Architects:Shohei Yoshida, shohei yoshida + associates (Architects)
Country:Japan
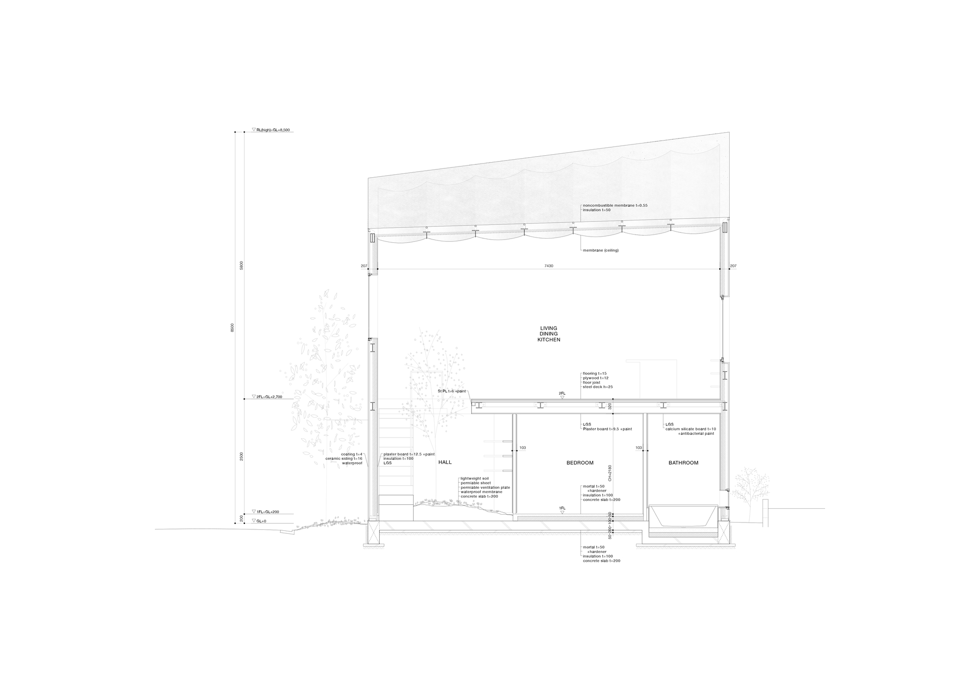
Text description provided by the architects. It is a private residence located in a dense residential area in Tokyo. Like camping in the city, the home is designed for the owner to enjoy the everyday life of inviting friends over and unwinding in his own space. The adaptiveness of the home and its functions are reflective of the owner’s nomadic lifestyle.
The site is enclosed by its surrounding buildings on all sides except for the narrow frontage facing the street. Since this site condition restricts from having large openings in the exterior walls, light is brought in from above. The membrane roof brings soft diffused light into the second floor and the atrium carries the light down to the ground floor.
The overall roof is constructed in a bendable membrane material to create a three-dimensional contorted surface. This roof is a double-membrane structure made of an upper and lower membrane with the structure and thermal insulation sandwiched in between. The lower membrane is hooked to the ends of T-shaped structural beams in a catenary curve shape, creating a ceiling lined in semi-circular light tubes. The air space within the roof acts as the thermal insulation layer and provides natural ventilation by circulating the air from the bottom to the top to maintain a comfortable indoor environment.
Although the sky is not directly visible from the membrane roof, one can sense the fluctuations of the environment through the changes in light. As the sun rises, the space gradually becomes brighter, and in the evening, the space slowly becomes redder by the warm light. The brightness also varies between sunny and cloudy days. The roof acts like a layer of skin that transmits the changes from the exterior to the interior and transforms one’s senses.
Project gallery
客服
消息
收藏
下载
最近























