查看完整案例

收藏

下载

翻译
Architects:RAD+ar (Research Artistic Design + architecture)
Area:1500m²
Year:2023
Photographs:William Sutanto
Manufacturers:Daikin,Mill Aluminium,Toto
Lead Architect:Antonius Richard
Architecture Design:Partogi Pandiangan, Antonius Richard Rusli, Junovan Muhammad, Leviandri, Felda Zakri
City:Menteng
Country:Indonesia
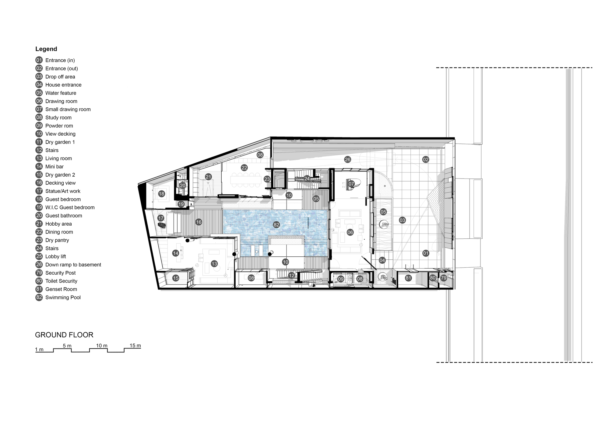
Text description provided by the architects. The house is located in the Menteng area, the most prestigious heritage residential area surrounded by 360 dense mix used business districts. The challenge was to rethink the status quo and needs for a typical stereotyping - glamorous and arrogant Menteng houses. In the process of responding to this quest, the architect breaks the scale of internal massing and the composition of empty spaces in between, the roof is divided into parallel bands of open sky garden in an alternating sequence overlapped mezzanine to create a diagonal loop of sky circulations.
This 1500sqm house is one of the latest variations of the serial house from the RAD+ar project for the ‘urban tropical house experimental’. “We decided to exercise the right to create multiple gardens and multiple neighborhoods’ experiences in a single home. It should act more like an infrastructure, or a pocket park open to the surrounding ultra-dense neighbors.” – Antonius Richard.
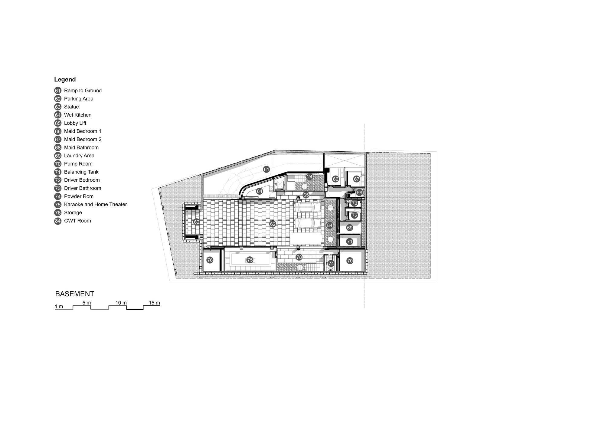
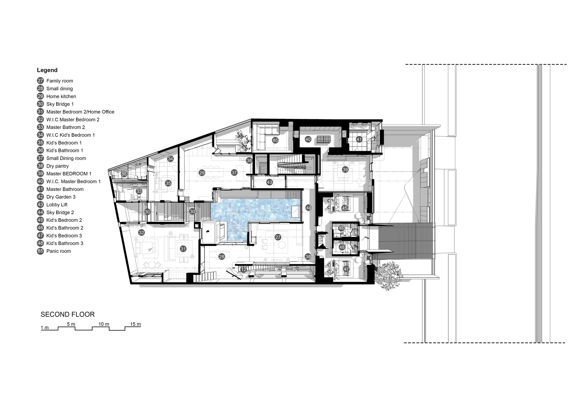
The ground floor is open and completely transparent, without any dividing wall, giving a visual connection across the whole house. The swimming pool acted as a visual light reflective line while at the same time acting as a skylight for the basement. From each passing story, residents can have multiple different views of the multilevel stacking gardens above and underneath them, giving the space its openness and elegance. The gently sloped, roof landscape is visually connected to the surrounding Jakarta Cityscape of hi-rise buildings. Amongst nature, the residents can enjoy multiple chances of interaction in their daily activities while enjoying cityscape views.
This modern tropical house was never aiming to be beautiful, but instead to be humble whilst also incredibly energy efficient, with the application of 5 basic passive building approaches and also active building features such as high-efficiency HVAC systems that minimize energy, solar panels on the rooftop and many smart house systems. It was to answer the quest of a humble young family that is looking for a unique way to explore the playful layout of multiple mezzanine gardens in a simple two-story appearance façade, this overlapping compact house seamlessly blends indoor-outdoor experience a warm and inviting atmosphere was created while maintaining a sleek and contemporary design.
Project gallery
客服
消息
收藏
下载
最近

































