查看完整案例

收藏

下载

翻译
Architects:Resolution: 4 Architecture
Area:5000ft²
Year:2020
Manufacturers:Western Window Systems,DuPont,Miele,Accurate,Bosch,Caesarstone,Daltile,Kohler,Subzero,U-line,USAI,WAC Lighting,WASCO Skylights
Lead Architects:Joseph Tanney, AIA & Robert Luntz, AIA
Environmental Consultant:B. Laing Associates
General Contractor :CK Home Builders Inc
City:Mamaroneck
Country:United States
Text description provided by the architects. When the homeowner/interior designer found this midcentury home designed by Frank Lloyd Wright protégé, architect, and landscape architect Kaneji Domoto, it was in utter disrepair. It had been abandoned and suffered from burst pipes and significant interior damage. There were even discussions about tearing it down. But after walking the property, the team saw great potential in the home’s original, sometimes quirky details and its unique siting. The glass-wrapped living room cantilevers over a small stream in a manner likely impossible to replicate under modern zoning requirements.
So, in collaboration with the homeowner and contractor, we set out to respect and enhance the midcentury architecture and Domoto’s sensitive attitude towards the landscape, while also making it livable for a young family. Major repairs and upgrades to the building systems and envelope were required to make the house safe, functional, and energy efficient. Ultimately, the project entailed a complete renovation and large addition.
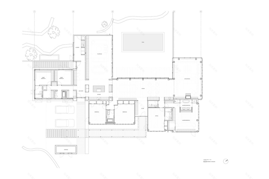
The existing garage, pool house, kitchen, and laundry room were demolished to accommodate two new guest rooms and a new open kitchen, dining, and family room. A new carport replaces the garage and reorients arrival to a new entry hall off the kitchen with white oak cabinetry. The new kitchen becomes the nexus, linking the existing formal dining and living spaces to the new addition. The new family room is lined with sliding glass doors to the pool on the north and built-ins on the south for media and toy storage.
From the carport, the existing covered walkway leading to the original foyer was reconstructed due to decay, and Domoto’s surrounding rock garden design – severely overgrown – was restored. In the central lanai space, which now houses the formal dining, existing wooden beams run rhythmically through the space and new translucent roof panels float above. Other existing skylights throughout the home were replaced and new ones were integrated into the addition.
Similarly, all the glazing on the existing house was replaced with new thermally insulated units. In the living room, sliding glass doors were reoriented to maintain access to the new smaller pool deck, which was built into the large existing rock outcroppings to the west and pulled back on the north side to expose views to the stream. A new gunite lap pool replaced the oversized kidney-shaped pool, allowing for more lounge and play space on the deck.
While sadly most of the original millwork was not salvageable due to decay and damage, the original cabinet pulls were reused as a nod to the original design. New custom built-ins throughout are much more functional and, with a mix of white oak and walnut veneers, keep with the midcentury aesthetic. Domoto’s original design for the living room space centered around the circular fireplace surround, which was preserved.
The existing wood ceiling in this space was also restored. Bringing some unexpected vibrancy to the material palette, the homeowner/interior designer introduced colorful accents with wallpaper and geometric tile. Her mix of modern, vintage, and midcentury furnishings complete this unique home.
Project gallery
客服
消息
收藏
下载
最近






























