查看完整案例

收藏

下载

翻译
Architects:Didonè Comacchio Architects
Area:500m²
Year:2023
Photographs:Alberto Singaglia
Manufacturers:Artemide,Bottega Nove,Carl Hansen,Fantini,Schüco,Ytong,Zampieri cucine
Main Contractor:cappellari Costruzioni
Structural Engineering:NOS | Stefano Scomazzon, Enrico Scanavin
Mechanical Engineering:Mountech
City:Pove del Grappa
Country:Italy
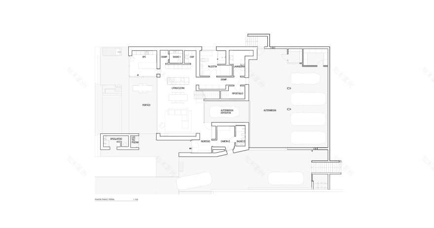
Text description provided by the architects. Project for a new private home on the outskirts of Bassano del Grappa (VI) - The project area is located at the entrance to the Valsugana, at the foot of the Grappa massif on a sloping terrain.
The building is placed partially embedded in the ground in order to create different views and play with the heights of the garden.
The plan was developed with great care, in order to create spaces with different degrees of privacy and to make the most of the view towards the existing natural landscape, satisfying all the requests of the clients.
The heart of the house is a jolly space, able to hold a collector’s vehicle and some canvases on rotation.
Project gallery
客服
消息
收藏
下载
最近


































