查看完整案例

收藏

下载

翻译
Architects:Sergio Sampaio Archi + Tectônica
Area:900m²
Year:2022
Photographs:Leonardo Finotti
Lead Architect:Sergio Sampaio
Coordinator:Renata Hirayama
Architect:Talita Teles
Interior Design:Shirlei Proença
Contractor:JHMA construções - Marco Caetano
CLT :Montec - Marcelo
MLC - CLT:Crosslam - Gabriela Lotufo
Masonry:Taipal - Andre Heize
City:Itaí
Country:Brazil
Text description provided by the architects. The house is located on a 6,000m2 plot with a view of Jurumirim reservoir in the municipality of Itai/SP, 300km from the capital of São Paulo.
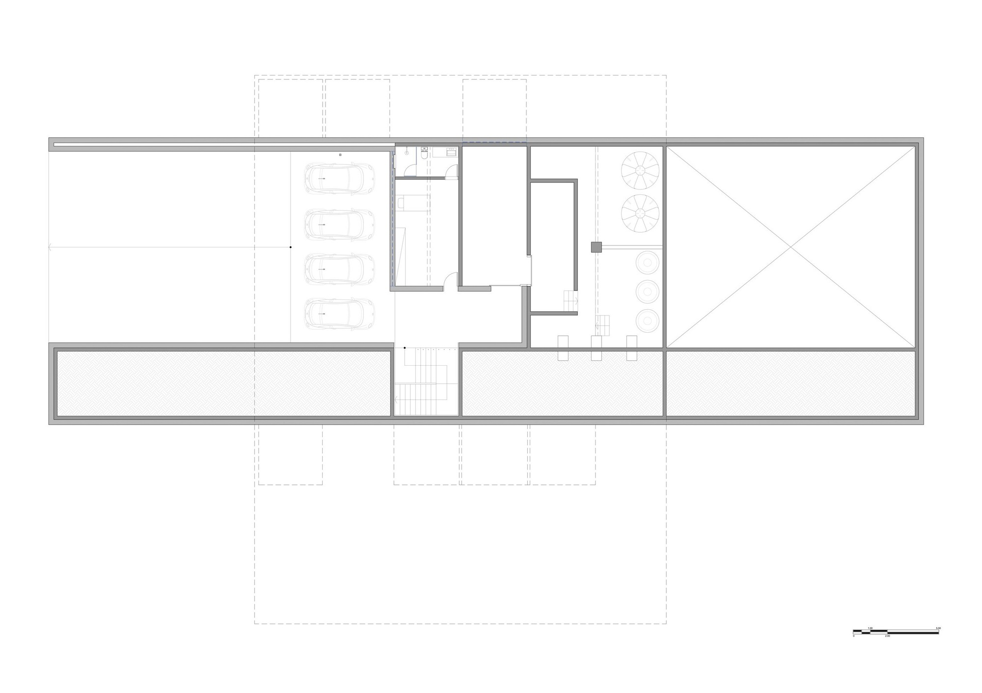
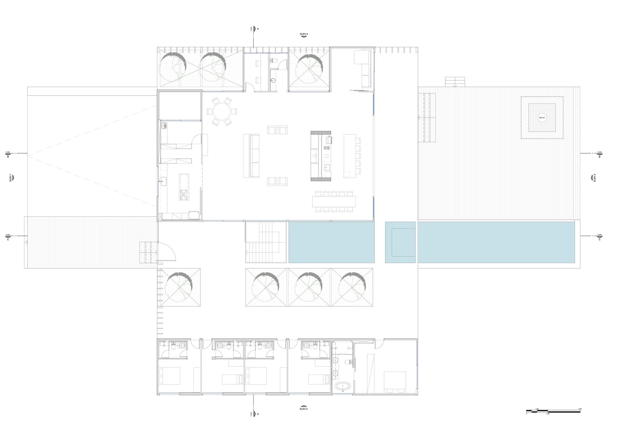
The architecture is based on the structural modulation of the floor plan into regular spans that form a prismatic pavilion, with a 4.00 x 4.00 grid defining the dimensions of the internal spaces of the residence. The pavilion is supported by metallic pilotis set back 2.00m from the edges of the construction, and a taipa platform emerges transversely from this, consisting of 2 decks: front (social access and garage) and back (solarium, fire pit, and pool).
The delicate composition of the overlapping volumes gives the building the intended lightness, making the large rectangular wooden prism (24.00 x 32.00) hover approximately 80cm above the ground without touching it. In formal contrast to this "floating box," the Taipa platform, whose earth that composes the walls was extracted from the site itself, poetically seems to "emerge from the ground" as if anchoring the construction to the terrain.
Despite the unitary appearance of the wooden pavilion, the floor plan organizes the functions of the program into 2 distinct nuclei separated by an internal "plaza"; on one side, there is the social sector (living room, fireplace, TV room, dining room, kitchen, barbecue), and aligned to the east are the bedrooms along the entire length of the east facade. The uncovered "plaza" is protected by pergolas of laminated wooden beams, where eucalyptus twigs provide a "latticework" shading that enlivens the internal spaces. In this transitional space, some palm trees, shrubs, and a reflecting pool are located, which mitigate the ambient heat while enhancing the framing of the view of the reservoir in the background. Functionally, this is where all the internal circulation of the residence is articulated; entrance hall, access staircase to the basement garage, circulation gallery of the bedrooms, and veranda.
Comfort and innovation:
The materials specified for the construction were chosen to obtain the best performance of the environments in terms of thermal-acoustic insulation and, simultaneously, visually express the technical solutions employed and highlight the materiality of the components as an architectural element. The entire construction is structured with CLT (Cross Laminated Timber) wood panels for walls and slabs, and MLC (Laminated Glued Wood) beams and columns, whose modulation of the pieces defined the configuration of the internal spaces and facade sealing components.
Natural light and cross ventilation are ensured through crystal Venetian domes in the bathrooms and large openings framed by sliding aluminum frames and laminated glass with transparent UV-resistant film. The faces of the prism are covered by ventilated facades composed of wooden boards fixed on aluminum profiles over a hydrophobic membrane (Tyvek), which contribute to the thermal-acoustic insulation of the construction and isolate the interiors from external humidity. Sunshades and MLC wooden pergolas allow for ventilation of the spaces and filter excess solar radiation into the residence's interior.
The electrical and plumbing installations pass between the gypsum ceiling and the roof slab executed in a wood frame with plywood sheets under a TPO thermoplastic membrane. The cabling risers and pipelines are concentrated in maintenance shafts distributed equidistantly throughout the construction, just as technical gutters run horizontally freely under the ground floor slab, which is elevated 80 cm from the terrain, facilitating the maintenance of the installations.
Sustainability:
The project was conceived and the construction was planned with the premise of making the construction processes more efficient in order to minimize environmental impact. For this, the construction was carried out in 2 phases:
1 - Earthworks, drainage, water, and sanitation connections, and the execution of in situ reinforced concrete foundations and base using local labor.
2 - Production of industrialized components (CLT panels, MLC beams, aluminum frames, and ventilated facade trays) in the metropolitan region of São Paulo. Transport and assembly (30 days) were done through a crane truck and specialized installers who fixed all the structures and seals with male-female systems and screws.
The modularization of the project through the elements of composition, the predominant use of renewable matrix components (wood), lightweight structures, and segmented pieces for easy transport optimized the construction time and drastically reduced water consumption, waste generation, and material waste. In addition, the planning of the construction and the adoption of innovative processes promoted the technical qualification of local labor and suppliers during the construction process.
The elevation of the main volume of the house in relation to the ground, allowing for ventilation and avoiding the transfer of heat and humidity to the interior of the house, together with the thermal insulation properties of wood and Taipa, ample ventilation, and natural lighting, ventilated facades, thermoplastic membrane roofing, and solar panels for water heating and photovoltaic energy generation ensure the environmental comfort of the residence while reducing electricity costs for artificial lighting and air conditioning, making its use more eco-efficient.
Regarding the water reuse system, two 5,000-liter cisterns were installed to store rainwater collected from the roof slabs, which are reused for garden irrigation and external cleaning.
Project gallery
客服
消息
收藏
下载
最近































