查看完整案例

收藏

下载

翻译
Architects:Taiga Kasai + Chong Aehyang Architecture / KACH
Area:173m²
Year:2020
Photographs:Vincent Hecht
Manufacturers:C.I. TAKIRON Corporation,Serge Ferrari,Tsukiboshi Shoji
Architectural Design:Taiga Kasai, Chong Aehyang
Structure Engineer:Graph Studio, Yuko Mihara
Textile Design:Himuro Design Studio, Yuri Himuro
Country:Japan
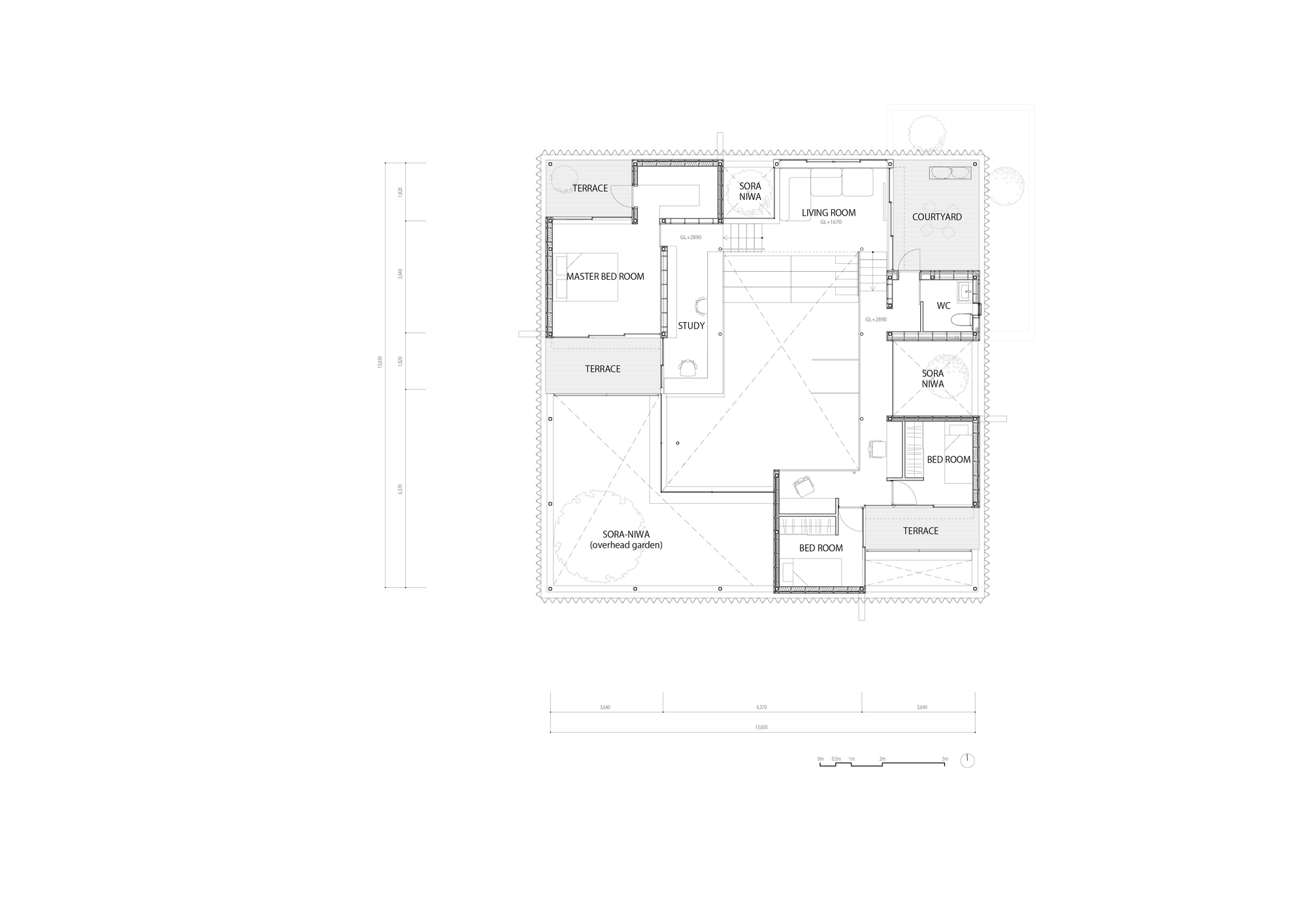
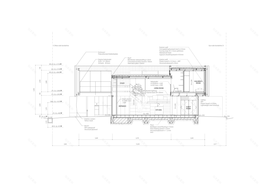
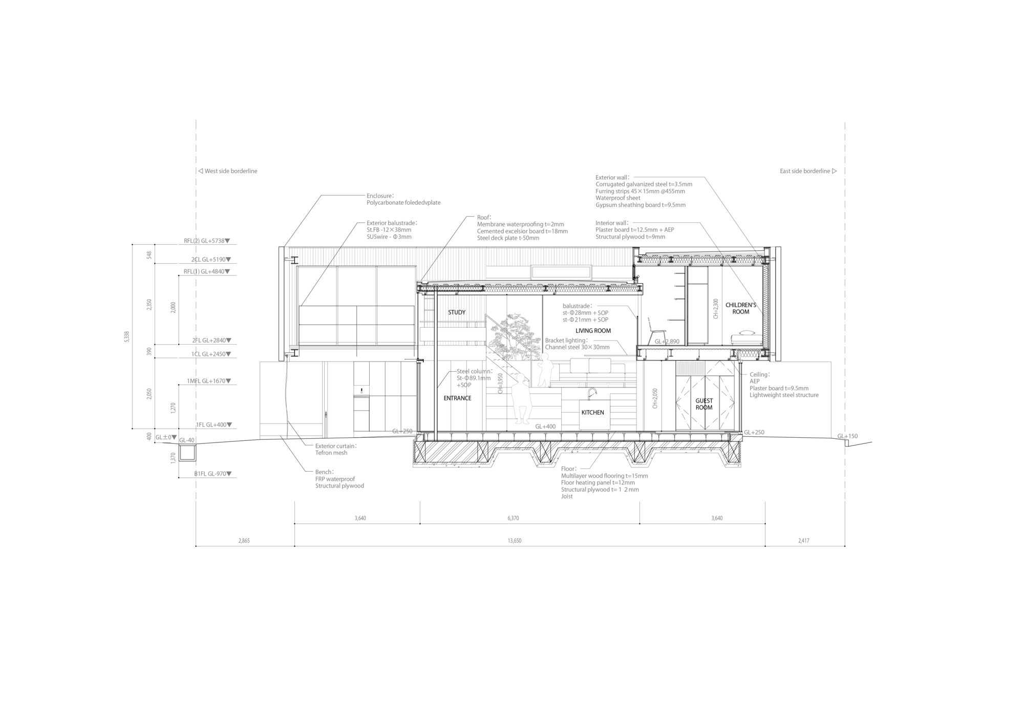
Text description provided by the architects. The private house for the family of four which is located in residential area in Japan. We create a generous outline by erecting a translucent polycarbonate enclosure along the property to separate it from the surrounding areas and making it float in the air. The floating enclose creates separation, but since it floats, the house itself is still connected to the surrounding environment.
Inside the enclosure, residents remain hidden from the outside when they climb up, but they can choose to come down and present themselves within the area that continues to the outside. We used the floating enclosure to define the spatial character. The house’s final design gradually took shape as we studied the functions and their placement to create a home suitable for its environment.
In the middle of the site and enclosure, the dining room and kitchen were placed on an open ground level surrounded by other rooms. These rooms have different floor heights and gently connect each other without partitions. While the spaces that require privacy are positioned on a higher level or in a semi-underground area each room is connected so that the residents can feel each other’s presence no matter where they are in the house.
An outdoor curtain was installed under the floating enclosure to open or close the external space as needed. This is one of the essential features that change the quality of the enclosed space, and that allows the residents to adjust the relationship between the house and the community. The external space can be controlled to be public space or private space by an outdoor curtain. By gently connecting the surrounding environment to the deepest core of the house, we want to create an open and lively home where the resident’s life becomes a part of the town, and the town becomes their garden.
Project gallery
客服
消息
收藏
下载
最近


























