查看完整案例

收藏

下载

翻译
Architects:SMxL Architects
Area:131m²
Year:2022
Photographs:Hanbit Kim
Lead Architect:Sangmin Lee
Interior:SMxL Architects
Structural Engineers:ARCHFEEL Structure Engineering
Construction:SMxL Construction, Dongyong Kim
Electrical Engineers:It's me E&C
Mechanical Engineers:It's me E&C
Civil Engineers:Hwa-do Survey Engineering
Manager:JeongHoon Shin
Staff:JeongIn Kim
Telecommunication Equipment:It's me E&C
City:Namyangju-si
Country:South Korea
“A House Containing A Landscape, A House Within A Landscape”
The Namyangju Detached House was constructed by a newlywed couple as their first home when they started their family. It is situated on a slender piece of land amidst the mountains, giving the impression of a hermitage or a cozy hut nestled in the hills when viewed from afar. Despite the emergence of rural housing complexes and luxury villas nearby, the immediate surroundings of the house remain enveloped by dense trees, creating a serene and intimate forest-like atmosphere. The tranquil and picturesque setting is truly unique for a detached house located in the heart of the city.
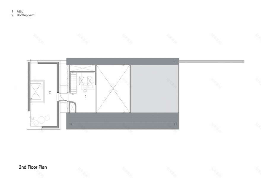
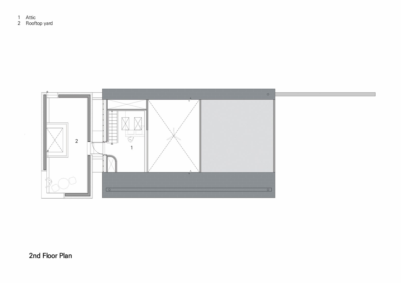
The client's preference was for a single-story house, with a particular desire for three rooms to accommodate future children and a rooftop yard exclusively accessible to family members. However, meeting these requirements while maintaining a single-floor layout presented challenges. While it was possible to allocate all three rooms on the ground level, this resulted in smaller spaces throughout the house, despite maximizing the available building area. As an alternative solution, two rooms, a living room, a kitchen, and a bathroom were positioned on the first floor, with one room situated under the sloping roof as an attic. To create a comfortable attic space, the naturally gabled roof shape was adopted, and a flat roof was designed over the main bedroom to accommodate a rooftop courtyard.
The house can be divided into four main areas: public exterior space, private exterior space, public interior space, and private interior space.
Firstly, the public exterior space encompasses an entrance yard where visitors can access the house and park their vehicles. A vacant lot is provided for parking before entering the house, acting as a buffer zone between the road and the property. Surrounding the yard, a concrete wall of varying heights shields the house from the view of passersby on the sloped road. This wall embraces the yard, serving as a protective barrier while defining the boundaries between the house site and the road.
Upon entering through the front door, one is greeted by the living room, the primary public interior space. The living room features a gabled roof design, ensuring a spacious ceiling height. Large south-facing windows offer breathtaking views, while elevated windows to the north allow glimpses of the forest behind, as well as cross-ventilation. The absence of walls separating the kitchen fosters an open concept, providing a sense of spaciousness and allowing the family to utilize the kitchen as a generous communal space.
In the kitchen, a horizontally long window is situated along the sink on the east side, connecting it to the living room. Additionally, a folding door on the south side opens to reveal a magnificent view, creating an opportunity for outdoor dining on the terrace. When fully opened, the folding door allows for the expansion of the interior space onto the front terrace. It functions as a folding screen, blending the surrounding scenery with the changing seasons, and offers the possibility of extending the interior space to the exterior during favorable weather conditions.
Moving from the living room and kitchen to the outside, one arrives at the terrace, a private external space. This terrace provides the family with the opportunity to intimately engage with the surrounding scenery, serving as an outdoor area that seamlessly extends the interior space. To enhance its functionality, a concrete bench is positioned on one side for seating, while a concrete flower bed allows for tree planting and adds aesthetic appeal.
Passing through the living room and moving along the hallway, one enters the private interior space, which currently includes a small room and the master bedroom, serving as a space for the client's hobbies. Both rooms feature wide south-facing windows, providing access to the terrace. To ensure privacy, a small courtyard is placed between the main room and the bathroom, allowing the family to enjoy glimpses of nature while maintaining a sense of seclusion.
In the middle of the hallway, a staircase leads to the attic. Hidden by a sliding door, this staircase grants access to the attic space. To create a sense of openness despite the relatively low ceiling height, a skylight is placed at the upper part of the attic, allowing ample sunlight during the day and providing a view of the night sky when lying on the floor. Windows connecting the attic to the living room and kitchen enables visual communication between family members on different levels.
On one side of the attic, a door leads to the rooftop yard, an outdoor space exclusively reserved for the family. Positioned above the main room, the rooftop yard features a high balustrade wall and an open frame-like opening, resembling a picture frame, which creates a more dramatic view of the surrounding landscape. The frame-like opening offers a different perspective, allowing the family to observe the scenery as if it were exclusively produced for their enjoyment, free from the gaze of outsiders.
Project gallery
客服
消息
收藏
下载
最近


























