查看完整案例

收藏

下载
Lecurio南北各一个门头,以一个“礼物”的形式放置了一个类似帽檐的雨棚。设计师Asen希望创造出一个和谐、统一的空间氛围。这样可以增加门头的吸引力和美感,吸引年轻消费者的兴趣。
01
品牌之旅
探索设计与品牌故事的奇妙之旅
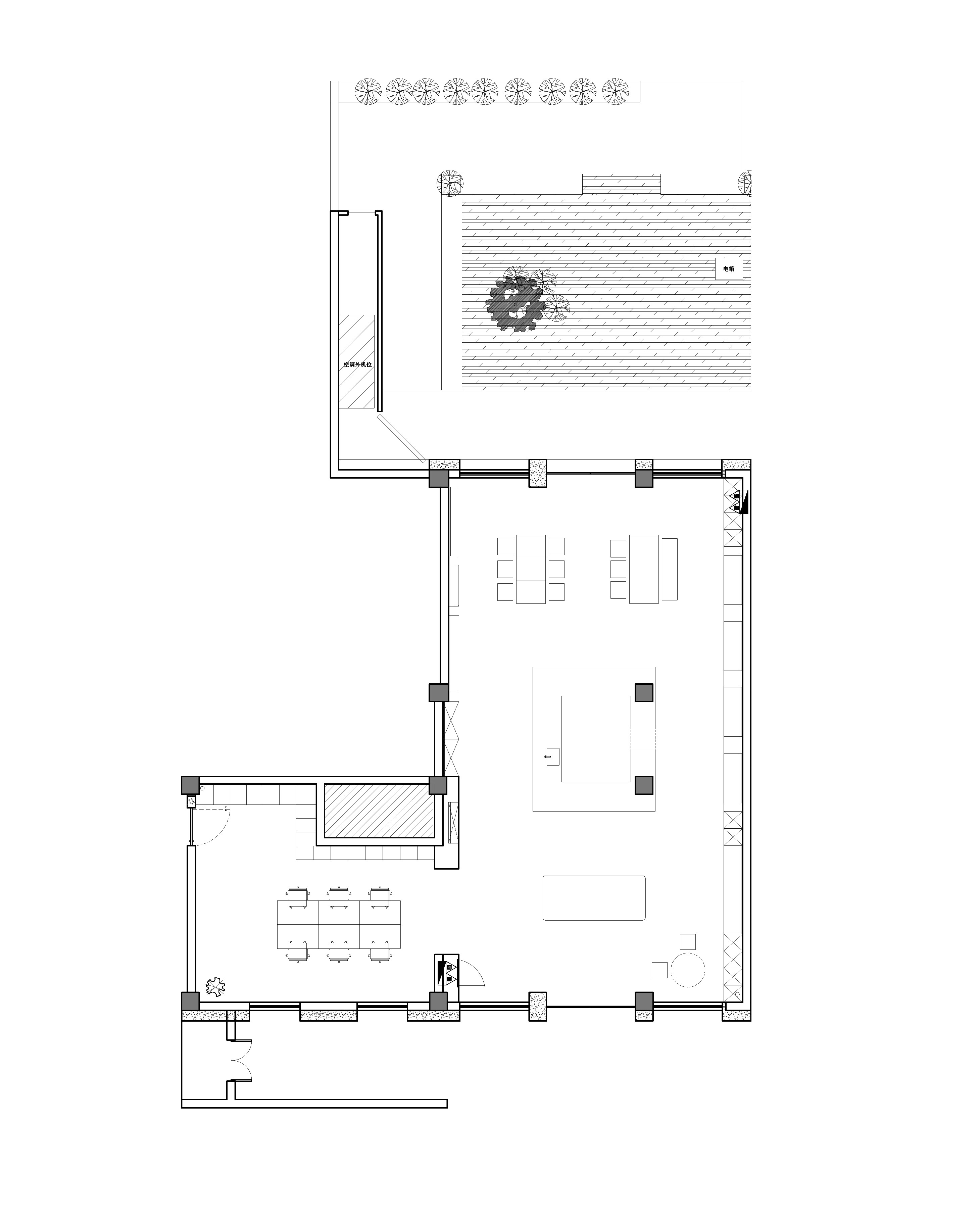
场地核心筒及两根立梁于场地中心,Asen将一个方形盒体置入其中,恰好形成了天然的商业环形流线。室内的各功能区就此围绕盒体展开,将产品展示区、咖啡区、散座区、办公区形成围合式的室内流线。留有给顾客更多元化、多种社交属性的体验场景。
地面采用了大面积的水磨石,墙面是大面积的微水泥,微水泥和水磨石与原木的自然美相结合,打造出一种充满现代感和自然美的空间氛围,环保与可持续的设计理念在空间延续。
原建筑的梁结构被保留了下来,粗犷与细腻的对比能够给空间带来很多意外的情绪。尝试想让空间做出放松自然的感觉,让消费者得到更好的体验。
02
盒体之外
空间的情感纽带
开放式咖啡吧设计下,人与咖啡师之间的关系是至关重要的,因为这种设计强调的是互动、交流和共享的氛围。设计师希望消费者能够边走边看,感受多种业态融合的多样性。
03
边界模糊
创意与合作的新天地
一个开放、宽敞的环境,让想法自由流动,让创意迸发。高天花板和大窗户带来充足的自然光线,让整个空间明亮开阔,鼓励员工间的交流与合作。空间中只做了一些照明的特别处理,让极简成为最好的装饰。
04
场所对话
空间激发人的行为
散座区设置木制长桌,木头的质感充满了生命力,温暖的原木色调柔化掉空间的冷峻感。可开可合的桌子增加了使用场景的便利性,后期这一块空间还可以是员工的会议区。这种多元化的设计也是设计师Asen一直保留的。
项目名称丨Lecurio礼物商店
项目地址丨合肥
建筑面积丨220㎡
设计单位丨東亼设计
主创设计丨成森 Asen
施工负责丨安徽启腾熊剑
项目摄影丨生辉
客服
消息
收藏
下载
最近

































