查看完整案例

收藏

下载

翻译
Architects:Architectare
Area:509m²
Year:2019
Photographs:Leonardo Finotti
Manufacturers:Ambient Air,Pedra Cor Marmores e Granitos,Sá Martins
Lead Architects:Flavia Quintanilha, Rodrigo Fernandes
Lighting:Lumini
Structure:Arnoldo Barmak Engenheiro
Installations:Paulo Cesar Instalações
Construction:Helio Szwertszarf e André Luiz Santos
Project Start:2015
Site Area:2.929,37m²
City:Itaipava
Country:Brazil
Text description provided by the architects. Designed for an elderly couple as a new vacation home, this construction has a very unique program, formed through experiences in their old home that they had sold.
With adult children already married and with their own vacation homes serving as the base for family gatherings, it was requested that this house have a very streamlined program, focused on practicality of use and maintenance.
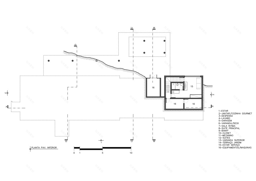
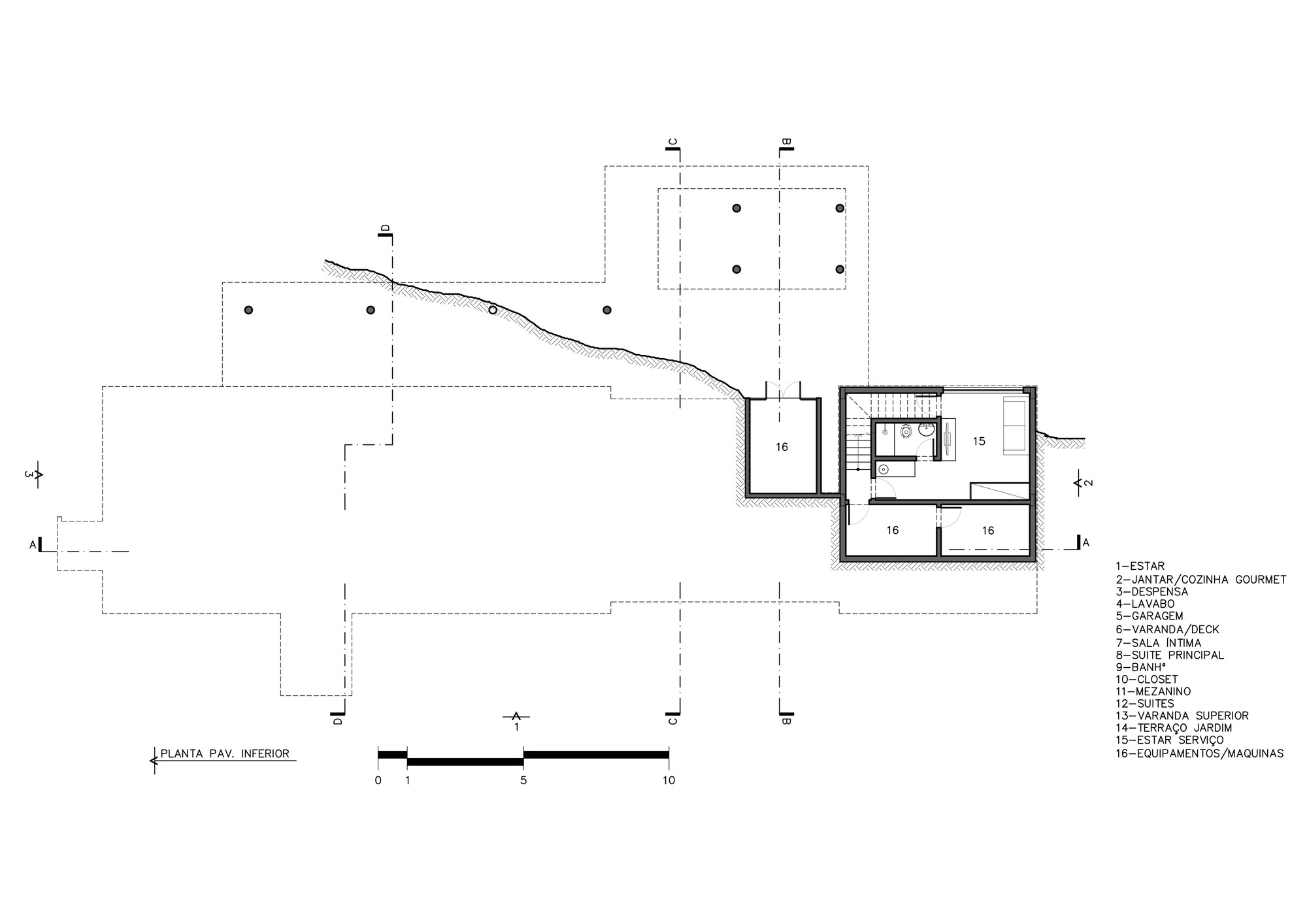
One of the main demands was that the house function as an apartment, where one can simply close the door and everything remains safe inside.
To achieve this, the volume was placed on a small platform, where the entrance is located, leaving the front of the house hanging on the slope of the terrain.
A large deck with a pool was placed on the front part so that, despite being contained, the construction would not lose its aura of a home.
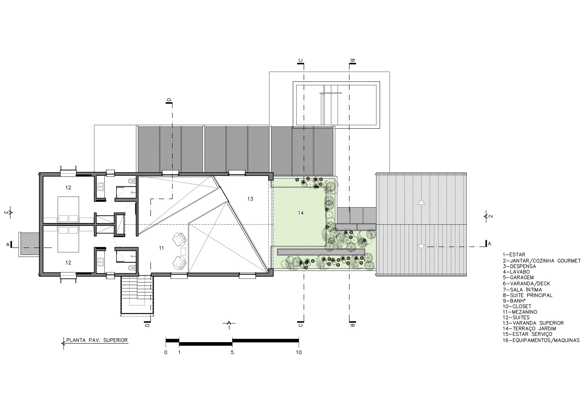
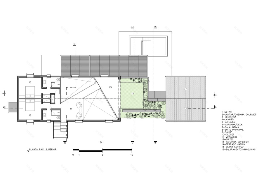
To ensure future accessibility, the guest rooms were placed on the second floor and the entire life of the couple takes place on the ground floor where, in addition to the social and service areas, the master suite is also located.
Inspired by Provence architecture, the rigid stone volume is internally subverted by the misaligned form of the mezzanine, which balances the height of the ceiling and allows access to a glass balcony designed to guarantee the entry of natural light that gives a sense of movement to the space during the day.
Project gallery
客服
消息
收藏
下载
最近


































