查看完整案例

收藏

下载

翻译
Architects:Boundaries architects
Area:197m²
Year:2022
Photographs:Hwang, Hyochel
Lead Architect:Kim Youn Soo
MEP & HVAC Consultant:Jung Yon Engineering
Structure Engineering:Eden Structure Consultant
Construction:Solheim Construction
Designers:Kwon Dayoung, Kim Eunsol
Country:South Korea
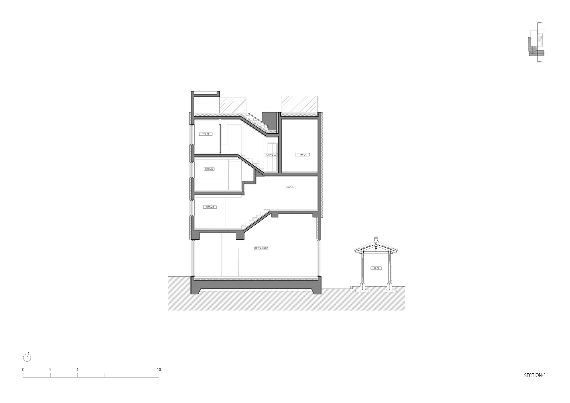
The boundary between the Traditional and Modern - This project started with a plan to develop an old store on the Jae-dong 45-9 plot, which served as a road crossing for the 46-5 plot. The contextual constraints meant that any proposal on site could be a maximum of 12 meters high consisting of 4 floors - the site sits adjacent to the Hanok (traditional Korean) conservation area. The initial intent was to preserve the Hangganchae located in the alley, constrained from the existing Hanok form resembling an Hangeul ‘ㄷ’, and to expand Bukchon-ro 4gil with a new building in the former garden area. As requested by Hanok Conservation District, Seoul City, and Jongno-gu, it was adjusted to preserve and expand the Hanok as much as possible.
Conserve, grow - In order to secure the remaining Hanok, a hybrid extension was made by combining a new building with the remaining Hanok with the shape of Hangeul ‘ㄴ’. The new building would be separate, but connected and unified by the collective envelope. The garden space of the former Hanok was enhanced into a shared zone between the traditional and the modern house.
Two harmonizing halves: reflection and illusion - The traditional Hanok and the new expansion form an internal space that reads as if they are two pieces of a greater whole. This is concealed in the unified facade and can only be understood from the internal space. The fusion of two opposing languages entices curiosity and intrigue. The tiled roof and the inverted landscape reflected by the mirror varisole at the bottom of the filotti feel like a passage to another world. The reflected Hanok in the internal mirrored facade of the new superimposes the viewer into rich cultural timelines.
Introduction of Yangok (Modern architecture) into the Hanok - To pay homage to the Hanok massing, the program and area requirements would have to adjust to fit beneath a 12m height cap. This presented a challenge in sectional planning; our solution was to create an additional level to accommodate the desired spaces of the Yangok. The staggered section puzzles together every piece of space, optimizing the mass to provide all the areas available.
Project gallery
客服
消息
收藏
下载
最近

































