查看完整案例

收藏

下载

翻译
Architects:plusoffice architects
Area:4026m²
Year:2021
Photographs:Pieter Rabijns
Manufacturers:Nelissen,Edilians,Silka,TATA
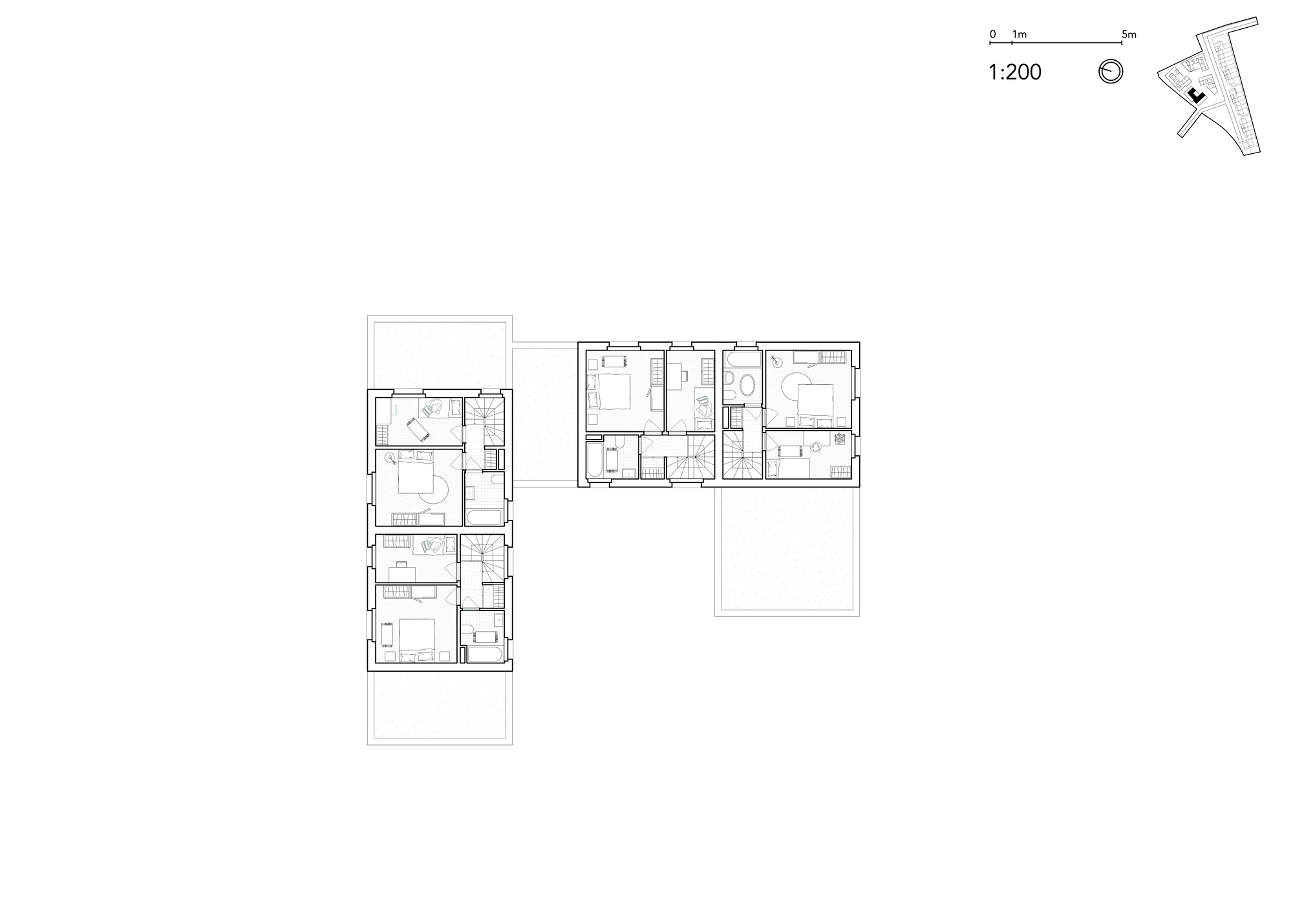
Text description provided by the architects. On the outskirts of Westerlo, a new social housing neighbourhood 'Laathof' is being pushed into an oversized allotment structure. Just a stone's throw from a flood-prone area around the river 'Wimp', the neighbourhood has a responsibility to be rainwater neutral. Here, the public space is designed as a water machine that shows how natural systems can contribute to infiltration, buffering and reuse of rainwater. The region of Flanders has as a strong culture in private house ownership, therefore, every home has a strong desire for individual expression. Certainly in smaller residential areas, the dream of the individual home on his own plot is deeply rooted. A large-scale group housing project can be a stark contrast here. The design pays attention to the individuality of each house and its outdoor space, without losing architectural coherence. We want to prioritise the recognisability of one's home as a design principle.
The 44 dwellings comprise 10 different and adaptable housing types for starters, families, senior citizens and the elderly: courtyard houses in clusters, terraced houses along the avenue, and stacked houses with shared entrances at the ends. A subtle red brick and red roof tiles fit into the material palette of the neighbourhood. The brick architecture is supplemented by a few white-metal and concrete elements in a varying composition. This limited collection of materials achieves a simple yet playful architectural language. An undulating roof landscape together with recessed and protruding façade lines create the transition between the private and public space. The compact arrangement of the houses allows part of the site to be kept free. This allows the public space to be used as an added value: as a meeting place, active water buffer, a lane of trees, etc. Crucial here is the continuity of the central avenue, which deliberately does not enter into a "dead-end" relationship with its surroundings and forms the backbone for future residential extensions. Parking is solved as group parking and with the modal shift in mind, these parking spaces can be phased out and transformed into extra bicycle storage.
With a social housing company that has been working on innovative energy concepts for some time, the ambition for this neighbourhood is high. The new neighbourhood is heated collectively with a smart local heat network that aims to recycle and consume as much energy as possible. A centralised combined heat and power system (CHP) generates hot water for heating the terraced houses and produces electricity as a residual product. This electricity is used to drive the heat pumps to heat the courtyard dwellings. If the CHP does not produce enough residual electricity for the heat pumps in the courtyard dwellings, the shortfall in heating is made up by condensing gas boilers as a backup system. The sanitary hot water of all houses is generated via solar boilers. In summary, this social housing project aims to be sustainable and energy-efficient, designed with a limited number of materials, yet varied in composition and detail. In this way, the dwellings in this new neighbourhood gain in recognisability and individuality and are future-proof for the energy and climate transition.
Project gallery
客服
消息
收藏
下载
最近

























