查看完整案例

收藏

下载

翻译
Architects:Takehiko Suzuki
Area:33m²
Year:2022
Photographs:Masao Nishikawa
Manufacturers:Aica,LIXIL,Toto
Architects:Takehiko Suzuki Architects
Structure Design:Kenichi Inoue
Curtain Design:Haruka Shoji Textile Atelier
General Contractor :Makiya Corporation
Country:Japan
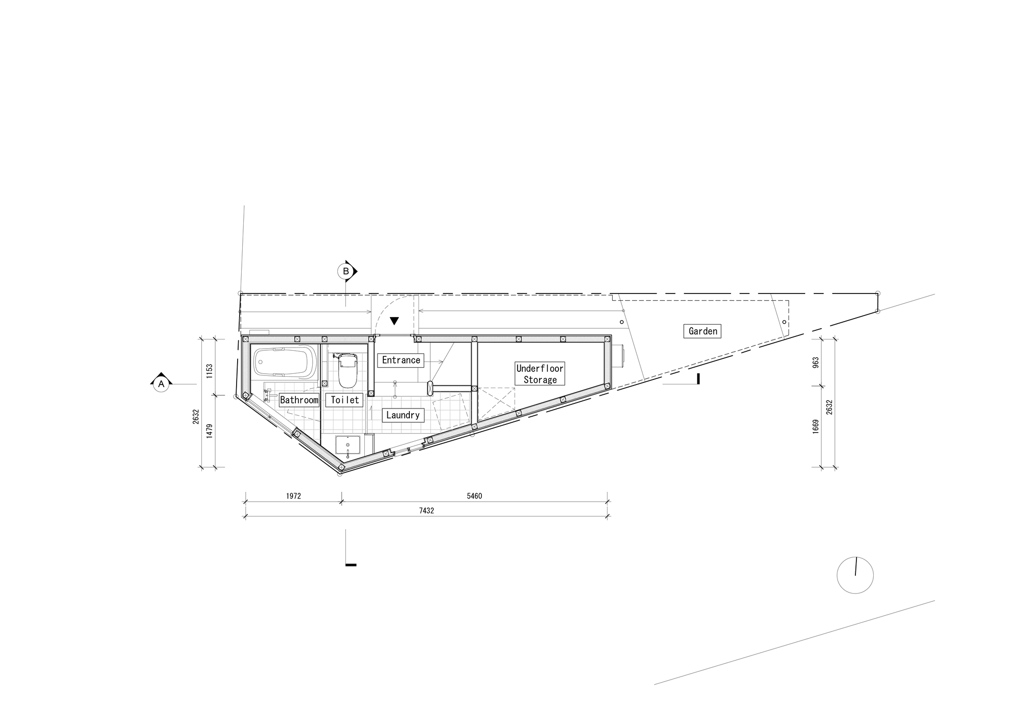
Text description provided by the architects. This is a tiny house building with a total floor area of 33 sqm. The house stands on a wedge-shaped site which is the remnant after the land acquisition for the railroad elevation work next to the site. The site area is less than 30 sqm. For more than three decades, the client has lived in a house built on the land before the subdivision, including the site and the road on the south side of the site. With a strong desire to stay in this place, he has decided to divide, sell more than half of the land, and rebuild his new house on the remnant.
It's not able to make the house entrance face the road on the south side because the temporary railroad will be laid there while the railroad elevation work is going, and it is required to make the outer wall of the house on the north side setback according to the ordinance. Also, the space for interior circulation must be minimized because of the limitation of the space. Naturally, it has been decided that the north side of the building becomes the approach, that when you enter the entrance on the north side, you are already in the spiral staircase that runs through the entire building, and that the spiral staircase directly connects each space in the house.
The extreme smallness of each space (the dining kitchen is 7sqm and the living room is 4sqm) and the spaciousness of the spiral staircase (also 4sqm) make the master-servant relationship between them ambiguous. Various design decisions have been made to reinforce that ambiguity. The floor finish of each space extends to the stairs, and the treads extend into the spaces and become furniture, the staircase also serves other functions such as storage and entrance, and the way of making structure, treads, and furniture gives you a glimpse of another space beyond the staircase.
As a result, the house transcends the distinction between spaces and stairs and becomes one continuous living environment in which small spaces appear and disappear. There is a feeling of being in the whole house while being intimately embraced in a tiny space at the same time. We have been trying to realize such "small vastness" in this project.
Project gallery
客服
消息
收藏
下载
最近





















