查看完整案例

收藏

下载
光之奇遇
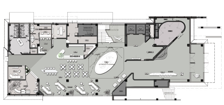
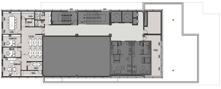
序列,是光线按照场景在Lens Editor的顺序依次传播,漂浮的元素缓慢而连续地运动,在一个为光线设计的空间里,它拥有一种特殊的力量,远远地超越空间的存在。
建筑的实质是空间,而光线是空间的灵魂。
设计师用抽象的概念——光、时间、未来,去演变空间的特性,以基础线条和形态进行平面布局,承载人们在行进过程中衍变成丰富的动线体验。
邂 逅
先见时代的想象
破 晓
DAWN
项目位于哈尔滨,受到北国自然风貌的启发,设计利用“光”和“冰”的元素,在接待前厅塑造强烈的冲击感。
视觉上,线条的延伸交织环绕着镜面的陀螺艺术装置,光线的折射模糊了固态与液态之间的界限,仿如破晓时刻映射着地面炫彩流光,影影绰绰。
延续空间漫射的光线,仿如雪花般晶莹的铂金吊饰,动态的景观形态,在这神秘的氛围中缓缓踱入,感受设计赋予空间的地域特色。
初 见
FIRST SIGHT
演变、拉伸、分散且持续的反应如德罗斯特效应一般奇妙。
来访者对着控制球轻轻吹气,灯光便依次亮起,慢慢呈现渐变和跳闪式灯效,让人仿佛置身于梦境之中。围绕以用户和社群为核心的运营思维,打破传统交互单一状态,增加交互趣味性,从而改变人们看待自身与看待世界的方式。
繁 花
FLOWERS
繁花绽放,芬芳馥郁的场景让访者停驻观望,从而搭建起人与空间的链接,欣赏一场关于繁花的表演。
通过物体和物质媒介的构造关系,体现思想和个性的解放,让生命的张力越发迷人。
大面积的玻璃落地窗,让自然光线进入,若即若离的景色变化以及戏剧性的情感体验,激发访者的想象情境;在树影点光的映射下,置身于弧形洽谈区之中,仿如被空间包裹着。在弱化空间界限性的同时,希望访者凭借内心的回忆为空间添上颜色。
项目以“空间、业态、运营”三位一体的创新模式,打造空间功能与人居美学的“再升级”---运用全新概念回应客户真实需求,呈现了融合轻食、创意咖啡、儿童游乐等多重体验的生活聚集地。
烟 火
FIREWORKS
金属的冷冽与华贵,通过现代装饰语言的转化,回应了空间应有的厚度与质感,与一旁的玻璃幕墙对望映衬,一面清缓、一面醇厚,显露出和谐的自在状态。
围绕生活的多样性,将空间的“共享性”贯穿其中,使其更加融入城市肌理和日常生活。
营造一个干净纯粹、自然质朴却不失细节的空间,在落地窗前看景物与时光的交织流转,享受心灵片刻的宁静。
已知的是当下,未知的是未来,前沿的是先锋,自由的是艺术。设计师以空间平行诗意的灵性,在功能模式之外挖掘出差异化和记忆点,最终实现品牌调性从场景到精神、从影像到体验的深度赋予。
项目名称 | 枫叶 · 蔚澜半岛营销中心
项目地址 | 中国 · 黑龙江哈尔滨
业主名称 | 枫叶小镇(哈尔滨)置业有限公司
业主团队 | 杨桦、李永丰、蒋昌喜、赵祥哲
设计团队 | 崔端、张鑫磊、程路、陈思琪、李迎莹、符智恒、邱丽敏、陈丽文、许丹丹、张媛、胡吉安
硬装设计 | DAS大森设计
软装设计 | DAS大森设计
完工时间 | 2021年9月
项目面积 | 1243㎡
项目摄影 | YUAN MEDIA LAB
客服
消息
收藏
下载
最近





































