知末
知末
创作上传
VIP
收藏下载
登录 | 注册有礼

Order Design | 丽江本末设计办公室

2020/12/26 15:03:37
查看完整案例
微信扫一扫
收藏
下载
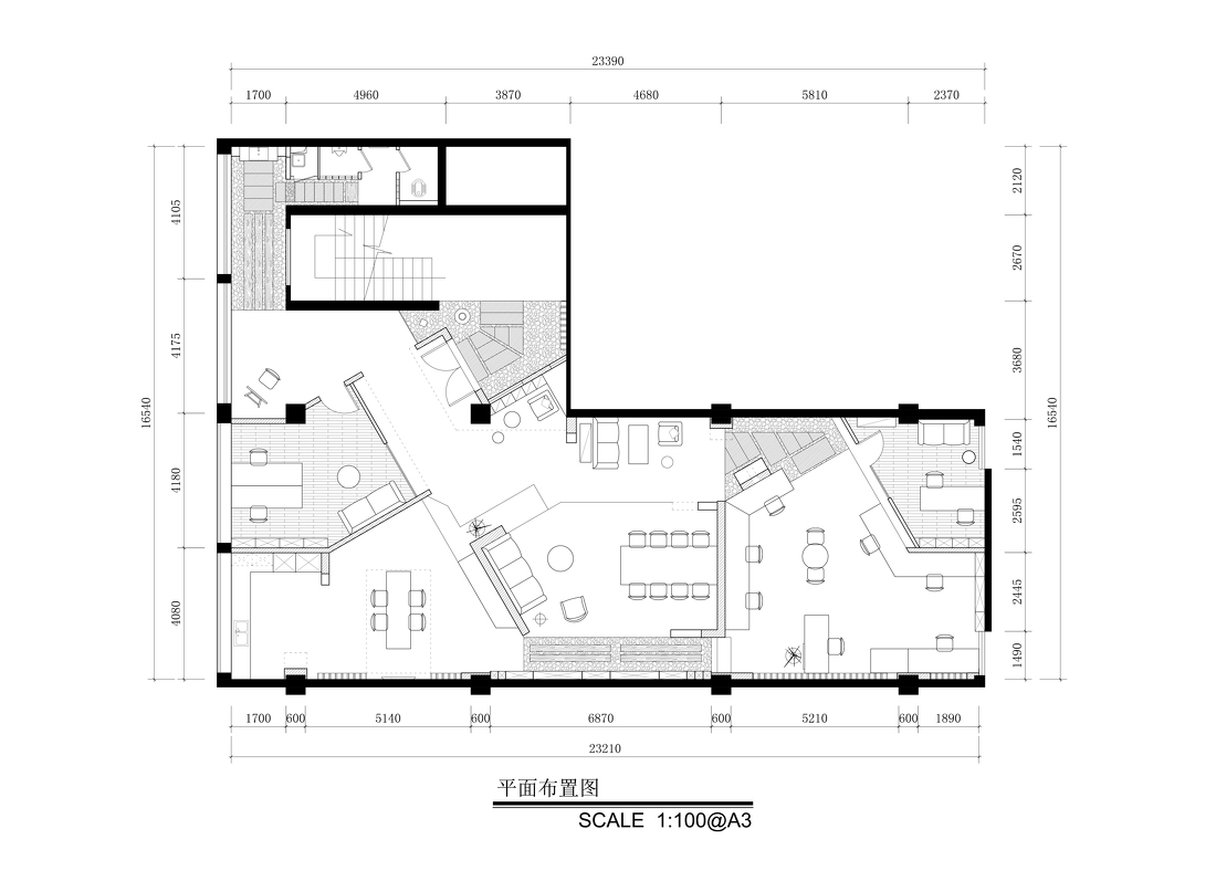
项目名称 | 丽江本末设计办公室
项目地点 | 云南丽江
设计主创 | 周楚钧
项目面积 | 270㎡
项目摄影 | more foto
平面上用30度斜线划分,打破方正的空间。
空间设计强调冷静和理性,
整个空间的斜线构成与几何体陈设共融
大量的留白创造了简约的空间表面。
整体空间纯净整洁,在灰色调中高度统一,
强化人对空间框架和秩序的知觉。
老木头和老家具的运用,局部调和空间冷色,
古老残破与现代整洁碰撞交融
形成无限变量的可能
Order Design | 丽江本末设计办公室-14
Order Design | 丽江本末设计办公室-15
Order Design | 丽江本末设计办公室-16
Order Design | 丽江本末设计办公室-17
Order Design | 丽江本末设计办公室-18
Order Design | 丽江本末设计办公室-19
Order Design | 丽江本末设计办公室-20
Order Design | 丽江本末设计办公室-21
Order Design | 丽江本末设计办公室-22
Order Design | 丽江本末设计办公室-23
Order Design | 丽江本末设计办公室-24
Order Design | 丽江本末设计办公室-25
Order Design | 丽江本末设计办公室-26
Order Design | 丽江本末设计办公室-27
Order Design | 丽江本末设计办公室-28
Order Design | 丽江本末设计办公室-29
Order Design | 丽江本末设计办公室-30
Order Design | 丽江本末设计办公室-31
Order Design | 丽江本末设计办公室-32
Order Design | 丽江本末设计办公室-33
南京喵熊网络科技有限公司 苏ICP备18050492号-4知末 © 2018—2020 . All photos and trademark graphics are copyrighted by their owners.增值电信业务经营许可证(ICP)苏B2-20201444苏公网安备 32011302321234号
客服
消息
收藏
下载
最近