查看完整案例

收藏

下载
如果建筑是一卷书籍,记录着一座城的峥嵘韶华,可以从中翻阅出生活的年轮,品阅一代人的抱负。那么营销中心,这个短暂的功能性空间,则是每一个步进者的生活与精神缩影,成为他们内心对生活、美学、成就的具象认知。
芳华爱情里营销中心,通过对城市肌理的刻画,把对当下、对生活、对未来的幻想构建出一座与自我对话的建筑空间,让每一个名士翘楚对未来生活的定义幻变成真。
在这创作思维下,大森设计团队在秉承东方美学设计的艺术注脚,透过不同的材质、不同的形态、不同手法赋予空间以美学和憧憬,为步进者带来亦幻亦真的感官体验。
中间的流线拉丝天花吊灯,在视觉上令空间灵动,同时赋有现代色彩和生命力。半回型座椅造型凸显东方对称美学,呼应了洽谈区这功能性区域,也为整体空间纵向延伸出层次感。
东方气韵·现代色彩
沿动线转入洽谈区,层层叠进的木制材质柔和了大理石的恢弘气质,以传统卷席与屏风的东方意境为设计脉络,令空间增添文韵。顶上的木制栏栅在视觉上连成一卷画席,传承古今,展现与时俱进的东方韵致。
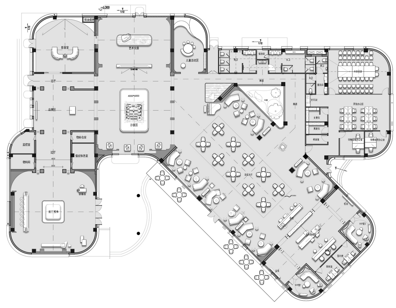
△ 平面图
生活不是静止,而是同静止作斗争,是创作,是创造,是对“永恒旧事物”的吸引力的永恒反抗。
——《罗曼·罗兰传》
有时候,一点点冲突,也会有出人意料的效果。在平淡的日常生活中,打破常规并不需要做特立独行的事,只需在家中置入一张带有复古色彩的单椅。
开放式的书房顺势而为,与客厅融为一体。大气的设计语言,当代感的艺术装饰,彰显居者的气质与品味。
关于幸福的想象,总少不了美食。具备现代感与艺术性的用餐空间,更是为用餐增添了美味。
细腻的柔软面料赋予更多好梦。在卧室中,设计师重格局,少堆砌,强调了空间的通透性,让光与影有迹可循。
△ 平面图
创造空间的无限可能,才能让生活更有趣。在这个空间中,我们尽量取用简约的线条去构造一个明亮色彩的居所。以灰白为底,水蓝色地毯与光影相衔接,形成雅致的厅室风貌。
红色出现在视线中,在素雅的基调中成为点睛一笔。规规矩矩给生活带来安全感,而弯弯的线条则是生活中不经意的俏皮跳脱。
米白纯净,灰色优雅,朱红复古,三色交融塑造了格调居所的语境,让空间有着不同韵律的过渡。
设计师用艺术点缀留白,注入恰到好处的美学情趣,构成浪漫的休憩情境。
△平面图
项目信息
名 称:爱情·芳华里
地 址:中国 山东
业 主:爱情地产
设计团队:崔端、罗辉、叶少玲、陈永球、张媛、何芳花
空间设计:深圳市大森设计有限公司
软装设计:江苏图灵空间装饰有限公司
完工时间:2020/05/08
设计面积:970 m2/178 m2/166 m2
摄 影:南木摄影&视方摄影
客服
消息
收藏
下载
最近







































