查看完整案例

收藏

下载
艺术是生活的镜子
空间是情感的媒介
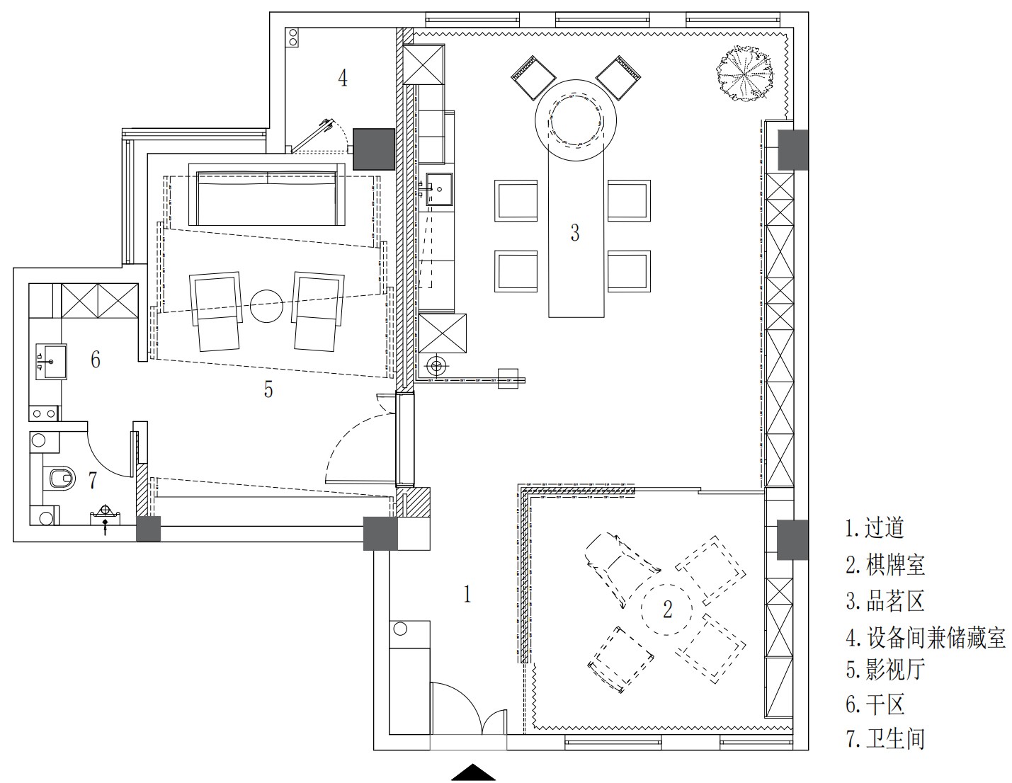
空间结构
原始图
设计思路
本案位于联合大厦,属于商业空间,以需求为导向,确立多重功能与场景,依托空间分割的尺度,融合镂空手法、造境意蕴及澄澈观感,打造格调统一、步移景异的体验。透过时尚陈设的创意搭配,触发不同场域的故事感,深化了空间的内涵。
实景照片
与时光温柔对语,营造初遇的美好。
构建重色柜体,与浅色立面形成对比,拉伸了视觉层次。灯带在右侧蔓延,过道端头穿插体块,以“漂浮”的形态为空间注入轻盈感与呼吸感,同时起到障景作用,欲语还休。清新的绿植以自由为状,错落有致地散开,赋予了空间无限的活力。
黑与白碰撞,展开了画卷般的背景,采用哑光与亮面相间的手法,扩展了空间的视觉效果,亦阐述了“一屏一境”的雅韵。用形态各异的椅子,串联了和而不同的美学主张,创造了舒适体感,顺势过渡了主次空间。
艺术,无处不在。
令人意想不到的是,设计师将“折纸”的概念,运用于墙面、桌子等结构上,展现简约不简单的创意,通过三维立体形态的艺术形式,颠覆了传统空间的既定形象,为空间增添了趣味和美感。
糅合跳色点缀的笔法与贯通自然意境的设计内核,让空间内生机满溢,净化了半合围、半开放的空间。删繁就简,用温柔浪漫的光,为悠然的小天地调和出“白露暖空,素月流天”的诗意。
在统一的主题下,焕发空间价值和艺术美感。
利用吊顶的凹凸变化,规划出三段式场域。以运动场景为设计出发点,调配环境用色,通过线条的层层排列,营造趋近真实或益于健身的视觉效果与通透美感。分区之间,各自独立,互不干扰。
设计师用抽象的视觉语言,探索了观影区的艺术性。在保障了实用性的基础上,以隐形光带塑造“见光不见灯”的效果,而后通过光色的转换,在个性化、氛围感、趣味性等层面打破壁垒,营造了前卫的、充满张力的观影空间。
以诉求为根本,优化洗手间的格局,减少空间浪费,提升了使用率与便利性。保持暗光色调,平衡冷暖光感,细致地完成从结构到视觉的双重分区。自由的光,在不同的材质上折射,让艺术跨出了边界。
INFO
项目位置:
联合大厦
项目类型:
商业空间
项目面积:
140㎡
设计机构:
一鸿设计
文案策划:
修合文化
客服
消息
收藏
下载
最近





















