查看完整案例

收藏

下载
别的故都,把历史浓缩到宫殿;而南京,把历史溶解于自然。
——余秋雨《五城记·南京》
南朝四百八十寺,多少楼台烟雨中。江南佳丽地,金陵帝王都。南京,是一座有着悠久历史的文化古城,古称金陵,有“六朝古都”、“天下文枢”之美誉,与北京、西安、洛阳并称为“中国四大古都”。百里秦淮河,从南京城区穿越而过,留下了古老的秦淮文化。
彰泰·观南府
— MAJESTIC MANSION —
彰泰·观南府项目位于南京雨花台区,是彰泰集团进驻南京市场的第一个项目,也是彰泰集团布局华东的第二个项目。项目坐踞城南两桥板块,距离地铁S3号线贾西站大约600米左右,紧邻秦淮新河百里风光带,周边交通便捷,自然景观资源丰富,区域未来发展潜力凸显。在园林设计方面匠心独运,将桂林山水之美与江南名园精髓相结合,融入南京在地文化之魅,打造“一园六境”都会美学经典。
当代+东方+自然+艺术,是彰泰·观南府销售中心的设计宗旨,设计师团队运用新中式设计的手法,将传统山水哲学与当代生活理念相结合,旨在打造充满山水诗情的空间美学体验。“梦在城深处,居于山水间”,南京这一六朝古都的人文历史与自然风光得以完美融合。
△建筑与景观
△接待大厅
石、木、皮、金属、织是主要材质基调,不同材质的切换、重塑,诠释当代生活的空间肌理,融柔软、刚劲、精致为一体。空间形态上,以现代建筑形态为切入点,结合点、线、面构成空间体块,营造连续流畅的空间体验感,挖掘人的空间感受,寻找与自然触动人心的互动交流。
△水吧区
阳光、空气、绿植是水吧区的空间表达,阳光与空气的流动,绿植的静逸在挖掘人的空间感受,寻找与自然触动人心的互动交流。
△沙盘区
落花如雨,坠地为石,雨花石色彩斑斓、质地细腻、花纹美丽,沙盘灯以南京雨花石文化为主要切入点,提取元素融入室内空间,打造独特的体验感。
幻彩艺术琉璃灯饰,闲适、娴静、舒适的生活节奏,交错的光影,令空间充满艺术的张扬,演绎轻奢气息与光一起释放,在灯光下尽显品位,轻奢缭绕,为空间增添现代艺术的品位与风情。明亮舒适,有质感。柔美细腻,展现出简约风格的内涵之美。
△洽谈区
这块空间里“素”是保持朴实的本真之美。自然流畅的肌理质感,加以现代工艺的处理,质感完成的更加细腻、质朴。
△儿童娱乐区
幻彩挂件,与沙盘灯呼应,在一派山水自然的空间中跳脱了出来,给空间了增加无限乐趣与亮点。
把琼楼好处付公来,金陵观南府
看彰泰印象,玉宇尽数,水榭长流
红花深影深秋,青山驻白云,常见彩红入,庭院檐头
观悦黄金满堂,是秦淮两岸
登楼就梦,有林桂独赏,香气卷温柔
且华堂,通宵一醉在此住,今数八千秋
公知否,佳人灯会,阑珊初露
.
.
.
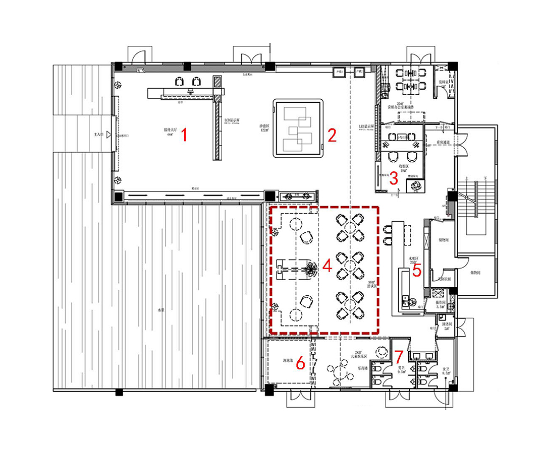
图纸呈现
△平面布置图
项目名称 | 南京彰泰观南府销售中心
业主单位 | 彰泰集团
项目面积 | 455 ㎡
硬装设计 | EHOO 易虎设计
软装设计 | EHOO 易虎设计
硬装造价 | 3000 元/㎡
软装造价 | 2600 元/㎡
主要材料 | 石材、瓷砖、钢化玻璃、夹丝玻璃、幻彩玻璃、碳黑色不锈钢、木饰面、白色烤漆板、白色乳胶漆、防水白色乳胶漆、树脂板、亚克力、墙布、皮革硬包、银镜
设计时间 | 2020.07
完成时间 | 2020.12
项目拍摄 | 彦铭摄影工作室
客服
消息
收藏
下载
最近


























