查看完整案例

收藏

下载

翻译
MIXED USE DEVELOPMENT - KSA
Type : Mixed Use Development
Year : 2021
Location : KSA
MASTER PLAN
CIRCULATION ZONING
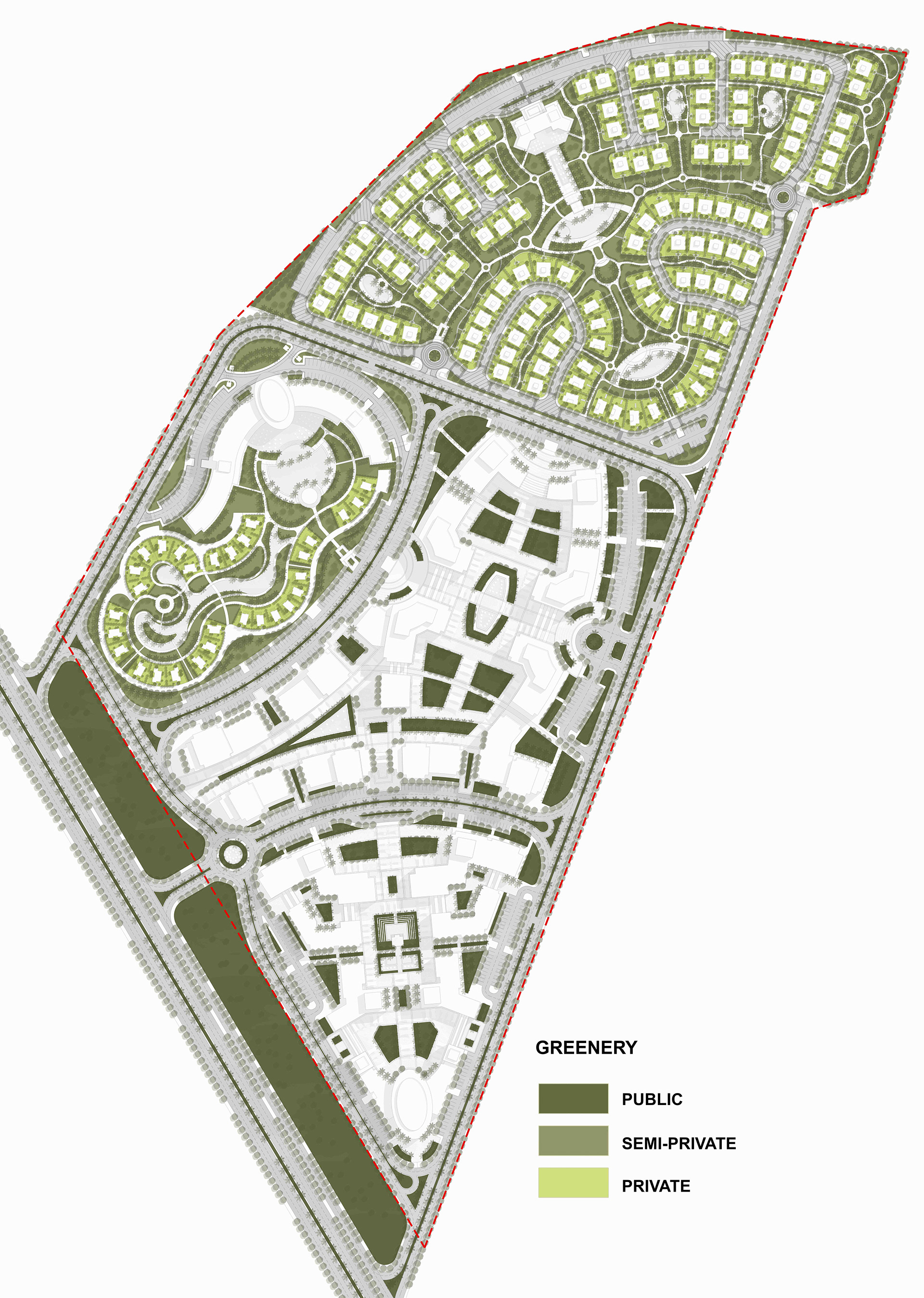
GREENERY SOLID&VOID TYPOLOGY
DETAILS: RESIDENTIAL COMPOUND
DETAILS: HOTEL ZONE
DETAILS: COMMERICAL PLAZA
DETAILS: BUSINESS PARK
........................................................................................................
Phone : 002-01014515128
THANK YOU...
客服
消息
收藏
下载
最近













