查看完整案例

收藏

下载

翻译
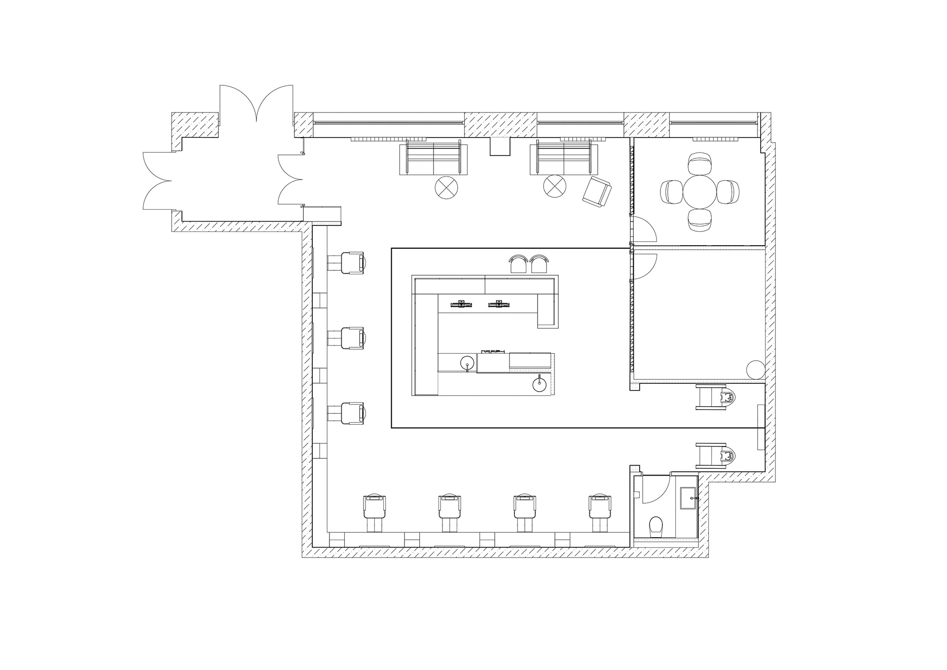
HEADS Location: Omsk | RussiaType: Commercial | Barbershop Area: 135mCompletion: August 2021Designers: Ostroukhov Konstantin, Nikolay YarinPhoto by: VIKTORI CHISTILINA
Heads’s interior is very different from the barbershop in its classical sense. Minimalistic and without unnecessary elements, but attractive and eye-catching. The space is created for the most comfortable pastime and work.
Broken tiles, glass blocks and modernist furniture give the interior a nostalgic touch on the one hand, and on the other give a clear and recognizable brand language.
Dark walls and spot lights visually divide space into different zones - a bright, light-flooded working area, a cozy waiting area and an accent reception desk.
The “Heads” space is not just a barber shop, but also a kind of headquarters of the company. Sometimes various events and workshops are held here, and in a small meeting room you can hold a meeting or work on a laptop.
Glass blocks walls work not only as a decorative element, but also very functional. Thanks to their good sound insulation, the meeting room and utility room are completely isolated from the common room, while the light-permeable wall combines the entire space.
客服
消息
收藏
下载
最近








































