查看完整案例

收藏

下载
这是集体住房项目的样板房,所面临的挑战是没有业主要求或生活方式参考的线索。该设计的目的是吸引虚拟所有者和潜在居民,为他们提供现实生活在这里的真实快照。这是一场视觉盛宴,具有奢华的本质,这里的设计力量既富有表现力又受到束缚,自然而富有诗意。
目标客户年龄在40和50年代,他们具有各种生活经验,成功的职业生涯并优先考虑生活质量。他们不再渴望炫耀的奢华,而是变得保留而实用。偏爱健康自然的生活方式,而他们的口味仍然现代而年轻。他们准备退休,他们正在寻找一个既有现代感又有适度奢华感的地方,为人们的生活带来幸福感。
我们从项目范围开始,该项目位于生态社区对面,该社区拥有超过60%的绿色覆盖率。从房屋中,我们可以看到山脊,这些山脊带来了更好的空气质量和宜人的温度的祝福。因此,我们采用“居住在森林中的城市”的设计主题,在这里,休闲自然与都市时尚可以共存。
我们使用环保且无毒的材料创造与自然共存的生活环境。饰面和大理石饰面彰显自然感,而金属线则彰显时尚感。井井有条的空间与抽象和浪漫的石头形成对比,在感官与感性之间取得平衡,保持克制与表达,将优雅从生活注入空间。
内部设计呼应建筑物的建筑混凝土结构以及日本的极简主义定义,呈现出光影与空白空间,营造出一种无形的氛围,并表现出艺术特色。
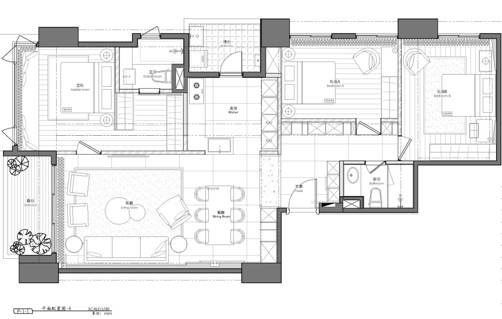
内部空间分为四个小房间和一个封闭的厨房。为了使空间更舒适,我们将布局更改为三间卧室,主卧室中有更衣室。由于目标客户希望以健康为导向的生活方式,因此我们创建了一个开放式厨房,该厨房与起居室相连,家人可以在其中享受更多的互动。这些是我们针对不同版式的核心思想。
我们更喜欢此选项,因为它可以在客厅和主卧室中欣赏优美的风景。无论是在公共场所还是在私人场所,绿色都在那里。所有三个房间都用于卧室,房主可以灵活选择。主要起居区靠近阳台。由于我们不知道确切会有多少人呆在这里,因此从主要用户的核心人员那里扩展是一种比较安全的选择。
通过设计,我们希望传达这一信息:以健康为导向的生活方式并不意味着一切都在禅宗中悠闲地进行。与自然共存可以享受现代生活的愉悦品质,以另一种方式诠释生活的宁静。
无论未来的主人喜欢豪华的石材质地还是温暖的木材,我们的设计都能满足他们对家的想象,营造出既浪漫又浪漫的中性氛围,触动了所有参观者的心。
客服
消息
收藏
下载
最近




























