查看完整案例


收藏

下载
房屋,巴西塔图伊
设计师:Estúdio OLO
面积:450 m²
年份:2020
摄影:Carolina Mossin
建造商:Portobello, Cerâmica Portinari, Deca, Indusparket, NBA Esquadrias, Roca Cerámica, Todeschini
城市:Tatuí
国家:巴西
设计师描述 | Designer description:
Localizada no interior de São Paulo, na cidade de Tatuí, a casa ocupa um terreno de 600m² naturalmente plano.
O conceito do projeto surgiu a partir da pesquisa e analise do perfil da moradora, que nos deixou à vontade para abusarmos de elementos mais marcantes. Com três cachorros da raça Golden, como membros importantes da família, o desafio da concepção era que diante da metragem pretendida de construção, ainda existisse áreas livres de qualidade para a circulação e interação entre eles.
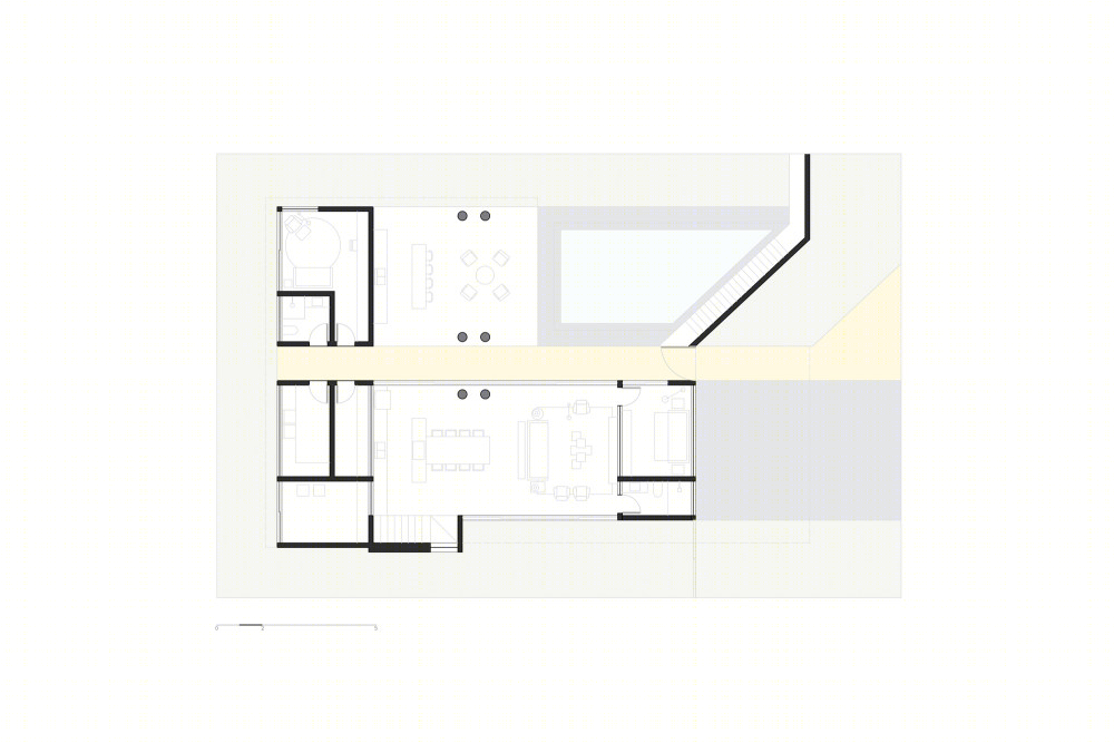
O programa se estabelece em dois níveis, o acesso principal se dá em forma de uma extensa varanda direcionada por uma passarela em epóxi amarelo que atravessa o conjunto de maneira longitudinal, definindo o fluxo para todos os ambientes do térreo.
A implantação visou captar a melhor insolação e relação de privacidade entre vizinhos, sendo assim, em formato de L, a casa circunda sua área de lazer posicionada na frente do terreno, de modo a tomar partido da largura da rua como um recuo mais interessante.
A parte interna da casa, com ambientes diretamente integrados, tem relação intensa com o externo, fazendo com que o paisagismo, a luz natural e a ventilação transpassem os ambientes através dos caixilhos e clarabóias.
Um grande solário repousa como cobertura da área social e como um grande quintal, é o lugar preferido das crianças e dos cachorros. Com acesso pela varanda dos quartos, há também uma escada metálica externa fazendo a transição para a área de lazer e proporcionando um fluxo de circulação em 360° pela casa.
A fachada é composta por um muro inclinado como guarda corpo dessa circulação interna vertical e um balanço de cinco metros da laje superior por onde se dá o acesso e a garagem; ao plano de fundo, um painel com cerâmicas decoradas compõe com o colorido da passarela para uma estética mais divertida.
Ao adentrar, um volume de pedras madeira filetadas rodeiam e organizam a área gourmet, integrando-a ao conjunto. Pilares circulares em concreto aparente fazem a estrutura das áreas sem fechamento.
O pavimento superior, em contraponto, tem uma volumetria sólida mais sóbria, um caixote branco envolvendo uma caixilharia camarão que unifica visualmente a abertura dos quartos; e aos fundos, no corredor íntimo, cobogós perfuram a fachada controlando a incidência solar vespertina, mas permitindo que a vista e claridade permeiem seus vazios.
项目完工照片 | Finished Photos
设计师:Estúdio OLO
分类:Casas
语言:葡萄牙语
阅读原文
客服
消息
收藏
下载
最近





































