查看完整案例


收藏

下载
美是隐匿的和谐,存在于自然中。建筑的灵感伴随着光而发生,精神是不朽的,用永恒、
极致的品质设计诠释了我们当下追求的简朴生活。
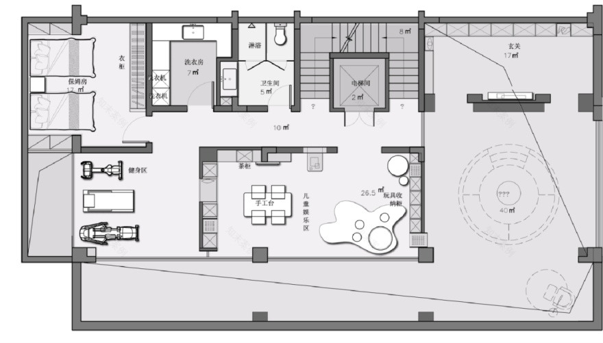
3F平面布置图方案
室内设计:上海铂洲空间设计有限公司
主创设计师:崔志昊 李强
空间设计:任康平 季晓刚 蔡晓
项目名称:上海中海紫御豪庭豪宅设计
项目地点:上海
建筑面积:800平米
崔志昊
创始人/设计师
国家注册高级室内设计师、中级工程师 CIID中国建筑学会会员 上海铂洲空间设有限公司创始人 远景环境艺术设计有限公司创始人 U品设设计师品牌家具创始人 中国新地产年度优秀新商业空间设计师 中国新地产年度十佳商业空间设计师
专注于设计行业管理,善于设计行业资源整合,先后与志同道合的优秀伙伴共同创立铂洲空间设计机构及远景环境艺术设计机构,感恩是最大的财富,感恩的心能够比常人看到更多的细节,铭记更多的感动,“用感恩的心做人,用工匠的心做事”,保持卧虎藏龙的姿态,是为了跨越的更远。
李强JOHNSON
18621759629(崔志昊)
13052117757(李强)
上海铂洲空间设计有限公司
上海市松江区九谊路717号上海公馆292
客服
消息
收藏
下载
最近































