查看完整案例


收藏

下载
兼顾中西
汇通古今
融入建筑灵魂的海派
演绎新古典主义的艺术之家
曾被称为“上海三大名园”的露香园,紧邻豫园,位于上海市的中心地段,在经历了时光的洗练之后,承扬老城厢的海派建筑风貌,重塑里、坊、庭院,成为市中心一处包罗时光的花园社区。身为中国古代书画鉴藏家的屋主骨子里念旧,便引着他携妻子和两个女儿迁居于此。
这座从旧址新建的上三层地下两层别墅,有着中式的两坡屋顶以及欧式的窗套线脚,以一种融汇的姿态兼顾中西,而不觉怪异。不同于男主人毕生研究古藏,善赏当代艺术的妻子和女儿,似乎很好地回应了这一特质。他们借助这个家空间,为我们验证了何为“混搭”即正义,而承载个人意趣的艺术确实可以打破单纯风格的限定,将这座别墅打造为专属于他们的小型私人画廊。
点击视频走进露香园
空间设计以结构呼应时间,静默而沉稳地讲述着曾经的历史。露香园的海派风格在设计师的手中被弱化为线条和石膏线,隐匿于墙体之中。但时光并不会停驻,曾经的故事会以新的模样再现,当从庭院入户,这座海派风格的建筑慢慢脱离开时空的限制,等待着屋主注入专属的灵魂。
当多数空间在落成后都尚未明确如何选配藏品,玄关的三幅墨宝却是早于设计便落下的设想。“几百年人家无非积善 ,第一等好事还是读书”,这对出自清代书法家钱坫之手的门联,配以清代画家萧晨《听琴图》的写意,用一种别样的深沉讲述屋主对这个家的寄望,只要有善与学的积攒与传承,精神便可不朽。
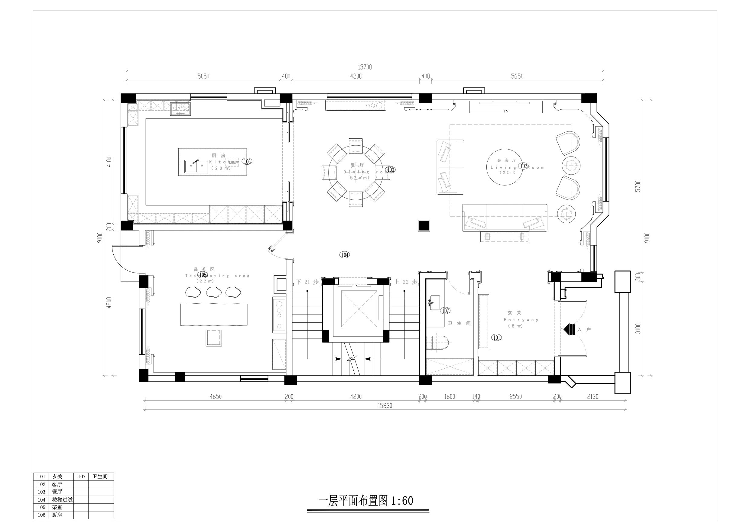
在整体海派的框架之下,作为艺术行业从业者,屋主希望将钟爱的收藏与设计充分相融,同时不以风格自束,为家人们提供了一张可以自由表达个性和审美趣味的画布。位于一层的客厅空间由女主人主导,选自范哲思(Versace)的沙发与边几,用其经典繁复的纹样设计打破原本整体温润、沉静的基调,使人眼前一亮。
设计师将客厅原本面朝庭院的南向小窗打透重塑,用写意的落地大窗框住室外的枯山水景,将其纳入为空间可以随四季流转的天然艺术作品,注入灵动的生机。窗边拐角采用弧形的处理手法,破除结构上方正规整的特点,让视觉整体更显雅致。
“空间”,是物理性的维度,也是衡量情感容量的尺度。居住的感受是自内而外的构塑,而“呼吸感”始终重要。为探寻一层空间使用的最优解,设计师重塑吊顶的高度,去除二楼原本的下降楼板,重新规划管道排布,采用三层叠级吊顶的设计,增加层次的同时,拓展最终的空间视野,让光线在空间中得以自由流转。屋主的艺术藏品自然地居于其中,与空间细节遥相呼应。
餐厨作为整个家中使用率相对较低的空间,以简练、净透的风格作为设计指引。相比常规设计中将中西厨分离而开的设定,设计师依照屋主的使用习惯,将两个原本并不充足的中心储能空间融汇成一个有共通性的综合性厨房,最大化利用空间的同时,不降低功能使用的体验感受。
家作为四个成员的共享空间,有融合也有不可舍弃的个人意趣呈现。屋主没有为统一风格而牺牲每个成员的个性需求,相反的,这里可以清晰地看到每个人的灵魂色彩,让家时刻有所惊喜。位于一层北侧的中式茶室是男主人私人的“藏宝阁”,摆放着他精心配设的收藏。这里是个流动的古物盛宴,展品常随屋主的心情更替,每逢客至,总有新的体悟。
室内的雅趣与窗外的庭院精致交相辉映。作为男主人情趣的延展,庭院融汇了日式枯山水与东南亚风格元素,将两者所代表的禅意与强劲的生命感结合,也依托了屋主对这个家的期许。
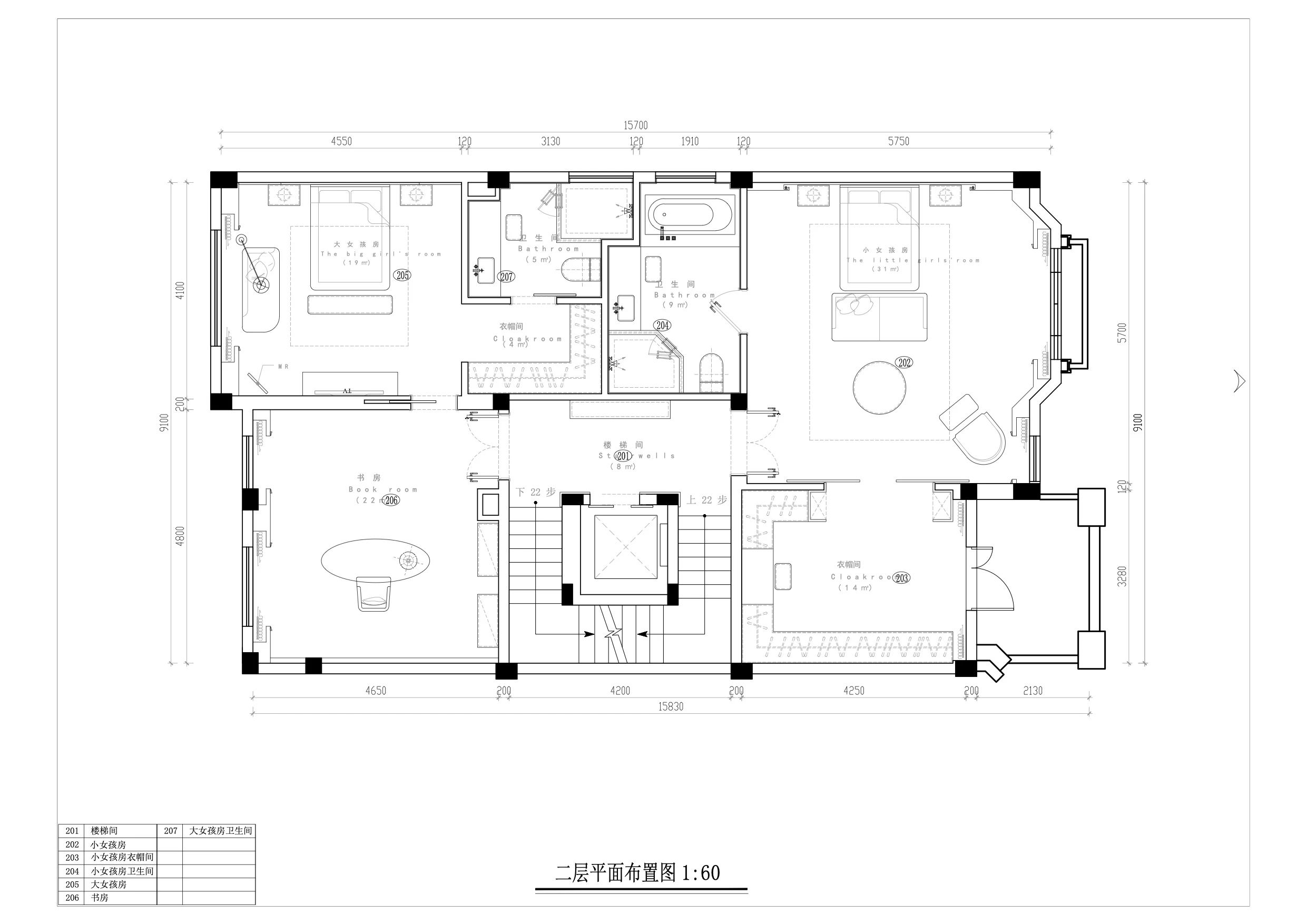
二层北卧室为大女儿房。与父亲不同的是,大女儿选择了当代艺术鉴赏作为自己的职业,因而在空间打造上也以留白为主,选用蓝色作为主调,搭配灰白等中性色彩作为调和,为她个人的艺术收藏留足想象的空间。
卧室以“柔软”为核,由“天马行空”围绕而生,从家具单品的选择到艺术作品的配设,都在讲述着空间主人不设限的特质。墙面以艺术家季鑫的《沉淀旋回》作为视觉焦点,仿佛是她与家人关系的一种映射,温润而绵长。来自长井朋子的《美丽宇宙》则将想象拓宽至无垠。卫生间作为卧室的延伸,借助色彩作为关联,用小件的定制艺术品增添空间趣味。
大女儿的阅读空间与其说是书房,不如说它是一座小型的私人美术馆。这里不再沿用海派风格相对繁复的叠层吊顶,而是选择最简约的线条构筑框架,余下的便是为艺术名作腾挪的留白空间。从草间弥生《无限的网》到张子飘的《肉眼》、张季的《聚众宠物投喂》……艺术家的精神能量在此处蔓延,不再觉空乏,而是另一种充盈。
在艺术家张恩利的画作用色彩晕染开了连接大女儿房与二女儿房的连廊,与艺术家李伟、刘知音的《满天星》雕塑一同塑造了一座宇宙,去抓取,那些看似无法触及的,萦绕在身边的美妙。
步入小女儿的房间,则是另一种性格。对于尚未结束学业的小女儿而言,保障空间的舒适与活力是首要需求。精致的压花墙布搭配银杏壁灯,与选自Baxter的双人床相得益彰,为空间奠定柔和的氛围。气球吊灯呼应卡通边几,又透露出小女生的俏皮与古灵精怪。
不同于大女儿对艺术品展示的需求,小女儿则将更大的空间让渡给衣帽收纳。超大的步入式衣帽间成为小女儿个人风格呈现的天地。空间设计依旧遵循着简约、精炼的风格,让这里可随意、自然地嵌入至不同的时空。
而业主则将三楼作为夫妇二人起居、工作的私享空间。延续起居空间整体静雅的氛围,主卧选用白色、浅灰色作为主调,同样通铺木地板的同时,以绵软肤感质地的家具、饰品来柔和整体的使用感受。
原有的内建筑结构同样出现了餐客区域的挑高硬伤,仅2米57的高度严重降低了业主的居住体验。好在建筑原有的阁楼尚有延展的余地,设计师再次考虑将三楼与阁楼间的楼板拆除,进行上提,经过巧妙的再塑,重构了一个拥有标准挑高的卧室空间。
来自艺术家张恺所绘制的《美惠三女神》被挂在了主卧床头位置,这也是男主人送给家中三位女神的礼物。这样的爱意表达总是不经意地在各处角落显现,成为空间不间断的能量供给来源。
男主人的书房用色则更为沉稳、素净,以营造适合思考、研学的氛围。书架依照男主人的藏书尺寸定制,明式的桌椅皆是他的旧收藏,与收纳其间的古籍一起,似乎也成为屋主精神世界的另一种延展。
主卧的步入式衣帽间在卧室与主卫之间形成一个回形动线,增强了两个私密空间之间隔断的效果,同时又保证了视觉上的流动,让整体行进有所期盼,又有所保留。
卫生间通过移门改造,将更多的光线引入空间中,同时也解决了建筑结构中遗留的漏水问题。定制的立镜与外扩的台盆设计,是整体空间中无数细节调控里的一小部分。空间始终将居住体验前置,将细腻考量隐形于日常。
在屋主一家四口的想象中,关于“幸福”通常有具体的形态。例如家人相互依偎,在星空下一起分享日常所感,体验世间美妙,或是品味时间的沉淀,理解自然的风貌和魔力。作为生活的额外延展,地下空间被以最大限度地结合“归属”和“想象”。星空顶影院结合藏酒酒廊,一切美好的事物都可在这里发生。
而面对相对封闭的地下健身房,设计师希望通过对立面的改造,与户外形成一个呼应,将室外的老城厢氛围引入其中。基于石库门建筑特点,设计师通过手绘的方式测画出砖墙的轮廓,一砖一砖砌出最终墙体的肌理感,打破地下空间“闷”的感受,让每一次跑步都仿佛穿梭于老城厢街道。
在打造过程中有许多“不可调和”,但似乎丝毫没有影响屋主对空间的喜爱。正如艺术创作常常因“意外”而变得不同,空间里留有一些“不合常规”才觉有趣。对于屋主来说,拥抱这些“不完美”,才是艺术和生活本真的样子。
项目名称
露香园
项目地点| 中国上海
设计面积600㎡
设计时间2021年
完成时间2023年
设计主创| 任明亮
深化设计| 赵昌明
设计实施单位
尚层别墅装饰上海浦东分公司
园林设计| 无言斋庭院
尚层别墅装饰(简称尚层)2006年在北京起航,已在国内15个城市设立18家直营分公司,是唯一跨区域布局超大城市和主要宜居城市的大型高端私宅装饰企业,拥有正式员工4500名,服务客户超过40000户。
尚层聚焦高端私宅居住领域,在中国私宅装饰领域开创了“别墅生命体”设计系统和交付系统,为客户提供全案设计、全案交付、家居保养及生活家政服务等“全生命周期”的居住整体解决方案,持续引领中国高端生活方式。
客服
消息
收藏
下载
最近













































