查看完整案例


收藏

下载
在光与影的交错中,金地·广州御湖颂项目仿佛一幅深藏不露的画卷,缓缓展开在这个喧嚣世界的一隅。此次INNEST意巢设计在广州增城,将一个静谧的空间转化为情感的容器,这不仅仅是建筑与空间的精心编排,更是一场关于时间、记忆与感官的细腻对话。
当第一缕阳光悄悄探入窗扉,跨过木质地板,慢慢爬上精致的织物,这里的清晨不再是简单的开始,而是一场视觉与感官的盛宴。光线与影子在此轮回,犹如水墨画中,山水与风景在室内外交融,仿佛推开门就能步入画中。
"小满"这一主题贯穿整个客厅,意味着家的完满与幸福的到来。空间利用自然光影的变化,创造出一种时刻流转的美感,肌理的触感和视觉的舒适在这里交织出和谐的诗篇。
在这里,每个细节都被精心考量。沉稳的黑色大理石,与温暖的木纹相映成趣,再加上简约而现代的家具,每一件都像是精心挑选的艺术品。而置于桌上的金属茶具,闪烁着柔和的光泽,为空间增添了一抹东方的精致与内敛。
轻柔的织物与质地粗犷的装饰品相辅相成,无声地讲述着屋主对生活品质的坚持与追求。在这里,家的意境远不止于眼前的舒适与美观,更在于那份静谧中沉淀的品味与情感。
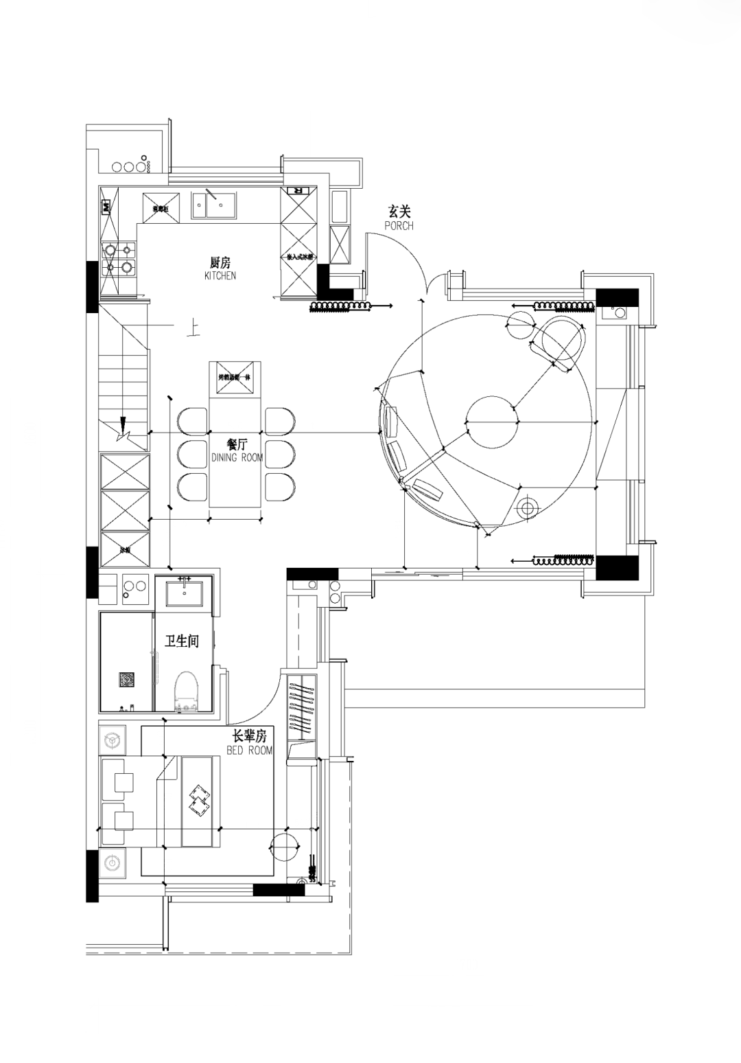
踏入餐厅,黑色的大理石餐桌显得庄重而典雅,仿佛在诉说着每一个家庭故事的厚重。坐落其上的铜质餐具反射着柔和的光芒,映衬着家人的笑脸,回响着季节更迭的节奏。悬挂在墙面上的画作,捕捉了树枝与风的轻吟,低语着秋日的诗篇。
餐椅的网状背靠以及藤编元素的加入,无不显示出对自然材质的偏爱与运用,也映衬出餐厅里流动的自然光线和阴影的变换。每个细节都精心构思,用心感受二十四节气中那份收获前的宁静与期待。
厨房融合了自然元素与人文思考,将“土”与“木”这两种东方元素巧妙结合,打造出一个简洁而又不失精致的烹饪环境。淡雅的石材台面,触感细腻,带有微妙的纹理,恰如自然界的无穷变化,充满了自然的韵律和生命力。
客房墙面的米色调和木质装饰条呼应了自然的温度,带来了一种原始而温馨的舒适感。床头的艺术挂画讲述着东方哲学中的阴阳平衡,与室内的黄金色调灯具和淡雅的床品相得益彰,无声地显露着东方式的隐约奢华。
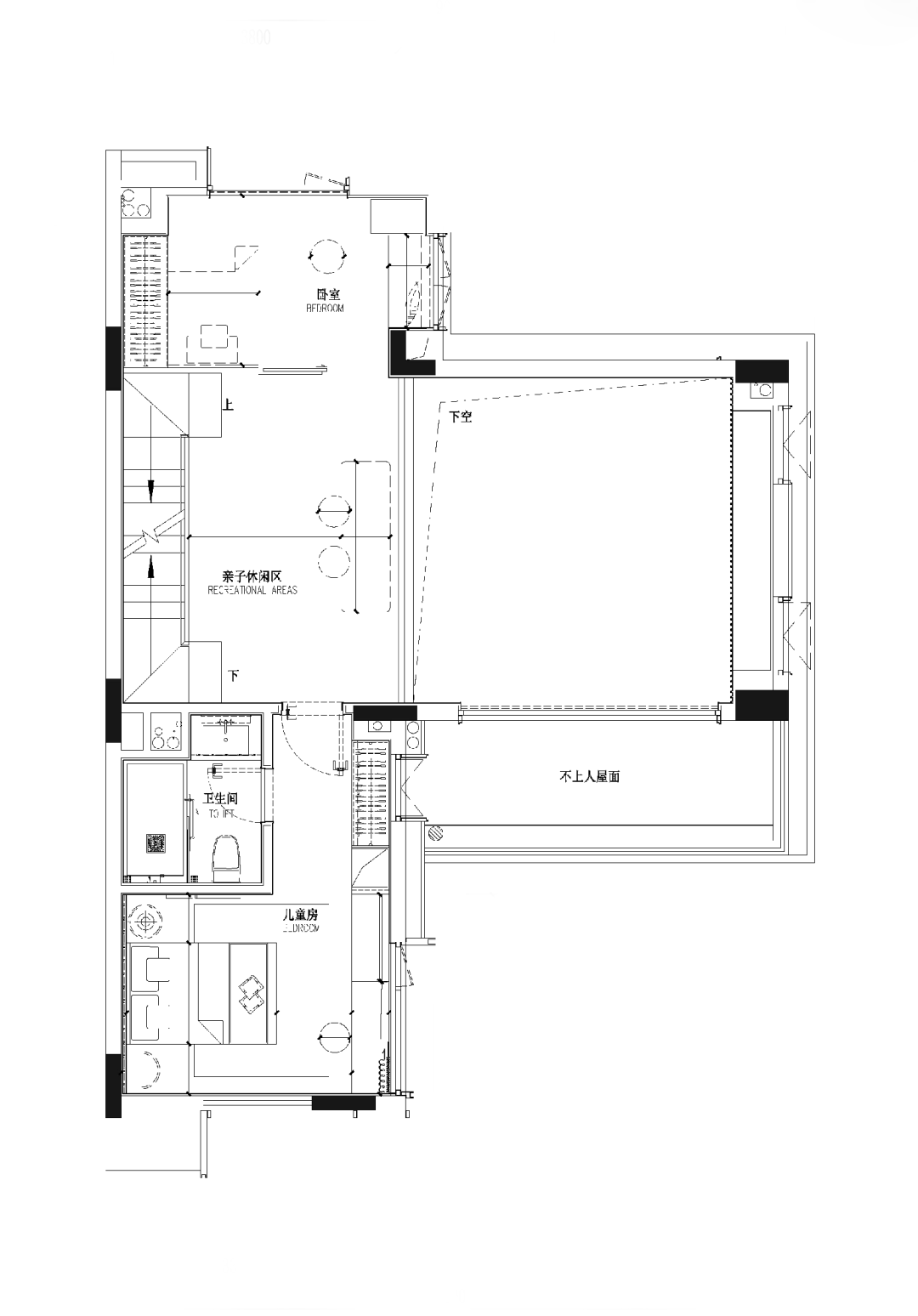
通往二层的楼梯不仅是连接空间的桥梁,更是一件讲述故事的艺术品。精选的自然石材,以其温暖的色泽和细腻的纹理,让每一步的脚感都成为对自然礼赞的体验。楼梯的设计简约而不失现代感,扶手的线条流畅优雅,透明的玻璃栏杆仿佛消除了界限,将空间的开阔感延伸至心灵的每一个角落。
二层优雅而宁静的书房里,每一处细节都透着精致与考究。明亮的窗户引入了自然光,照亮了木质质感的内部空间,带来了自然的温暖与生机。桌上的瓷瓶内摆放着几朵优雅的白兰花,与旁边的书信和工艺品相映成趣。
儿童房作为孩子成长的小天地,其设计的温馨和趣味性格外关键。这个空间以温馨舒适为核心,通过木质的温暖触感和柔和的色调营造一个既适合休息又适合孩子们玩耍的环境。
墙面的米色调与木质元素共同勾勒出一片宁静海洋,自然的色彩在这里得到了完美的展现。每一个细节,无论是精心挑选的床头灯,还是窗边轻巧的绿植,都透露着对生活的热爱和品质的追求。
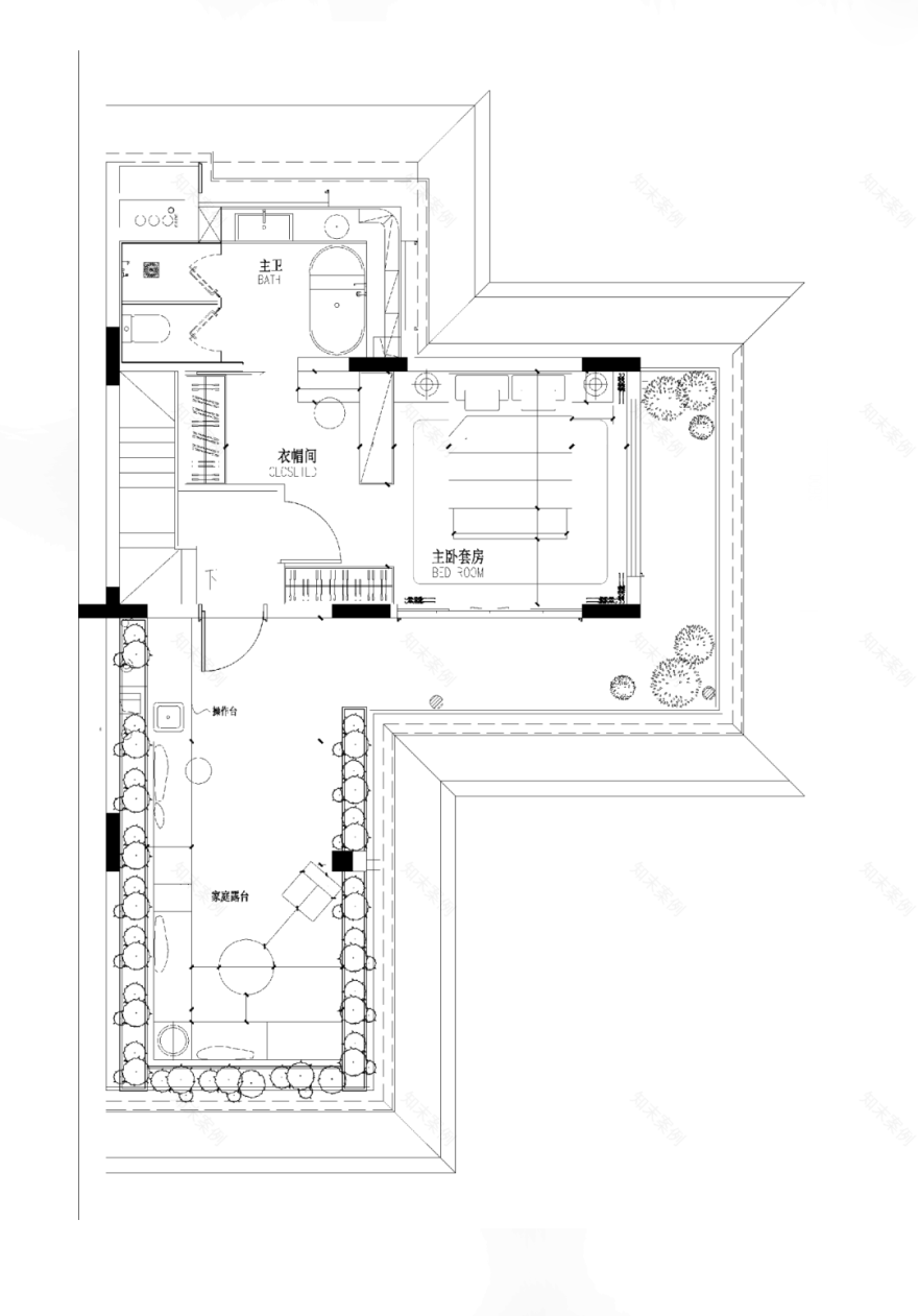
宽敞的落地窗不仅引入了自然光线,更是框住了窗外的翠绿景致,为主卧增添了一份宁静与和谐。床头柜的简洁线条和温暖的木质材料,以及床上柔软织物的层次感,一切都在静谧中呼应着自然的节奏。床铺旁的水吧台和梳妆台,无一不体现了居住者对生活细节的考究与品位。
浴室内的设计简洁而精致,光洁的浴缸与粗犷的石材质感相辅相成,创造出一种质朴而不失高雅的美。每一处装饰品,每一瓶香薰,都细致地放置,旨在营造一个放松身心的洗浴空间。
项目名称 | 金地·御湖颂
项目地址 | 广东 广州
完工时间 | 2024年2月
设计面积 | 169㎡双拼别墅
设计机构 | INNEST意巢设计
项目摄影 | Benmo本末堂
客服
消息
收藏
下载
最近































