查看完整案例

收藏

下载
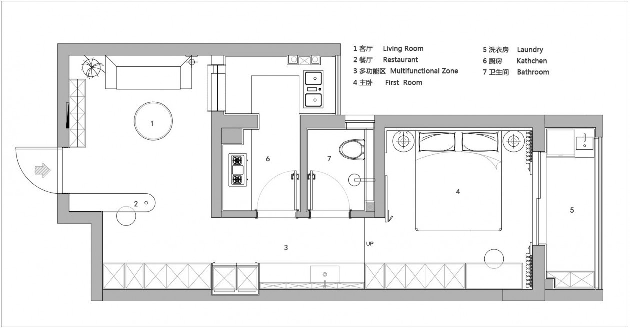
这是一套60平米(含公摊)单身公寓,业主是一位95后职业女性,因为其理性坦然的个性,为此次设计定下了极致简约的基调。
因户型结构的尺度紧凑,原户型无法合理布置收纳空间,所以解决功能的收纳是我们本次设计的首要核心问题。其次户型结构的卫生间和厨房是在空间的中心,因此解决通透性和采光是我们研究的另一个课题。小户型的面积紧凑,我们采用了“功能复合化的理念”来延展功能属性,提高空间使用效率,我想这也是刚需户型很好的参照理念。
入户直入客厅,看到的是厨房的墙面,我们利用盒子的概念,将厨房卫生间做成灰色盒子,与周边白色墙面区分开来,以达到空间的透气性和延展性目的。在厨房的墙面打开一扇窗户,窗户内部是厨房空间,外部是客厅空间,加强空间之间的联系性和互动性,为客厅引入光线和新鲜空气。
利用开洞的窗台空间嵌入壁炉,在客厅提供了一处温暖的情绪角落。
入户鞋柜的悬挑设计,临时鞋物有了归宿,墙角的黄金荣点缀着自然与生机,墙面电箱装饰板,记录着一天的计划和美好。
餐桌从入户延展成吧台形式,节省更多的活动空间,就餐也有了惬意轻松的氛围。同时延展到入户的吧台为 进门提供了置物的收纳台面。入户穿衣镜弱化了墙体结构的突兀感和体量感,金属的飞碟吊灯则承载着空间的视觉焦点。
过道的设计是本次设计的核心,延展过道宽度,将全屋的收纳全部集中于此,从餐厅的水吧柜、到厨房门口的冰箱柜,再到卫生间门口的浴室柜,继续延伸至主卧室,成为主卧的衣柜和梳妆台。我们利用一条线的原则,集中解决了整体空间的收纳问题。我想这也是“少即是多”的另一种解释。
卧室则设计成地台房,最大化的利用空间,为主人的休息,提供了轻松度假感的氛围感。房子临近主路,我们保留了推拉门和独立的生活阳台,方便生活,尽量隔绝噪音。
题记:
此次项目是我们工作室创立初期的项目,2022年疫情期间跌跌撞撞,装了6个月的时间,因为我和业主是朋友关系,她又是大学毕业自买房自己装修,工作繁忙,一边挣钱一边投入资金装修,一个女孩子靠自己非常不易。未来这个房子可能要给她父母居住。奔着这份感动,我们尽力利用身边的资源,寻找靠谱便宜的当地供应商,半买半帮忙的形式来帮助业主节省资金同时保证稳定落地,即使如此部分产品到了第二年才配齐,非常感谢业主无条件的信任、支持和坚持。这个项目仍旧有一些做工上的遗憾,我想有些遗憾是让我们再接再励,对自己提出更高的要求和水准,更上一层楼。
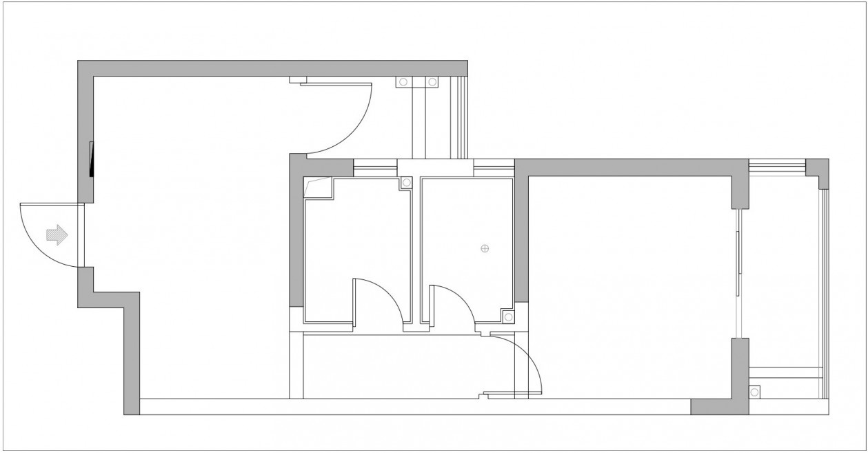
平面及设计方案
▲原始图
▲布置图
项目地址 ︳安徽合肥
项目面积 ︳60㎡
设计机构 ︳VVD·Studio润泽万物设计
全案造价 ︳12万
摄影机构 ︳Remex飞羽
客服
消息
收藏
下载
最近





















