查看完整案例

收藏

下载
氛围开场白
设计的高度,很大程度上源自于对场地本质的把握和对环境条件的敏感回应。将自然的脉动引入生活空间,以一种近乎敬畏的态度,打造了内外共生的居住环境,是设计师带给居者的愿景。
用近乎克制和原始的纹理和色泽与柔和的光线交织在一起,悄然在空间中勾勒出一种深邃的灵动。
而设计的简洁性不止停留在视觉美学的表层,更触及了生活哲学的深层次理解,不是单纯地去繁就简,而是通过精炼的物质形态,探索生活的本质和意义。
居家的日子时间仿佛也放缓了脚步,允许我们在急促律动中,寻找一处可以缓缓呼吸的角落,对话自我,聆听内心。这不仅是对家的构造,更是对一种理想生活方式的构筑。
合并两个独立空间变成大横厅,整面的书柜贴墙而立。在保留通道和卫生间门的功能前提下,使客厅大面积留白。摒弃固定静止的摆设,不仅是对空间的排列,而是对生活深刻阐释:简约而不简单,优雅却不造作。
整体的界面处理方式,与常规的处理方法做了一些区分。原木之美,在于它的纹理与温度共存,光与影的交错演绎,绿植的点缀生长,都在无声中赋予空间以律动。
不仅仅是形式上的融合,更是功能、情感、精神层面的互动和融洽。当设计能够尊重场地的原始特质,呼应自然的节奏和精神,便能创造出不仅仅是物理空间,而是拥有生命力和灵魂的场所。
好的氛围,是设计对场地语境深度理解和巧妙运用的结果,宛如岁月的痕迹,轻轻描绘着时间的轮廓。一杯淡淡的茶,散发着幽香,伴随着书中字句的跳跃,如泉水般叮咚作响,流淌在心间。
灰色,作为一种中性色,自带优雅与现代的气息,与原木搭配使用,构建了一种冷暖材质的平衡。空间不再是冷暖对立的场所,灰砖自有的自然质感与色泽和原木与生俱来的温润,为空间提供了一种沉稳、静谧和坚实的基调。
生活,是动态的情绪
场地不仅是设计的基础,更成为了促进人与空间、人与自然、人与人之间交流和连接的桥梁。
餐厨变成了家庭互动的核心,U型吧台承担着多重角色,它不仅是食材准备的平台,更是情感交流的媒介。一种对家的包容与开放的态度,没有隔阂的空间里,每个人都是参与者。
收纳空间被赋予了美学与实用的双重考量。隐藏式的设计既保持了空间的整洁美观,又如同魔法般在需要时展现出其实用之价值。
结构与布局的开放性相得益彰,不加修饰的木质之美诱发出触觉的交流,餐厅已然不能只停留在果腹的阶段,空间在视觉和感官上呈现放松而优雅的姿态,用餐不再是匆忙且短暂的停留。
在当下的设计中,裸露的梁体不再是问题,设计尊重建筑的原始面貌,用木饰面将梁体进行包裹,把原本可能被视为缺陷的结构转化为一种独特的美学特征,在空间中标记记忆点。
梁体结构与空间的构造形式进行结合,它既是空间的一部分,又似乎独立于空间之外,在动态而富有层次的空间中增加了设计的深度和复杂性。
在体块的穿插为空间注入灵魂,既有虚实又前后交错。这种光与影的游戏,让空间呈现出一种通透而神秘的交互,使得每一个空间展开对话。
层级梳理出一种属于静谧与美学并存的生活方式。楼梯,不仅仅是垂直的连接,它是家的轴线,围绕它,每一层都讲述着不同的故事。结构的线条,简洁而有力,定义了空间的边界,也勾勒出无形的安心感。
以自然唤醒自由
柔和的阳光透过窗户,与外头轻拂的绿意交织成一幅生动的画面,让人心随景移,每一个静默如水的午后,都能听见时间的脚步声,轻轻地,在每一行文字间穿梭,细腻地绘制出一场心与自然的对话。
书房和楼梯之间的墙体被巧妙地开洞,打破独立空间的完整性,当光线与景共享,空间也完成了互动,不仅为流连于居室的每一步带来了光的礼赞,也为空间的层次交织了更加丰富的内核。
原木的色彩给予了室内一份恬淡的质朴,墙体的温柔色调与木质地板的温暖触感相辅相成,开启一扇门,是进入梦境的邀请;闭上一扇窗,是对喧嚣世界的温柔拒绝。
每一个转角都可能是新视角的开始。设计不只是为了美观,它让生活的仪式感在日常的每个瞬间,缓缓展开,让日常的上下穿梭变成了一种寻常日子中的小确幸。
将阳台的一半空间现浇,做成屋主的私人书房。保留的斜坡顶映衬着间接光源的温柔,让光线成为流动的诗,静静地诉说着悠然自得的故事。
空间不仅仅是阅读的避风港,它与外部世界的联系,通过半开放的露台得以维系,让每一次沉浸在书页中的体验都伴随着自然的气息。时间似乎被重新定义,可以在书海中遨游,亦可以在阳台上与天光云影相伴,而屋主,则在文字与自然的双重宁静中,找到心灵的极致宁静和创造力的最佳激发点。
一扇门轻轻推开,便是通往私密生活空间的入口,细腻的木饰面保持上下空间的连贯性,被赋予了目的和思考,让日常生活的每个瞬间都充满了设计的意识和生活的仪式感。
一个真正合适的家,是居住者精神的映照,是个性与情感的载体。家的色彩,不仅仅是墙面的涂层,随着时间和情感的浸染,变得丰富且人情味。从每个角落的温馨安宁到公共空间的款待与优雅,家的设计精妙地映射了生活的每一种状态。
在这里,无论是沉浸在自我的宁静中,还是与朋友共享欢聚时光,每一次呼吸都能感受到轻松自在的氛围。家的包容,是每个人都能在其中找到自己节奏的和谐。
✧原始结构
1F
2F
3F
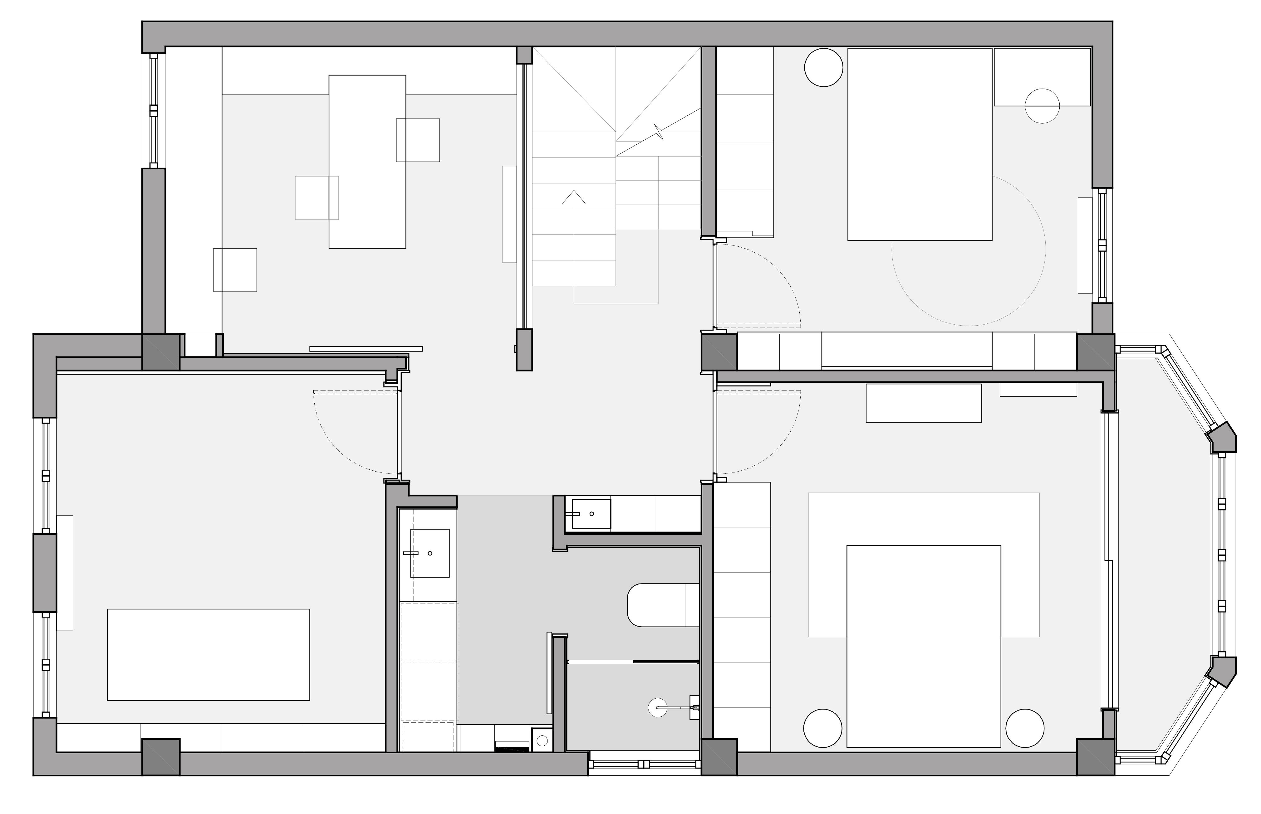
✧平面布局
1F
2F
3F
项目名称 / 慢度
项目地址 / 江苏 南京
主创团队 / 云行空间建造设计
工程施工 / 云端建设
项目周期 / 2022.05-2023.10
建筑面积 / 247㎡
项目类型 / 全案设计+半包施工
空间摄影 / 吴昌乐
客服
消息
收藏
下载
最近




















































