查看完整案例

收藏

下载
项目信息
■ 项目地址|武汉 · 汉口私宅
■ 项目类型|全案托管
■ 项目面积|260㎡
■ 项目设计|武汉得间设计
■ 开工日期| 2023 年 4 月 02 日
■ 竣工日期| 2023 年 9 月 30 日
■ 项目户型|平层大宅
项目前言:
生活之诗,生命之歌。在嘈杂纷扰的城市里,家是很特别的存在,它是每个人内心的领地,一个安全温暖的所在。
本项目为一对年轻人的婚房,常住的家庭成员除了业主夫妻俩,还有一猫一狗,另外还考虑未来小孩的成长空间。他们都拥有对生活品质都有着极高的追求,希望打造一个精致舒适的居住环境。但由于他们工作比较忙,从设计+施工+产品全程委托给我们。设计师仔细分析现在和未来的需求之后,把带有现代简约+法式的设计思维贯彻到其中,以舒适为核心,塑造高级温暖自由的生长空间,让屋主能够在空间中摆脱平日工作及回归到生活的本真。
▲ 原始结构图 ▲
原始户型比较方正,布局比较合理,但业主不喜欢现有开发商过于老气商务的装修风格,因此通过平面微调的方式,对功能区做了优化,消除常规的区域边界,打破传统公区布局方式,让空间形成隔而不断的联动感。项目进行了局部拆除,保留了原有的地面,厨房和卫生间,并全程委托我们来做从设计+施工+选材,实现拎包入住的愿景。
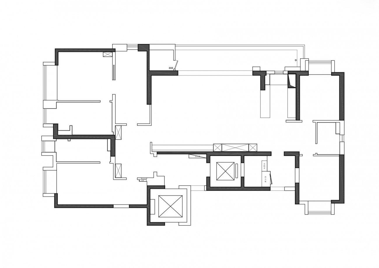
▲ 平面设计图 ▲
1:将原本 4 房改造为 3+1 布局,保留主卧、次卧、儿童房,增设一个儿童成长房,预留给未来宝宝活动的空间,又能作为书房办公的多功能房。
2:客厅阳台打通,拥有了更好的视野,合理利用阳台,在阳台左侧打造猫咪豪宅,右侧打造独立的洗衣房晾晒区域,并利用阳台的优势,还打造休闲区和小型圆桌餐厅区,提供更加舒适、便利的家庭生活体验。
3:打破客厅传统摆放形式,入口一侧设计电视背景墙,并将管线等隐藏放在柜子里,让整个墙面更加整洁。旁边放置餐边柜、储藏柜,外侧采用统一的实木贴皮,保证在统一的平面上,兼具收纳与美观。
4:主卧利用过道设计一个长方形衣帽间,打造一排黑白衣柜和镜面柜门,柜子内部安装灯,并为业主量身定制设计了放置首饰的抽屉。
5:儿童房采用树屋设计,营造一个梦幻般的空间,儿童床上下床的设计,上床可以玩耍,下床休息,结合睡眠和游戏玩耍的功能,为孩子提供更多探索和成长的空间。
ENTRANCE
玄关
独梯独户的公共过道推门而入,映入眼前的黑色木桌上「银河之外 GALAXY」台灯,与吊顶上天花软模灯,相互照耀着,以恰到好处的亮度点缀着玄关,呈现出空间色调温和又舒服,谱写着幸福的生活从玄关开始,温暖着迎接着主人归家。
LIVING ROOM
客厅
顺着走过穿衣镜来到会客厅,打破原有的布局思维,用开敞的空间梳理光、自然、建筑和居住者的重重关系,重新组织空间动线。横厅布局替代了原本的精装布局,将位于主轴线上的客厅、餐厅和阳台全部敞开,让阳光在空间之间游走回旋。褪去了传统法式的繁复、冗杂,整体空间以浅色为主色调,加上轻快的色彩搭配,木色、石材、布艺等原色,将古典美融入现代美学中。
电视也挪至过道的墙上,让新家能兼顾壁炉和观影,「SABA Italian」的组合式沙发挣脱朝向和方位的束缚,和客厅完美契合。冬日里两人靠在沙发上,打开壁炉、电视,享受着美好惬意时光。
洞石制作的壁炉和天花顶上的风琴线条,成功点睛法式内核,野口勇系列的吊灯在角落静静散发出温柔光芒,勾勒出静止却有灵动感的画面,独属于法式的温柔在其中流动。
阳光从落地窗里投射在沙发上,让自然光以独有的形式折射进来,空间拥有多层次的变化,简单的光影也能形成有趣味的点。
阳台和客厅的连接地带,用三扇通顶的百叶屏风,重塑区域曲承转合之处,用突破常规的设计手法,建立起客厅与阳台的视觉联动,空间气韵也因此流动起来。
阳台一角设计成猫咪的豪宅,顺应猫咪的习性,设计攀爬架,打造阶梯式隔板,提供猫咪活动玩耍。罗马帘的窗帘,防止猫猫抓挠,阳台从此成为猫猫的乐园。同时这里也是休闲区域,可以在此处拿杯咖啡,晒晒太阳,看看书,撸撸猫咪。
KITCHEN AREA
餐厨区
客餐厅一体化设计,充分挖掘空间优势,营造更富有互动的用餐和接待体验,也增加了与客厅区域的互动性。客厅与餐厅融为一体的呈现,功能界限模糊,独立却又和谐,并带来视觉无边界的自由感。结合空间改动,在侧边的墙面设计餐边柜和多功能储物柜,用内嵌的饮水机、蒸烤箱和嵌入式冰箱,以及增加嵌入式零食拉篮和铝合金洞洞板电器挂架,提升空间的使用弹性。玄关、客厅、餐厅、阳台、西厨区等被一条流畅的行走动线串联起来,区域转换自由而富有趣味性。餐边柜用普拉达绿石材作为背景,点缀其中,让一切看上去轻盈又醇厚,好像被时间加上了一层滤镜,变得平静、柔和,不期而遇的生活情调在纯白的底色中闪耀、角逐。
“家”是一个以爱为圆心,以幸福为半径的一个圆,可以环抱着家里每一个人。阳台处,小型餐桌搭配法式餐椅,简洁又温馨。圆形餐桌象征着团圆美好,温暖笼罩着幸福美满的一家人,让家庭的聚餐变得更有意思也更有仪式感。
阳台另一侧用隐框门将洗衣房隐入另一个空间,将生活的人间烟火和浪漫情怀分隔两处,空间属性转换自然。
设计师从细节入手,以恰到好处的美学尺度丰富了餐厅空间的同时也将生活的意趣诠释得淋漓尽致,既保留了简约、空灵的意蕴,又为生活注入了烟火气,让“家”的品质和情感升温。
粉色玉石岛台,搭配莫兰迪绿的吧台椅,以简约优雅姿态,参与到日常生活里,热腾腾的的人间烟火也可以充满浪漫和仪式感。
MASTER BEDROOM
主卧
成为生活的“漫游者”,在步履匆匆的社会节奏下,需要定下心的沉静。身体需要片刻游离的瞬间,空间亦是如此,打造一个梦幻而温馨的休憩空间,是留住脚步的设计魅力。主卧的软包床垫为卧室注入灵魂,给予居住者无限的安全感,床对面用木色墙板装饰墙面,飘窗定制软包坐垫,小猫咪也可以在此处休息。
木+白的配色,将卧房加入氛围光与 cassina 屏风的元素,呼应空中悬浮的吊灯,营造出浪漫的翩跹梦境。
在卧室的空间中融入身心疗愈的概念,色调延续整体采用低饱和度温柔而细腻的配色,无床头设计,而是采用背靠墙板设计,床头处的圆形石材边几,留出窄长的空白隔断,打破整面高柜的秩序感,让光线和声音得以流动,调节好衣帽间和睡眠区之间的空间平衡,让整个主卧套间更加舒适、和谐、自然。
CLOAKROOM
衣帽间
步入式衣帽间采用了镜面柜门与黑白色衣柜,整体延续主卧的木白配色,是方与圆的碰撞,是棱角与弧形的浪漫,让法式的优雅烂漫重现于此。在这里,透过素雅米色的布艺和纱帘过滤的阳光,女主人可以在此静下来梳妆打扮,是一个独享的完美精致空间。
CHILDREN’S ROOM
儿童房
儿童房是孩子探索和成长的场所,而一座树屋设计将为他们提供一个梦幻般的空间,结合睡眠和游戏玩耍的区域,为孩子们的房间带来更多的乐趣和实用性。飘窗采用屋顶造型,星空的壁纸,角落里放置“妈妈的怀抱”沙发以最柔软的姿态散发着母亲般的温暖和安全感,并与雾霭粉的床头靠背和背景墙颜色相呼应,沙发的角落可以供孩子在此处学习看书,上下床也安置了暖色小照明灯,让孩子拥有一个童话般的睡眠空间。
雾霭粉和奶呼呼的空间下营造孩童的烂漫国度。床铺用层板分成两部分:上层是玩耍的小天地,以扶梯和拱门做入口,用麻绳结网和扶手来保护安全;下层是舒服安全的睡眠区,用地台佐以区分,墙面用定制雾霭粉软包替代床头靠背和背景墙,避免磕伤碰撞,它将两大功能压缩在小小的空间里,伴随孩童的成长。
沿着儿童房的另一侧的房间是宝宝未来的成长空间,依墙定制通顶的收纳柜,无把手设计避免玩耍时的磕碰,下方用圆形洞口打破柜体的秩序感,集玩耍和收纳于一室。吊顶也做出交错的屋顶造型,出风口同样改成正圆造型,加入灯带调节氛围,童趣满满。同时,这空间为孩子的成长提供灵活的可调整空间,就让需求伴着时间慢慢注入新的活力。BEDROOM 次卧
次卧以沉静的木质调传递自然质感,营造出温馨质朴的睡眠氛围。床头背景墙和床头柜以黑白跳色填满,黄铜壁灯装点其上,营造出一种沉稳、质朴素雅、岁月静好的氛围。与主卧同款的黑白双色衣柜,L 型布局充分利用入口拐角空间,让空间更显质感,更加高级。
去掉繁杂的装饰,以简约的线条搭配装饰画,与搭配的暖色的台灯相呼应,晕染出高级感。透过素雅纱帘,当光线漫入空间,斑驳的光影游走于其间,产生不同明暗冷暖的微妙变化,予人舒适愉悦的视觉感受。
客服
消息
收藏
下载
最近










































