查看完整案例

收藏

下载

翻译
Exchange node
A proposal for the aesthetics around the border of the City of Buenos Aires
The goal of this proposal is to create an exchange node for the multiple services and activities that take place in the location of Liniers, at the border of the City of Buenos Aires. It is designed to enhance connectivity between the City of Buenos Aires and the surrounding suburbia, to develop both areas while taking into account the cultural, aesthetic, and historical heritage of the existing architecture.
In order to do so, extensive research was carried out regarding the train station —where the urbanization of Liniers first took place around the decade of 1870—, the surrounding buildings that once existed, and the current needs from both the local community and the commuters who use Liniers transportation services every day.
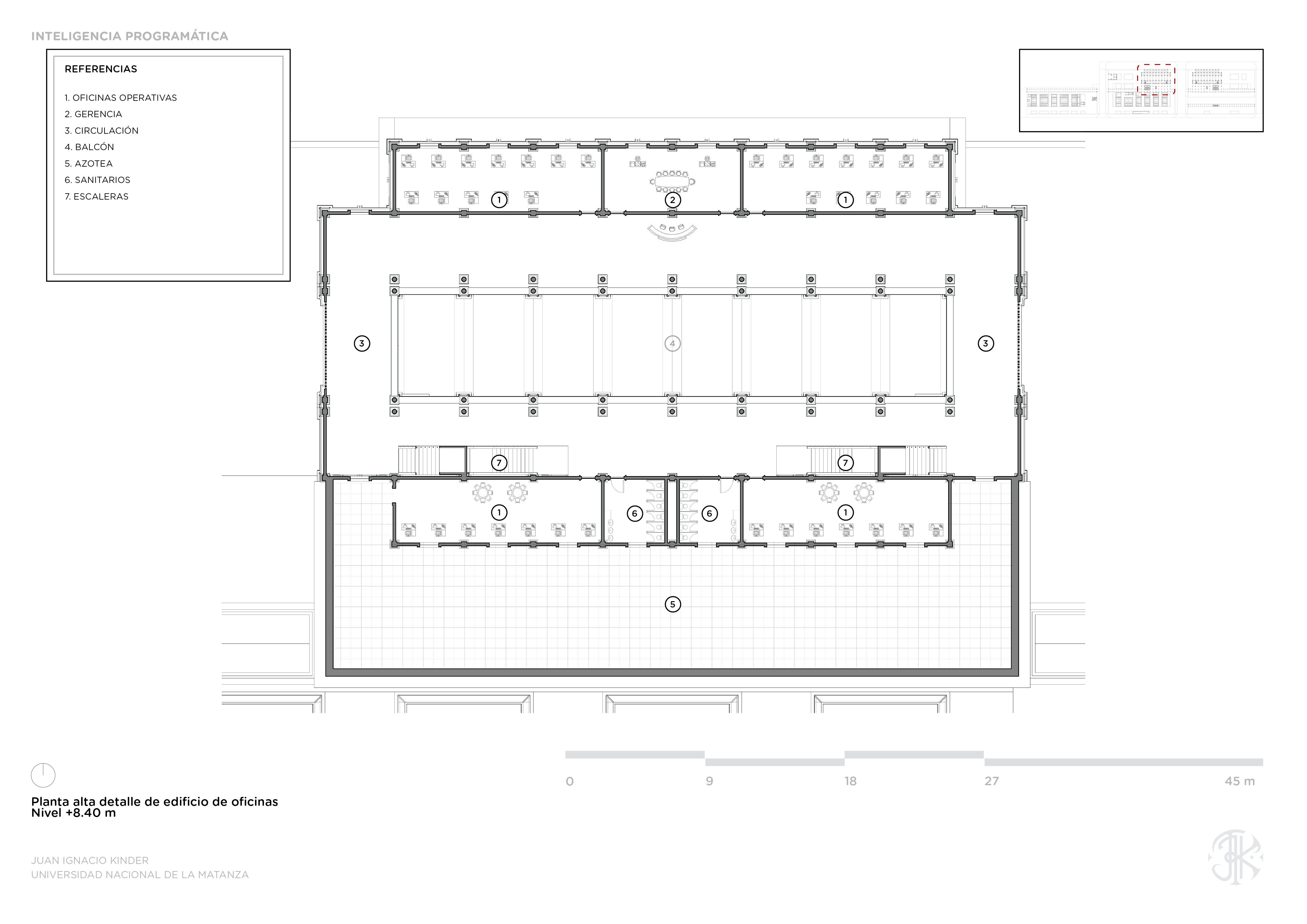
The proposal comprises an underground train station —which is currently under construction but halted due to financial crisis—, a bus station, a public forum for cultural and recreational usage, and two office buildings for the administration of the train and bus services. The layout of the master plan was designed around the historical buildings that still exist: the former 1870 residence of the train station keeper, the former railway signaling cabin, and the original 1910 pedestrian underground tunnel that connects the northern and southern parts of the station. Said buildings are also integrated into the project to restore their cultural value.
This project was intended as my final thesis for the career of architecture in the National University of La Matanza.
客服
消息
收藏
下载
最近


































