查看完整案例

收藏

下载
万物有所生,而独知守其根。 在建筑的群山中,被环抱或是求突破都是值得思考的命题,我们徘徊于城市化桎梏的边缘,向外探索,通过激起自然与人类的共鸣,倾听大地的回声。项目位于乐清城郊,有着天下奇秀之称的雁荡山便落座于此,起伏的地势是此处的特色语言,设计所要面对的,是如何在旧建筑的群落中,既保有这片土地原有的存在态势,又能够厘定新生活方式的呈现形式。
使建筑融入,而非溶入。 “融入”意为将不同物体结合,但其中各物质仍然保持着自身的性质;而“溶入”则是完全地混合,其混合物不再区分各自的成分。设计思考将空间与周边环境结合,通过院落的形式形成边界,但这种边界并不是完全封闭的,透过植物延伸而出的枝桠,以及院墙与过道阶梯的结合,达成内与外的互通属性,从而延展为空间外向的伸张力。
尊重在地的居住习惯,保有敞开式露台,自空中达成建筑与环境的融合。同时也供给一个可呼吸的自由场所。
入户为庭,庭后可居 围墙内设入户花园,置入植被呼应外部的山景,而后入室,通过大面积落地窗形成透明边界。用简单清晰的线条铺下意式轻奢的基底,不同于以往处理客厅开阔空旷的形式,反而规划紧凑的布局,打造简单温馨的生活场景。
伸展与生长 刻意而为的空隙,是穿堂而过的风,是倾泻而来的光,是漫步而行的人,也是建筑呼吸的缺口。而室内的造景与室外的自然,内应外合,赋予场景灵动的生命力与不断生长的属性,人与空间共同成长,通过与外界的交互,得到时间流逝的证明。
自然为题,光作引言 茶室被归置于光线充沛的角落,既得私密,又不会完全封闭,半透明的移门让空间被置于可变的场景中,大面山景落于窗前,但未经墙体的隔阂,于是成为了为整个建筑服务的自然画作。项目的墙体几乎保留了空白的状态,只通过必要的门窗与梁柱形成几何的变换,以此表达纯粹的居住状态。
上有天井光延楼梯的态势倾泻而下,侧面则通过各种不同形态的开窗引光,配合镜面的折射变换,最终错综地交汇于场景之中。
自由场界中诞生流动感 我们想要营造的空间是流动的,这份流动体现在区域之间的相互渗透关系,不做完全独立的封隔,保留呼吸的窗口。如此,场景间的透视也带来了共享的布景,这使得我们不得不仔细思考每一处造景存在的意义,并保证从各角度观赏的视角都有趣味。
情绪交换之际,场景变化之时 楼梯作为贯穿两层空间的主脉络,通过阶梯材质的切换形成情绪语言的转换。由石材过渡至木材,引领向温暖传统的居宅印象。而布艺与磨砂面的使用,也与一层金属冷硬明晰的质感不同,裹挟着柔和的内里,充溢每一个闲暇而漫长的午后时光。
窗户被打散,缩小的透光面结合光照形成的几何图形,建立起独属于此处空间的时间感,随日照的偏移明暗记录日复一日的更迭。
克制表达,细察天空与花鸟 在一个完全由平地而起的空间中,我们有大量自由发挥的余地,但在设计手法上,我们将更多的表达欲隐藏,克制地使用元素与结构,从而让人将更多的注意力投入对自然的感知中。卧室采用弧面的造型,隐藏无法避开的梁柱,同时暗藏线性光源,在平铺直述的场景中,引起有趣的互动。
对于倚山而居的老建筑群,我们希望新空间的外观保有当地的特色,不做前卫先锋突破的前提下体现居住者的个人特色,以保护当下群落中居住生态的延续。内里则尽可能地为当下的生活方式提供便捷,引入新式的空间理念,以块面的穿插与结构的交融,表达人与人,人与空间,乃至人与自然间的互动。
在对新与旧的探索中我们试图通过建筑去记录大地与人文的记忆让时间停驻于材质的表面抵御来自城市化的冲击浪潮在山边落脚,寂静无声
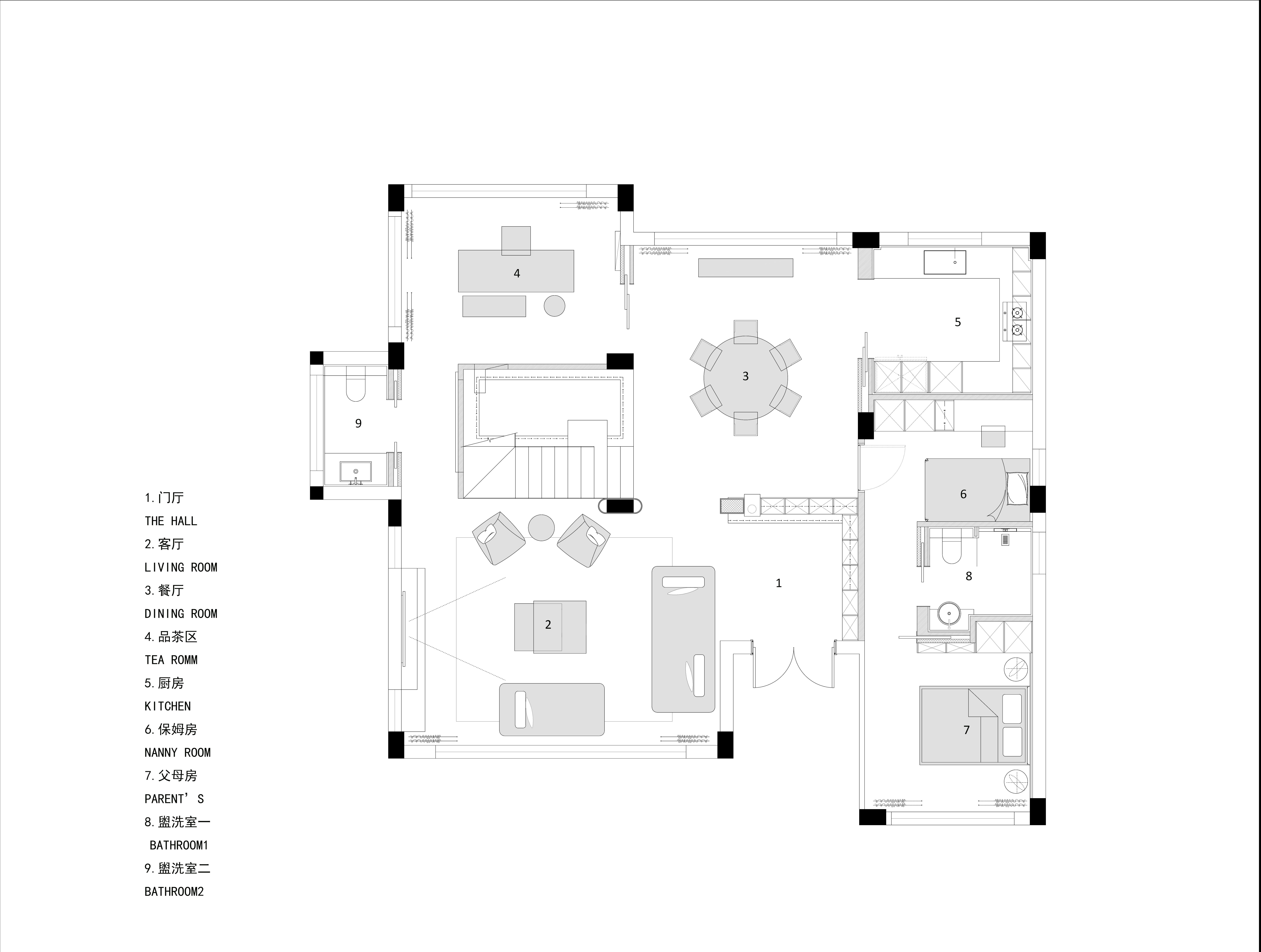
1F
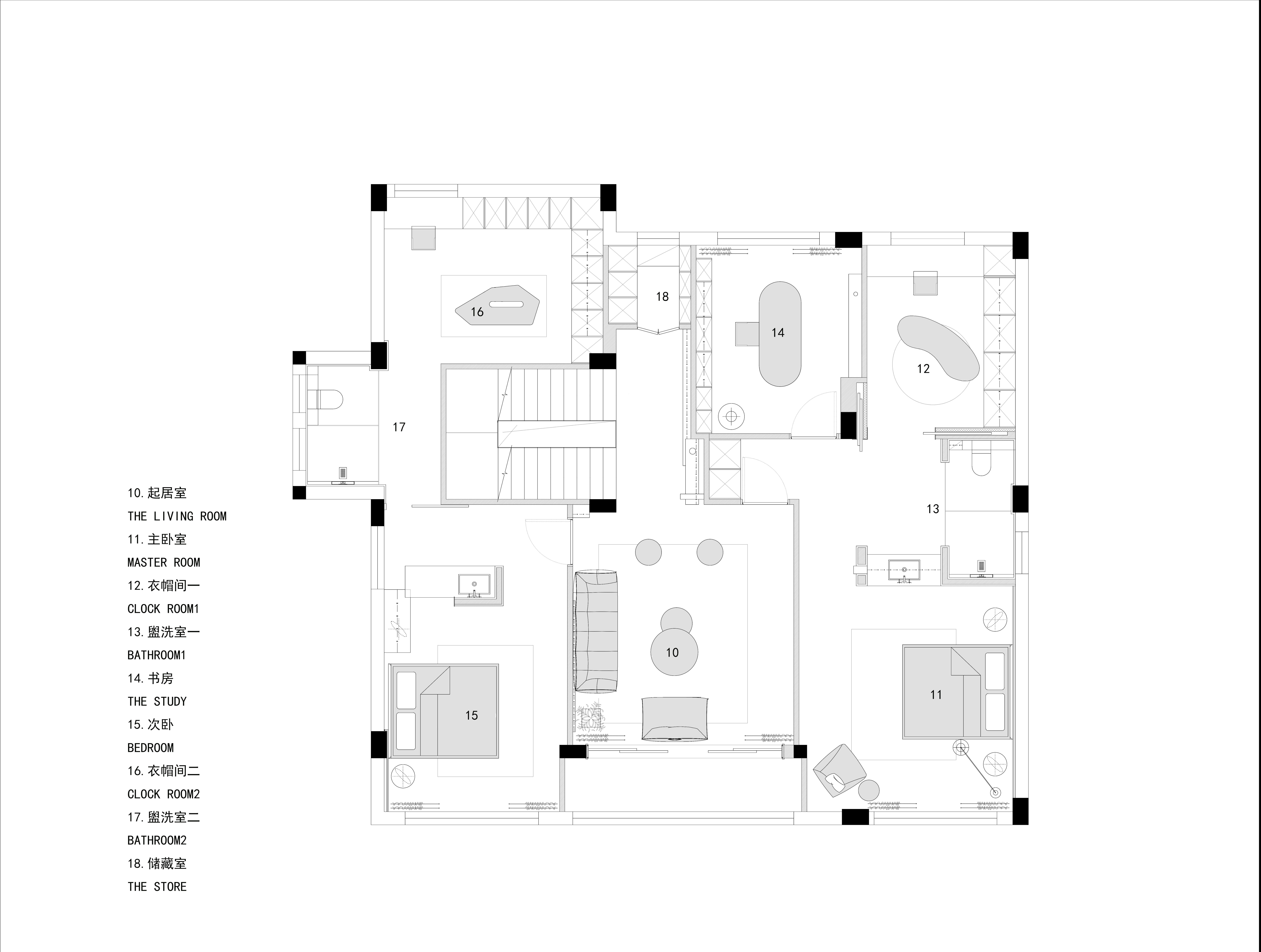
2F
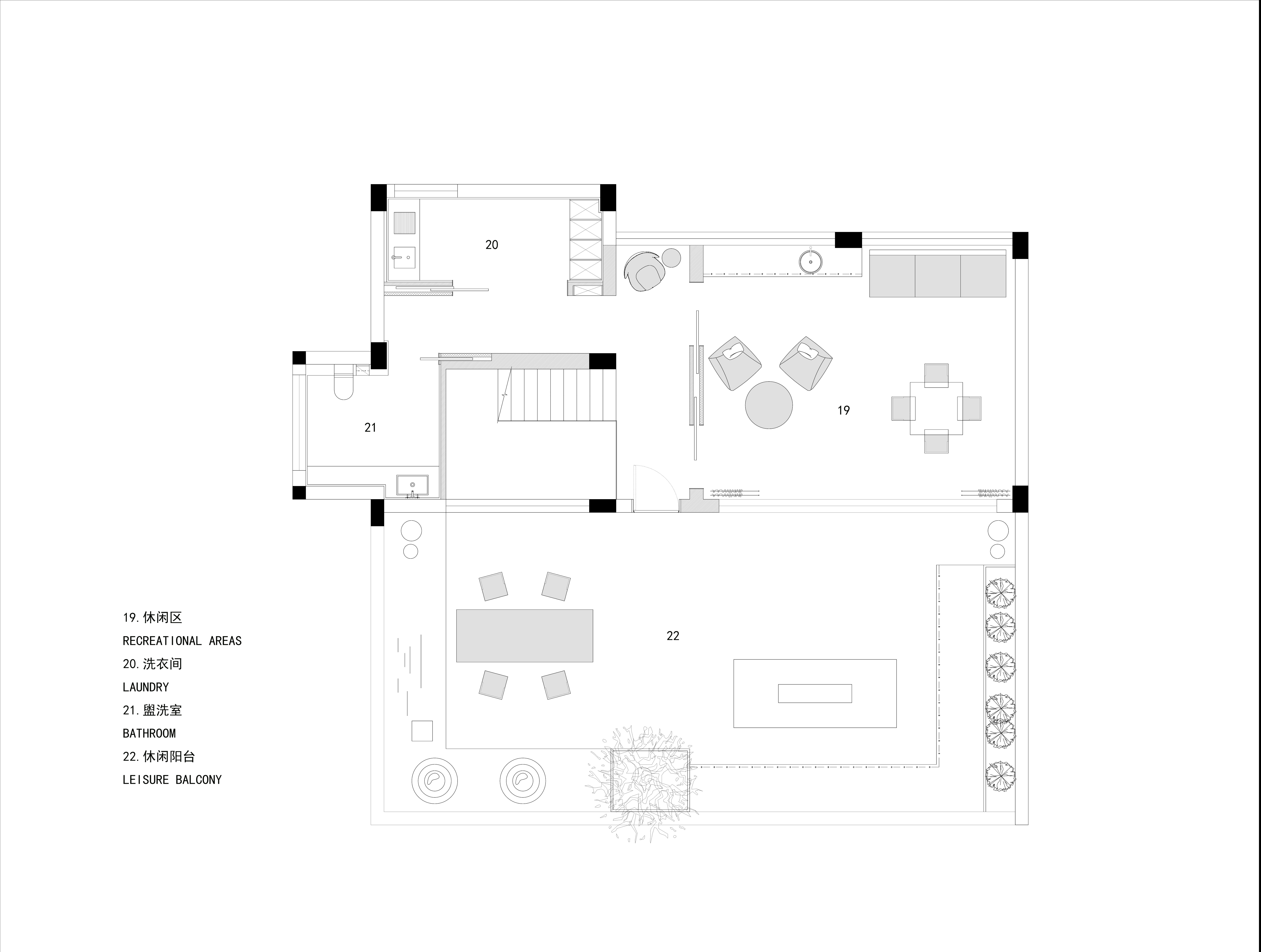
3F
项目信息
项⽬名称:尚院.新旧
设计公司:温州简印空间.倪成建设计
项⽬地点:浙江·乐清
项⽬⾯积:300M2
主案设计:倪成建 邹俊熙
项目摄影:翰墨视觉
内容策划:橙设传媒
设计时间:2022.06
完⼯时间:2023.08
主要材料:锯齿木 涂料 石材
客服
消息
收藏
下载
最近






















































