查看完整案例

收藏

下载
F L Y¢D E S I G N
⊙
# 二生三 #
跋涉于岁月的起起伏伏,倾听生命存在的根据,依附于时间变化、成长,在秩序的韵律中,存在着某种过去、现在和未来。融合日式古典美学,侘寂氛围下的解构空间,足够安静、足够意蕴,觉醒的意识空间,人与环境的交流与互动,切实又理想。
客厅 / The Living Room
客厅 / The Living Room
客厅 / The Living Room
客厅 / The Living Room
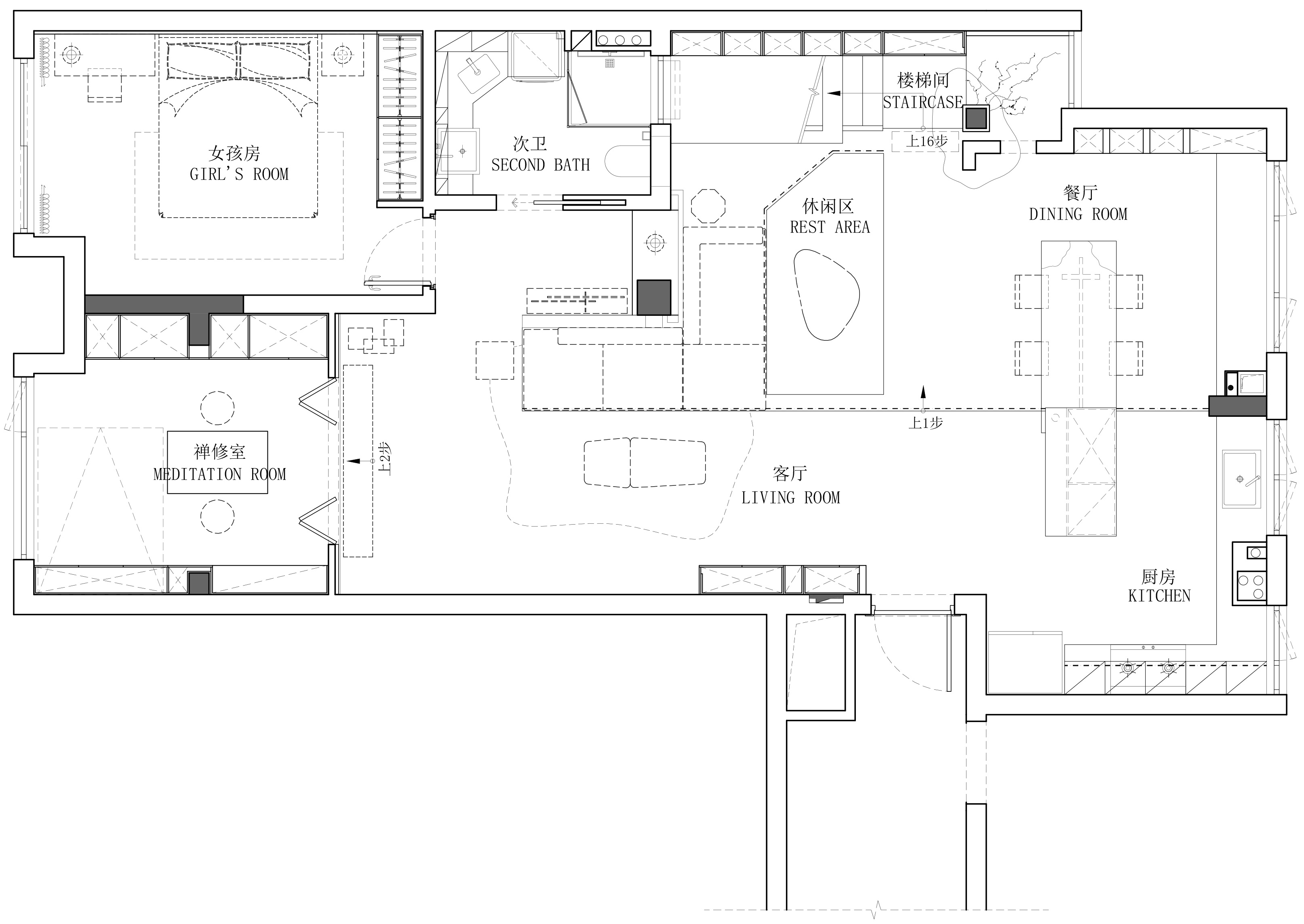
被碎片化的空间重组,整体构思而后做块面化绘筑,将原空间的功能物件重新排布位置,入户楼梯移至玄关对面,一楼空间得以重塑功能下的体感,将空间的秩序性、合理性、功能性统筹而排布。
客厅 / The Living Room
客厅 / The Living Room
客厅 / The Living Room
禅修室 / Meditation Room
自然抚慰的痕迹材质、色泽、纹理,解构重置于空间之内,老木头作为进入禅修室的踏步台阶,功能区错层塑造不同空间下的仪式感,诉求下的选择呈现进而丰富人物情绪故事。
禅修室 / Meditation Room
客厅看向餐厅 / View From The Living Room To The Dining Room
客厅看向餐厅 / View From The Living Room To The Dining Room
餐厅 / Dining Room
层次的叠级、功能的移位、体块的建构衍生合乎秩序美感的视觉体系。就餐区以体态及结构的张弛在开放式空间内得以自洽,协调统一的空间色彩下做局部跳色,把控内容节奏、丰盈故事细节。
餐厅 / Dining Room
餐厅 / Dining Room
客厅看向餐厅 / View From The Living Room To The Dining Room
餐厅 / Dining Room
客厅看向餐厅 / View From The Living Room To The Dining Room
古典美学与现代技法的双重构建,渊源的厚重携带那丛林诗意。空间内的有机呼吸表现于错位互动的雅趣,开放式家居体态,松弛感的居所下给予精神自由感悟的空地。
餐厅 / Dining Room
餐厅 / Dining Room
厨房 / Kitchen
客厅看向楼梯 / View From The Living Room To The Staircase
穿插再造的表现形式将功能结构艺术化处理,楼梯移至靠墙一侧得以释放空间体积,以块面的穿插叠加以适度的切割留白,对必需性结构进行概念性塑造,与所在大空间的互动,共生共融下的情绪饱满而热烈。
楼梯 / Staircase
楼梯 / Staircase
楼梯 / Staircase
楼梯 / Staircase
楼梯 / Staircase
将空间功能整合化呈现,以严谨的秩序性、结构性为区域叠加赋能,集书籍藏纳、阶梯式阅览、收藏展览区一体,楼梯不再是单一的交通构件,承担多种功能的复合模式提供趣味化的务实家居形态。
楼梯 / Staircase
楼梯 / Staircase
楼梯 / Staircase
楼梯 / Staircase
主卧 / Master Bedroom
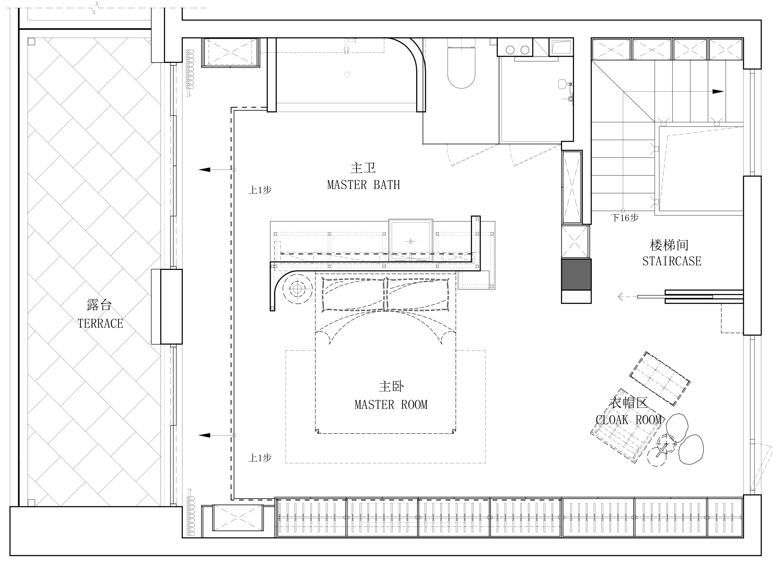
楼梯位置的转换同时将二楼的空间得以重组完整化,功能的移位探索情形之中的所需之物。二楼完全服务于主卧,是私密化的个人空间,集睡眠区、衣帽间、卫生间于一体,不加以围和而是以开放姿态,使各个功能区井然有序地糅合于同一大空间下。
主卧 / Master Bedroom
主卧 / Master Bedroom
主卫看向主卧 / View From The Toilet To The Master Bedroom
主卧 / Master Bedroom
主卫看向主卧 / View From The Toilet To The Master Bedroom
开放式与独立性的秩序性展现,解读糅合的魅力。以材质的延展让空间有序连接,木质地台呈围合之势由主卧延至卫生间,主卫放于床头背景墙后方,以适度的开合状态借以结构的穿插重组,功能完善下的空间互话,与人物机体一同探索家居美学的命题。
主卫 / Toilet
主卫 / Toilet
女孩房 / Girl’s room
客卫 / Toilet
露台 / Terrace
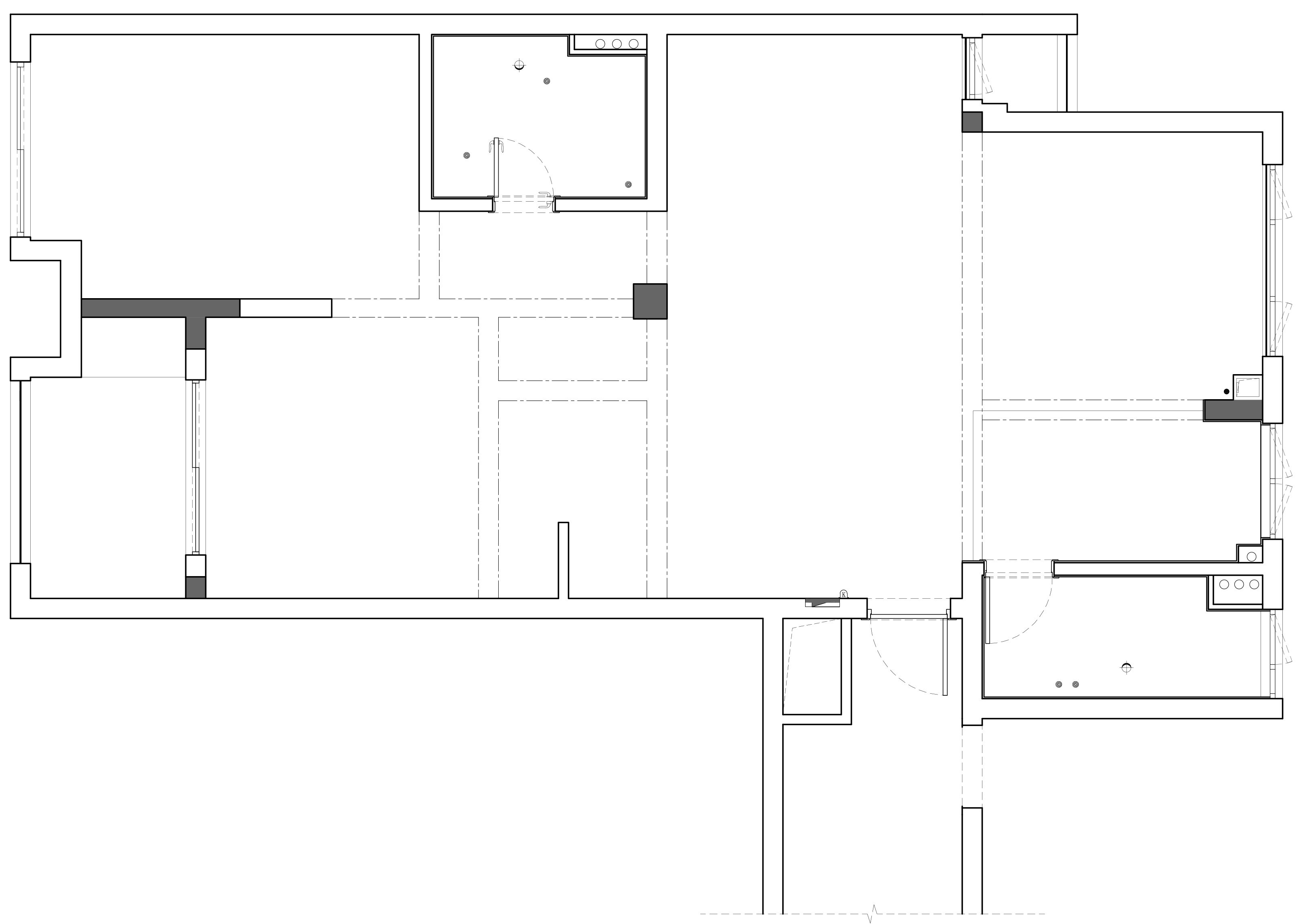
一楼原始图
一楼平面图
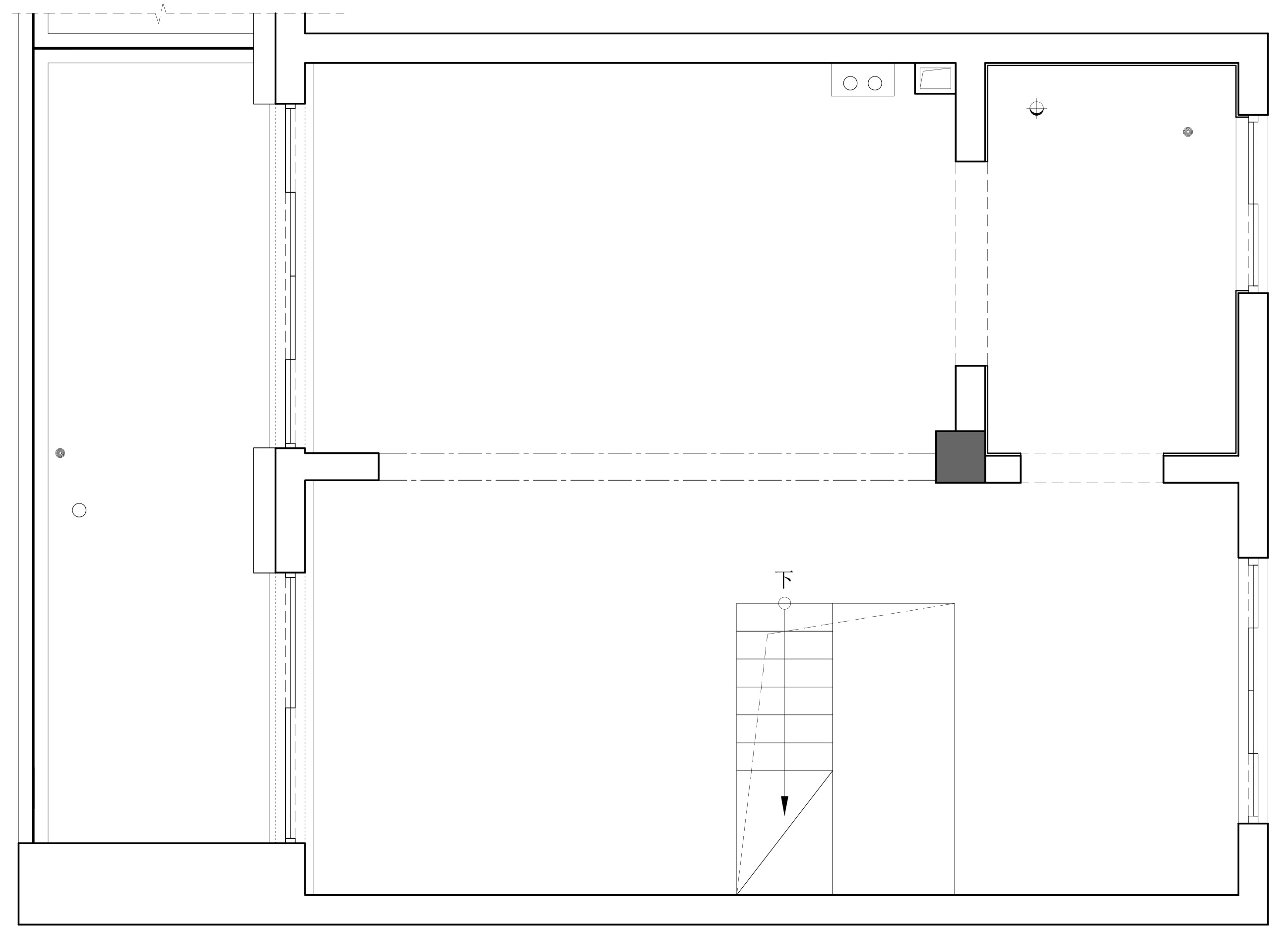
二楼原始图
二楼平面图
地址/杭州市江干区高德置地中心 2 号楼 2 单元 1101 室
客服
消息
收藏
下载
最近















































