查看完整案例

收藏

下载
凌晨四点钟醒来
发现海棠花未眠
Overview
Of the house
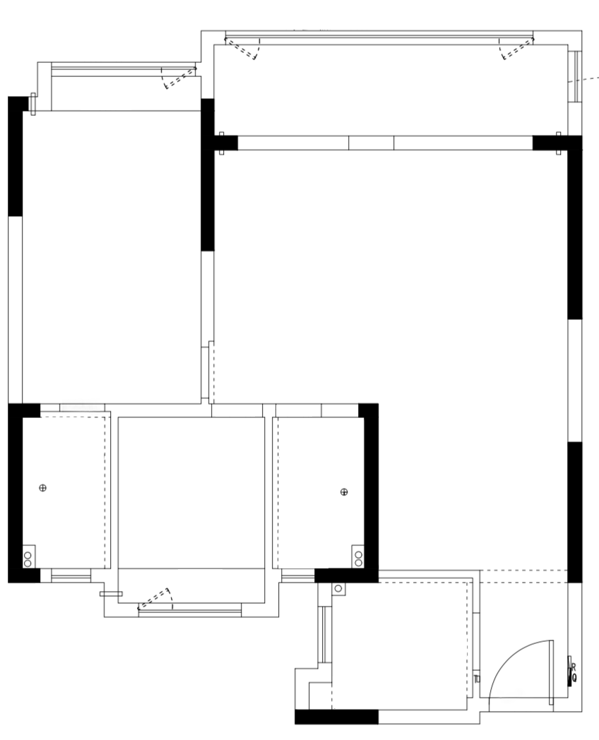
此项目是「合肥-建发雍龙府」的112㎡户型,业主自由职业、宅家时间较长,喜欢暖色、生活精简。
我们一同敲定偏极简的硬装,搭配柔和色调与自然感材质,结合生活习惯将收纳隐形到不同空间。
“静”与“松”,是进入这个家的特别感受。
客厅
Living Room
空间重构后客厅隔出开放休闲室,环形动线里满藏意外惊喜。无茶几、沙发随时可移动,小朋友游戏玩耍、席地而坐都非常方便,随时解锁居家新体验。
得一屋安身,味浓情小事,以温柔注脚,足够每一处的好好生活。
餐厨
kitchen
业主喜开放式餐厨的互动陪伴,户型优化后进门空间也更为舒适,冰箱内嵌、自由环形动线围绕,流动空间,步履不停,每一餐都是与家人的珍贵日常,如此即为「人生自留地」。
我之心与身游于此,自然光景怎可错过?一年四季如画入室,烟火气的地方也是归家心安处。
主卧&衣帽间
Master Bedroom
主卧合并主卫形成套间,衣帽间延长至床头、穿插落地收纳,拱形门姿态慢捻,暖意和鸣。
其他
other
童趣儿童房与次卧等待日后慢慢填满……
只留一卫后,洗手台外移,居家舒适度提升很多,入墙式水龙头、悬空浴室柜,实用之上追求美学带来的愉快体验。
三毛说:人这一生,匆匆而过,若说真有所图,也不过是一份温暖和惦记。
如果注定要在琐碎的生活点滴中去寻找意义,我们就在这一方天地找寻精神层面的共融。
舒适动线布局、丰富的空间感受、可探索的居家体验,整体所承载一致的美感,进入这个家有着自然而然的松弛。
慢享生活,愿一切欢喜~
info
项目地址:合肥-雍龙府
项目面积:112㎡
项目类型:平层-毛坯
● 空间改造
客服
消息
收藏
下载
最近







































