查看完整案例

收藏

下载
住所情况:该房为三室两厅两卫,有一个很大落地窗的阳台,房子位于小区坡顶,楼层虽不高,采光却极好。
居住人员:房子长期两人居住,两人很喜欢猫咪,养着两只可爱的喵呜。
业主述求:喜欢大通间起居室,想要餐厅、客厅、厨房等连为一体,保持视野开阔。
改造:房子建筑面积 125 平方米,在我们根据需求改造后,虽然厨房因燃气问题,不能做开放式,但不影响入户感觉大平层的视觉感,具体怎样改造,以下配图片详细讲解。
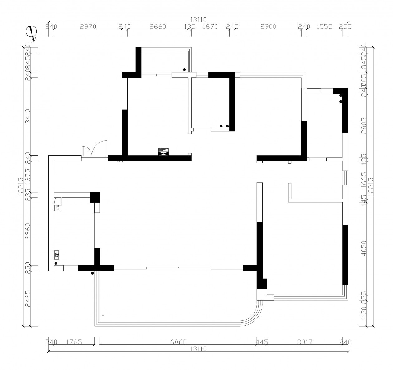
原始平面图分析:
1、房子两户一梯,电梯两门,每家有自己的电梯间可以使用;
2、厨房受当地燃气政策影响,不可做开放式厨房,改造受限;
3、客厅大阳台采光极好,但有玻璃移门阻隔,通风、采光被移门遮挡;
4、主卧衣帽间,在主卧里是动线的一部分,在空间上有点浪费,且空间感闭塞,可以优化;
5、两间次卧、次卫的入口区域打散了客厅空间,可以优化。
平面布置图介绍:
1. 入户有每户独立电梯间,一部分的玄关功能,如小型鞋柜、鞋凳放置于电梯间;
2. 入户玄关除了鞋柜,还有标准深柜,可以挂放大衣,储物;
3. 厨房受当地燃气政策影响,做移门为封闭式厨房;
4. 餐厅大餐桌,岛台、吧台、餐桌结合一起,餐桌根据需求可移动;
5. 餐桌边一组橱柜、酒柜、移门拉满整面墙,把不规则客餐厅拉成矩形;
6. 拆除阳台门,阳台和客厅为一体,增大了客厅、餐厅空间,带来大平层的通透感;
7. 原阳台宽度*60CM 的位置做了洗衣、晾晒区。洗晒虽然在客厅内,通过客厅家具布置后,在客餐厅使用时基本属于视觉盲区,不容易入眼;
8. 主卧室拆除原有衣帽间,重新分割空间,通过定制柜满足大量收纳的同时,动线也更为顺畅;
9. 两间小卧室现阶段基本属于闲置阶段,仅一间放置沙发床、书桌作为书房或临时客房使用;
10. 两只喵呜玩具区在洗晒区域前,沙发后,两只喵呜也是家里的小成员,平时在沙发、地毯、猫爬架上睡觉玩耍,还喜欢在窗帘后晒太阳,有喵呜的家,窗帘都有点悲伤。
玄关
1、入户有每户独立电梯间,一部分的玄关功能,如小型鞋柜、鞋凳放置于电梯间;
2、图一玄关图片左侧鞋柜,右侧标准深柜,可以挂放大衣,储物;
3、图二玄关右侧,做弧形墙遮挡餐厅区域的橱柜,且留有窥视缝,降低墙体拥堵感。
客厅
1、客厅拆除阳台门,阳台和客厅为一体,增大了客厅空间,带来大平层的通透感;
2、两只喵呜玩具区在沙发后,两只喵呜也是家里的小成员,平时在沙发、地毯、猫爬架上睡觉玩耍,还喜欢在窗帘后晒太阳,有喵呜的家,窗帘都有点悲伤(照片都是同一直喵喵,另一只胆小,见我们拍照,只躲在窗帘后偷偷观察我们)。
1、整个家的空间,墙面使用灰泥,色调奶乎乎的,给人安静又温暖的感觉;
2、天际线灯,线条灯等,都给空间增加了线条延申,拉长拉直了空间。
客厅电视墙旁边白色隐形门是主卧室入口,到顶隐形门,收紧了空间片面结构,降低杂乱感。厨房
1、厨房受当地燃气政策影响,做移门为封闭式厨房;
2、厨房移门关闭时,露出长虹玻璃,这样设计后,就算厨房关门,空间也有通透感;
3、厨房门口的翻页墙,是该方案装修过程的挑战点,在需要降低造价的情况下,没有选用 GRG 开模做造型,而是工人现场制作,在工艺上增加了工人施工难度。
厨房门口的餐厅和厨房位置实景~餐厅
1、餐厅大餐桌,岛台、吧台、餐桌结合一起,餐桌根据需求可移动;
2、餐桌边一组橱柜、酒柜、移门拉满整面墙,把不规则客餐厅拉成矩形;
3、冰箱另一侧是玄关,冰箱旁另一侧做弧形墙,遮挡餐厅区域的橱柜,且留有窥视缝,降低墙体拥堵感。
1、岛台、吧台、餐桌结合一起,餐桌根据需求可移动;
2、业主喜欢收藏酒水,平时移门打开,红色酒柜就隐藏在了白色移门之下。
1、图一餐桌边橱柜、移门、酒柜拉满整面墙,把不规则客餐厅拉成矩形。业主喜欢收藏酒水,平时移门打开,红色酒柜就隐藏在了白色移门之下。
2、移门打开后是图二,图二弧形墙和线性灯位置包了管道,如果用直角包管道,过于明显,做成弧形加灯光,弱化管道,给人仅是造型的美感。
卧室
1、主卧室拆除原有衣帽间,重新分割空间,通过定制柜满足大量收纳的同时,动线也更为顺畅;
2、主卧进门两侧衣柜,比原有衣帽间存储量更大。右侧储物柜,分隔主卧空间,设计两面柜使用,进门、床边可以同时使用同一柜内物品,拿取衣物更为方便;
3、深色柜体是化妆区,化妆区小窗是原来衣帽间的,化妆区左侧主卫,右侧卧室。
书房&临时卧室
两个小卧室现阶段基本属于闲置阶段,该间放置沙发床、书桌作为书房或临时客房使用。
地址 | 昆明山语桃园
面积 | 125 平米
主创设计 | 钟俊峰
空间设影 | 野菜
全屋定制 | 奥隆
施工 | 陈工工务
客服
消息
收藏
下载
最近



























