查看完整案例

收藏

下载
“世间最好的感受,就是发现自己的心在微笑”
本案是锦粼云荟的底跃户型,女主喜欢摄影与咖啡,男主喜欢游戏与手办,儿子需要琴房练习钢琴。基于原空间的结构布局与适配的生活方式,在精装交付的基础上打破重组,整体以简约为调,通过材质、属性、色系重新定义空间,赋予家新的生命。原始图
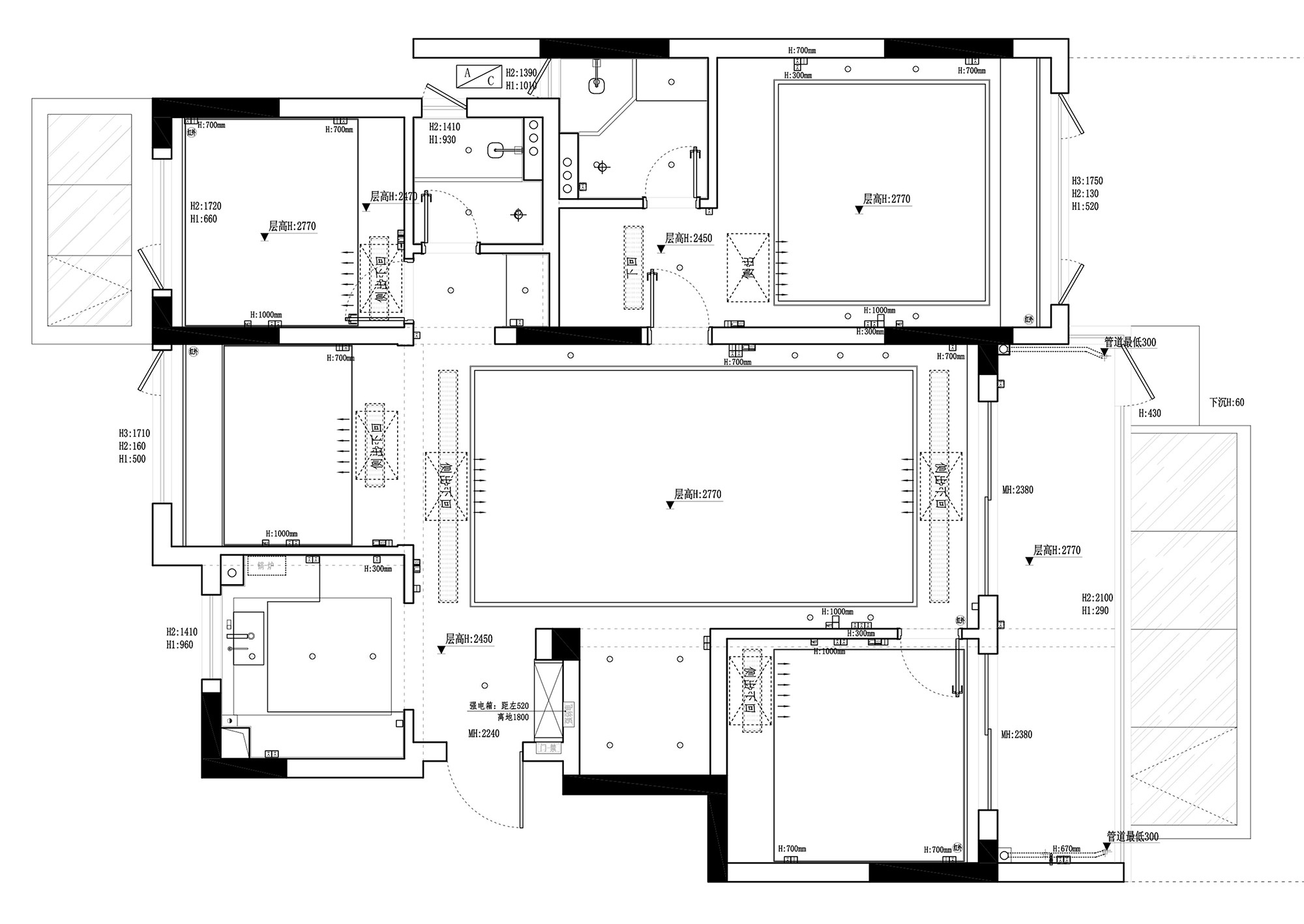
平面图
花园构筑尺度适宜的地台,区分休闲区与景观区,选用木元素修饰围栏与地台铺装,营造私密感与温馨感,摒弃传统庭院蜿蜒流转的风格,以更加明晰的线条感塑形,融合张弛布局,让植物有所居,灯光有所抒,呈现多重交叠的层次美感。
客厅深入思考室内与户外花园的互动关系,将原始阳台纳入客厅,搭配边廓规整的落地窗与纯净色块强调视觉张力,也可定格园中的诗意。轻薄纱帘让日光变得更温柔,衬得由黑白灰组成的背景墙既恬静又灵动,通过质地与色泽彰显优雅。
餐厨右侧墙壁承续客厅的高级灰饰面,结合展藏有序的结构,梳理了客餐厅关系,导引着独属餐厅的视觉焦点,原始书房对半分割,扩充厨房与次卫的面积,圆桌倒映出源自厨房的自然光,契合了四季餐食的浪漫想象。
主卧把原始主卫与次卫划归于开放式衣帽间,促成南北通透的主卧套间。深灰色块纵横碰撞,对阴面区域做立体化处理,拓展了储物空间,剩余部分叠加纯白饰面,表达纯粹个性,展示清逸之美,联结舒缓的柔帘,给予居住者最大的安抚感。
主卫主卫由原始北次卧演变而来,享有独立又方正的开窗,根据空气流通的特性先将浴缸设置在窗前,再以清透玻璃后置淋浴间,干湿区域明确。给予洗漱区自由活动的空间,采用柜门贴镜的手法,创造多角度互动的乐趣,跃动了空间氛围。
儿童房通过点线面的关系处理,优化顶面的轮廓与转角,配合纵向的弧面与曲线,释放简而不凡的空间感。分隔出静谧的学习区,在睡卧区用灰白配色分界,再放任隐藏式的光带修饰空间,为空间注入更多关怀感。
地下室会客厅地下室空间,在布局上主张开放且联通,满足社交和亲子活动的场景需求。整体风格简约,线条清晰。天井洒下来的阳光,消弭了地下室的阴暗,映着日月,极尽惬意。点缀艺术画作与壁挂,摆置潮流音响与清新的花卉,阐明居住者的高级品味。
书房、过道、琴房在安全舒适的前提下,挖掘地下室的无限可能,依照梁柱的位置与尺寸,塑造虚实穿插的载物结构,给予过道美学价值,展示藏品。男业主的书房与儿子的琴房达成互不干扰的情态,书房设计成了可开可合的半开放式空间,便于办公与娱乐。
项目名称:锦粼云荟
项目地址:浙江·杭州
项目户型:底跃设计公司:尔景空间设计
项目类型:全案设计施工一体化
项目面积:255m²
文案策划:修合文化
摄影机构:瀚墨视觉
主要用材:锐思/LD瓷砖、百合橱柜、迈德高木作、书香门第地板、杉角舟照明、小马达艺术涂料、麦恩仕卫浴
客服
消息
收藏
下载
最近







































