查看完整案例

收藏

下载
悦己
悦己而后定心,定心以悦人。
作为一对绘画艺术老师与儿子“画画”的居宅,我们希望空间能够更富艺术性的表达,呈现居者的职业特性与审美意识,提供正向的情绪价值,同时,也希望其能承载日常的使用,满足孩童不断成长变化的需求。
我们时常思考住宅设计的意义是什么,构建更具辨识度的视觉张力?强调先锋领先的居住形态?对于我们来说,最本质的应该是达成居者“悦己”的态度:
在私宅空间这样个人属性及其强烈的场所中,以自我的审美喜好定义“美”的标准,围绕个人舒适的居住状态搭建行为动线,从而得到一个愉悦自身的方案,我们将其视为“悦己”的空间性表达。
业主希望家族的延续与传承以有形的视觉符号表达,于是设计了由其姓氏——“连”字演化而来的家徽。在此案中,家徽被刻入客厅木质茶几的角落,与木同生,隐秘地延续着家族的印记。
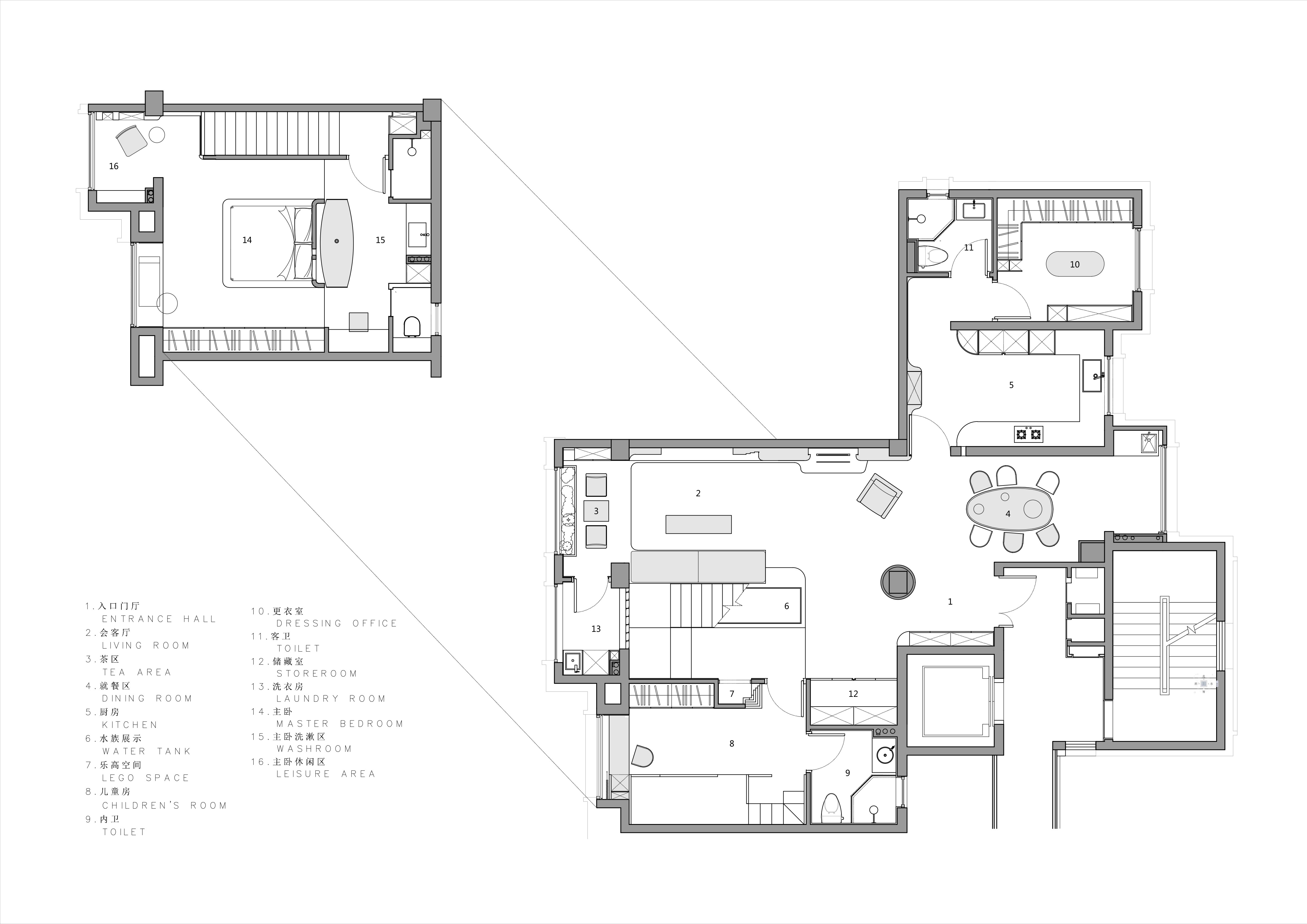
动线重塑
项目原身为L型动线布局的错跃结构,北面纵向两个空间均为承重墙体,空间的可塑性及开阔性被极大限制,设计手笔也难以施展。
于是设计自楼梯位置调整入手,将其改动为南北走向,关联起客厅空间的使用场景,如此一来,扩大平面视觉面积的同时,合理化动线的排布。
入户处的巨型圆柱体,原为不可拆卸的方形建筑结构柱,我们将其一侧的非承重墙体打通之后,自然形成贯通的双向动线,同时赋予视觉层次的变化。
空间本身我们并没有特意强调明度,而是希望通过光线在其中的游走,经结构的折转而产生明暗相生的变化,明以畅谈,暗处自省,情感自然流转于场域。
色彩共融
从大地中汲取色彩的基因,根植入空间的线与面中,从而强化人与自然的感知关系。我们希望的家宅场景应如大地般包容,接纳不同的情感与行为,并提供源源不断的支撑力。
柔和的曲线如画作、如波纹,为平铺直述的立面提供灵动的感官属性,视线经不同的场景穿梭而出,经线条的柔化而交错,居住者之间的互动关系生成,场景被注入生命的活力。
楼梯作为空间中承上启下的贯通装置,在本案中承担着关键性的作用。
使用钢结构作为载体,通过镂空的形式建立立体维度的场景交互,楼梯下方置入大型玻璃水缸装置,内部则以战后现场,一片废墟的形象填充,如荒漠生花,在虚无中存真,暗喻永不放弃的希望。
岁月积淀
选择老木作为材质的支撑,我们在使用的过程中,木材也逐渐沾染上人的气息,从而得以亲眼见证着光阴在空间中的沉积。
我们试图通过这种方式,让空间禁得住时光的流逝,在漫长使用的生命里,不断顺应变化而产生新的惊喜。
生命的兴衰更替,不同的时段代表着不同的美:初芽新生是希望,叶茂花繁是盛景,老枝凋零是轮回……
一如空间本身,从初落成的惊喜,到使用过程的摩擦融合,逐渐温润的过程也是记录生活痕迹的笔画。而人在其中生活,不断获取正向情绪价值的过程,也是一个不断“悦己”的过程。
项⽬名称:悦己
设计公司:温州目后空间设计
项⽬地点:中国·浙江·乐清市
项⽬⾯积:183㎡
主案设计:夏克进方远远
项目摄影:吴昌乐
内容策划:橙设传媒
设计时间:2021.12
完⼯时间:2023.06
合作品牌:浙江积简家居科技有限公司积简木作、意大利威罗艺术涂料(温州)、三翼鸟卡萨帝(温州)城市体验中心
客服
消息
收藏
下载
最近











































