查看完整案例

收藏

下载
既然要住,就要住自己喜欢的样子。粗犷、自然,我喜欢一些原生态的东西。
有时传统上的功能性设计,不一定符合我们,住进新家后,真的很好宅!
业主评价
「精装房」的盛行大抵因为它省事,符合了多数奔忙的都市人。城市节奏越快,还有多少人愿意慢下来,花心思打造一所属于自己的「桃花源」。
为此,我们特别珍惜「一对一」设计过程中与屋主产生共鸣,每一次都像是拿起灵感之笔,为他们的生活绘制了一张的「肖像」。当住所逃离了精装模板的桎梏,便赋予了充沛的生命力,家中的一方一寸、一器一物都无限贴近屋主想要的状态,不因户型限制而改变喜好,不受他人看法而妥协生活习惯,放松、自在、纯粹,这正是本期的屋主,一对年轻夫妻所期待的疗愈空间。
年轻的屋主对这套「改善型」新家的构想是自然粗野、原生态的,便于打理的现代风格,还提出一个比较有意思的点:主卧里不想要放置衣柜,希望能够拥有简洁大气的生活住所。
开发商设计的原始户型图,整体布局符合常规家庭所需,除了入户光线不足,厨房动线不便,通往房间的过道较长之外,粗看之下似乎没有特别大的「硬伤」。但若想满足屋主想要的慵懒而松弛的居住感官,我们选择在布局上「微调」,在风格上「大改」,因此本次设计的平面规划重点落在:
布局上:拆,舒阔了空间的尺度与采光。
①进门右手边原本封闭的墙体拆除之后空间更开阔,入户位置得到很好采光,通往厨房动线形成 L 形,更便捷合理;厨房空间拆除两面墙体后,空间瞬间敞亮,不再是以前的「小黑房」。
②打通临近客厅的卧室墙体,把两个空间联通在一起扩大客厅视野;公卫的改动明显,原本的整体公卫被分割出三个独立空间:洗漱间、洗衣房、马桶间。
风格上:疗愈设计,成为一种哲学命题。
考虑到屋主喜欢粗犷自然的氛围,我们在材料上选择老榆木、水泥地面、客厅铺贴木地板等,使用肌理感十足的天然木材,让「人为」与「自然」融合,营造温润松弛的疗愈空间。
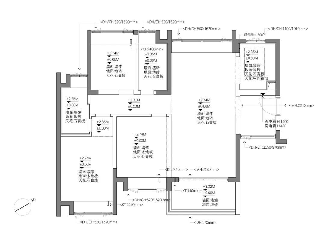
原始平面
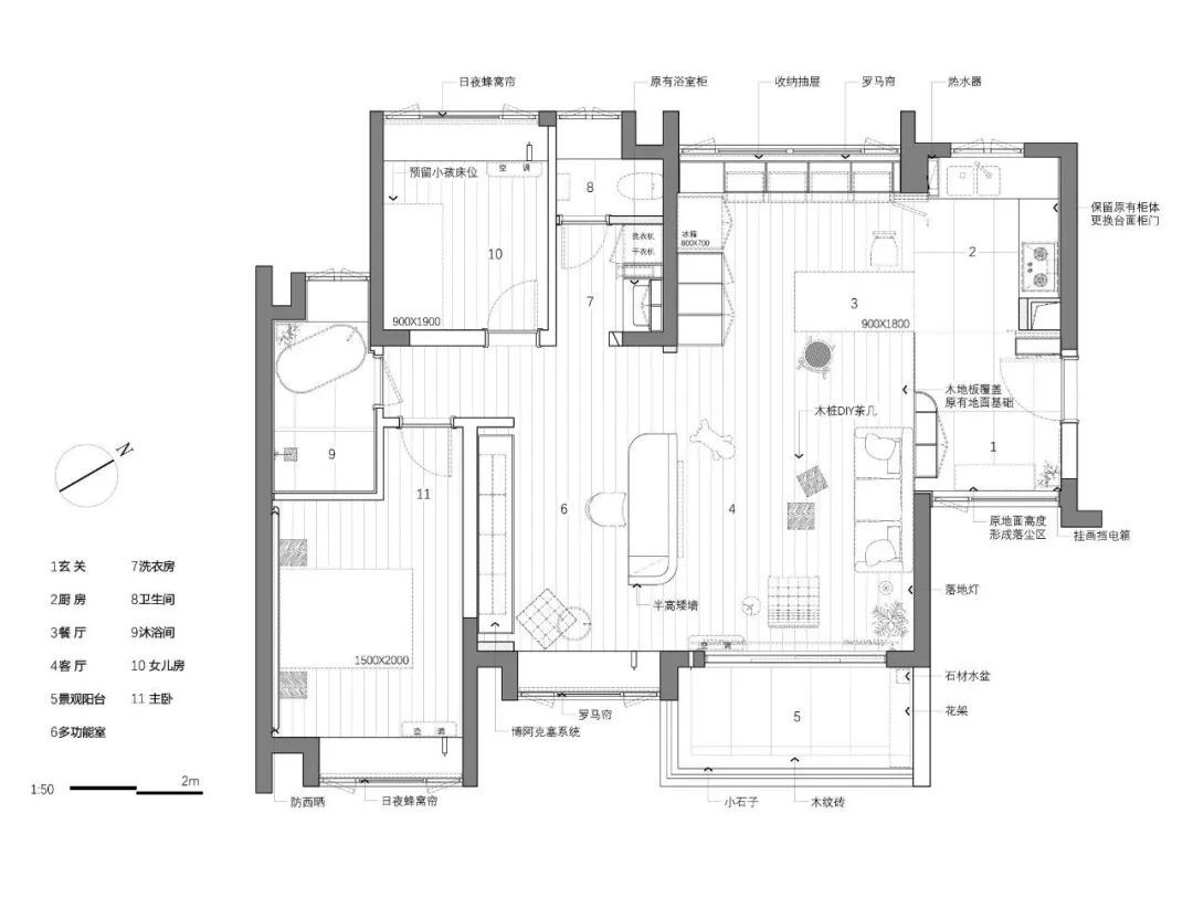
平面图
静者有深致·空故纳万境
注重感官与环境的交互,将自然与艺术融入空间。「结庐」的意义,是打造极具氛围的精神栖息处,留给自己一些「冥想」时光,重拾内心的平静与喜悦。
01 玄关餐厅
因为有我的生活习惯,所以它才是我的家。
进入家门眼,简洁而雅致,像一首轻柔的旋律,拾取一点宁静之境。我们为追求仪式感的屋主,在入户玄关处设计了「落尘区」,场域界定清晰,进门的仪式感漫步而入。
地面选用粗犷的地砖,粗糙的原生态肌理感,营造出水泥地面的错觉,带来自然质朴的氛围。
原本封闭的入户玄关的墙体被拆除后,我们在离墙 20 公分做了一个「屏风鞋柜」,解决了板材与墙面拼接处留有缝隙的美观问题。「留白」的处理为玄关一隅增加了呼吸感,也便于屋主坐在客厅时转身就能「窥见」入户情况。
效果图
直线与圆弧相结合,让空间更富有层次感。鞋柜的弧度处理,一来柔化了正对大门的尖角煞;二来减轻小孩碰撞的危险性。
效果图
入户玄关的窗户,用老榆木包裹整个窗框,窗外四时皆景,与屋内相映衬,成了天然的装饰画。进门右手边将原本封闭的墙体拆除,再以推拉门形式打造半开放式厨房,节省了空间,保证宽敞的使用感,光线在入户、餐厅、厨房三个空间内肆意穿梭。
效果图
原本烟道边的墙体被「腾挪」出来,暗藏了一个推拉门和进门放钥匙的开放格。
生活里许多热爱时刻,都在餐厨空间里上演,这里也是屋主常停留的区域之一。餐厅的飘窗经垫高后,设计成屋主喜爱的西厨餐吧,高低错落的台面设计,按照屋主的生活习惯优化使用场景,宽敞的台面满足物品陈列需求,具备一定收纳功能。
餐桌横向摆放,形成「回字型」动线,一旁嵌入式的冰箱与一排收纳柜体完美贴合。平日里招呼亲友或者享受独自的闲暇时光,吧台小酌、中式烟火、西式情调都可在这里实现。轻盈、浪漫、明亮、舒展。自然光经过卷帘的过滤,像是给通透的空间抹上一层滤镜,让看似沉默的餐厨区域展现出动人心魄的无声之美。
02 客厅/办公/公卫
开发空间的交互,是独立房间无法体会的。从餐厅延伸至客厅,乃至卧室,通过全屋木地板的铺装实现了空间的串联,让整个家更具有整体性。温润的木地板与白色乳胶漆的墙壁,营造冷暖互陈的空间氛围。
打通了临近客厅的卧室墙体,不仅扩大整个公区视野,也给家人创造一个更互动、更联结的空间流畅的动线,让扫地机器人横扫每个角落。以居者的生活轨迹构想空间场景的变换,开放式的互动区域里,家庭成员即使各忙各的,目之所至,彼此仍然紧密联系在一起。
电视背景墙后是留给男主人的开放式办公区,简单的线条与体块结合,让整个空间简洁干练。木质元素运用其中,营造出舒适放松的氛围。出于屋主的意愿,衣柜放置在办公区,一整面的白色收纳柜,契合整个公区的气质。办公桌旁的窗台以老榆木取代冰冷的大理石,作为窗台石与屋内的每一户窗台都达成了巧妙呼应。
柔和的弧线,消解了空间平整竖直的锐利感,更消弭纯色基底带来的拘谨氛围
原本的整间公卫被分割出独立的洗漱间、洗衣房、马桶间,空间不大,却变得井然有序,整洁干净。
效果图
引光入室,自然光线极大的延伸进空间,亲自然性的有机居所是成为治愈居所的关键。
散落的阳光从斑驳的枝叶中停留,多难得能有这样的时光,好好感受一番大自然这无私的馈赠。
03 小孩房/主卧
热闹留给客厅,卧室留给自己居室简而雅
已识乾坤大,犹怜草木青。马一浮《旷怡亭口占》
愈发地感受到马一浮这诗句的强大能量。经历越多,越渴望归于平静,对住所的需求也终向「归本」靠近。卧室的陈设很少,只需用来睡觉。不需要大大的衣帽间,也不贪恋繁复华丽的装饰。
次卧,也是未来的小孩房。有别于一般儿童房的艳丽跳跃色彩,低饱和度的整体搭配更能满足不同时期的审美。
床头朝西的主卧,屋主提出每天晚上触摸墙体是发烫的。我们通过在墙体加多一层隔热板,并在包板的位置增加灯带,简洁明朗,为空间提供更加均匀的光源。
窗台里,同样是用老榆木包裹的窗框,每天起床后第一件事,坐在这里拉开窗帘对着窗外的车流和天空静静坐一会,无人打扰,真好。
项目名称:结庐
项目位置:广州·南沙
项目面积:104㎡
设计公司:不合时宜设计
主案设计:陈智超
设计团队:柯辉、陈泳诗、吴小倩
项目摄影:ALPDRI-业轩
主要材料:木地板,水泥砖,乳胶漆,石英石,大理石
客服
消息
收藏
下载
最近















































