查看完整案例

收藏

下载
F L Y ¢ D E S I G N
⊙
# 烟火清安久 #
踏足生命的波澜辽阔,回望情感的栖息之所最抚人心,情感与羁绊萦绕的家居生活下,滋养更多爱的密语。四叶草户型下的精改,以生活所需结合空间结构重塑功能的合理性,有序安放的家居部件保有着生活美学的细腻,四口之家的生活满载爱与期待,望烟火清安久,岁岁不知愁。
玄关看向客厅 / View From The Porch To The Living Room
客厅 / The Living Room
客厅 / The Living Room
温馨的家居空间下有着清新自然的气息,以精简的配置重构区域的需求与视感,少即是多的理念布局囊括着一家四口未来生活可变性的弹性空间,基于使用者加入生活的变量,逐年增加的生活痕迹下保有空间的美感持久性。
客厅 / The Living Room
客厅 / The Living Room
客厅 / The Living Room
餐厅看向客厅 / View From The Dining Room To The Living Room
家居需求的特定形式与喜好色彩,作为空间建构素材。以白色为基底作画,软装家具色彩来搭配绘筑家居生命的姿态,联系背景表现关系,以隐形门+白墙替代原轻奢岩板背景墙,兼具高收纳与美感的成品电视柜丰盈立面层次感。
客厅 / The Living Room
客厅 / The Living Room
玄关 / Porch
玄关 / Porch
四叶草户型动静分离的布局契合理想的家居模式,而公区间彼此的连接性较弱,玄关处以内推形式借用相邻空间面积,并在侧面增加展览空间,适当的进退取舍与过渡性空间得以让细部的变动扩张入户空间感。
餐厅 / Dining Room
餐厅 / Dining Room
餐厅 / Dining Room
餐厅 / Dining Room
就餐空间的需求与松弛感,功能设备以及人居空间的相处方式舒适得体,于家居生活内寻求人物的自洽方式。具备充足而多样的收纳空间,并考虑区域功能下的人物体感与情绪状态,诉诸生命的美好形式于具象的、切实的日常生活之中。
餐厅 / Dining Room
餐厅 / Dining Room
餐厅 / Dining Room
餐厅 / Dining Room
主卧 / Master Bedroom
契合需求下的配置与形式不断探索空间内的合理调配,实现高收纳的松弛感睡眠空间,悬浮衣柜加错层视感,有趣而合理的次序将空间感受以具象化姿态链接人物情感,于日常家居生活中寻获慰藉。
主卧 / Master Bedroom
女孩房 / Girl's room
男孩房 / Boy's room
男孩房 / Boy's room
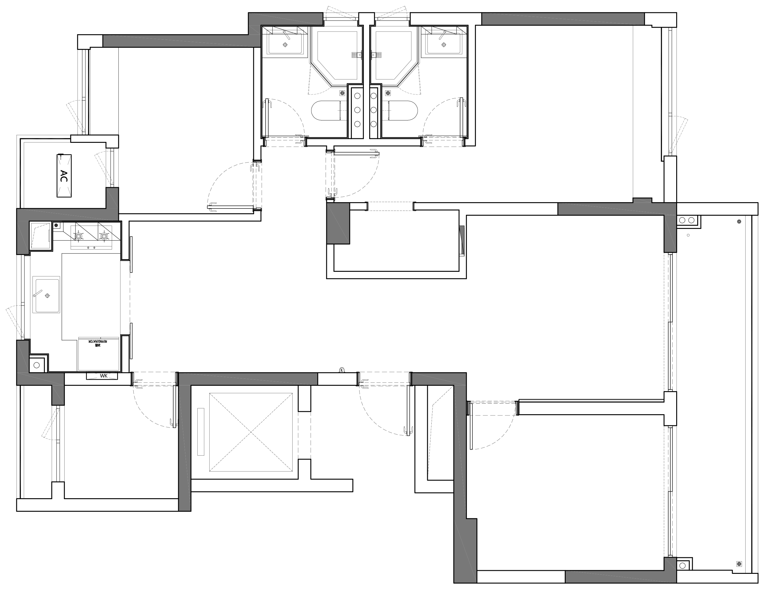
原始图
平面图
软装配饰
地址/杭州市江干区高德置地中心2号楼2单元1101室
客服
消息
收藏
下载
最近
































