查看完整案例

收藏

下载
因为它实在太丰富,每一个尺寸都被极致利用,承载了很多功能但丝毫不显局促。
年轻人的第一个家,如何越住越大?
兼收并蓄的48㎡
空间功能的转换、使用细节上的考量、未来居住的弹性,这个48㎡内即便是很小的细节,我们也大胆假设、小心求证,小家更要好好住。
Conversion of spatial functions, consideration of the details of use, the flexibility of future living, even the smallest details in this 48 square meters, we are bold to assume, careful to seek proof, a small home is more important to live well.
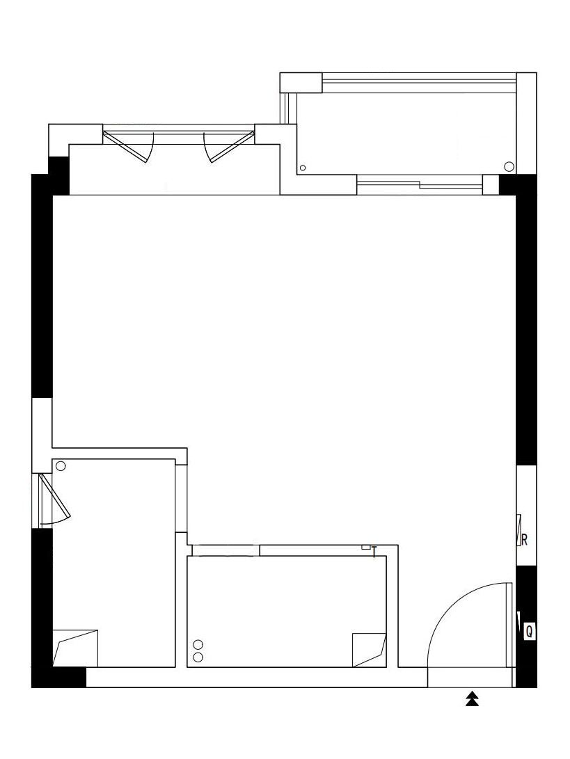
原始格局
改造后
L型进门格局的出现,让进门视线有了缓冲,实现独立玄关。收纳靠边隐形、冰箱内嵌,收纳和水槽兼有的弧形岛台亦让宅家时光更便捷。
收纳的二八法则
公寓常规布局中,隐私性和收纳会比较困扰,我们打通公共休闲区、就餐区,释放更多空间出来。隐私较强的卧室、卫生间及厨房藏进去,有藏有露,好看也好住。
In the regular layout of the apartment, privacy and storage will be more troublesome, we open up the public leisure area and dining area to release more space. The privacy of the bedroom, bathroom and kitchen is hidden, there are hidden and exposed, good-looking and live.
客厅和卧室用半墙隔断,线条层次穿插兼具展示需求,落地玻璃采光很好,砸不掉的承重拐角成为未来的休闲阳台。
一处自留地
拍摄时业主还未搬家,聊到即将入住的生活,开心和期待溢于言表。“幸福不是拥有更多的东西,而是拥有的东西能让你感到幸福”,年轻时的第一个家我们会同它一起成长,房子千篇一律,但家独一无二。
At the time of shooting, the owner had not yet moved, talking about the upcoming life, happiness and anticipation overflowing. "Happiness is not having more things, but having things that make you feel happy", the first home of our youth we will grow up with it, the house is one of a kind, but the home is unique.
布局调整后,有了独立梳妆台,造型穿插、隔而未断。
一个空间不大但功能极其丰富的转角,拥有明亮厨房和三分离式的卫生间,见缝插针设置洗衣空间及收纳,居家动线很是流畅。
info
项目地址:合肥-华南紫荆名都
项目面积:48㎡
项目类型:平层-毛坯
客服
消息
收藏
下载
最近

























